[45坪~49坪 4LDK] 家族時間を大切にできる陽当たりと風通しを意識した心地良い家の間取り
全国の建築家から間取りが集まるmadree(マドリー)で集まった45坪~49坪、4LDKの間取りです。オープンキッチンやアイランドキッチンが特徴の注文住宅の間取りです。
家族時間を大切にできる陽当たりと風通しを意識した心地良い家はこのような方におすすめです
30代夫婦、子供2人(未就学児)、 犬1匹
趣味:夫はサーフィン、ゴルフ、スノーボード
家族時間を大切にできる陽当たりと風通しを意識した心地良い家の間取りアイデア
全国対応になりました
| 階数 | |
|---|---|
| 部屋数 | |
| 家族人数 | |
| 土地特徴 | |
| 特徴 | |
| 広さ | |
| 担当建築家・デザイナー | 
建築家・デザイナー
からのコメント
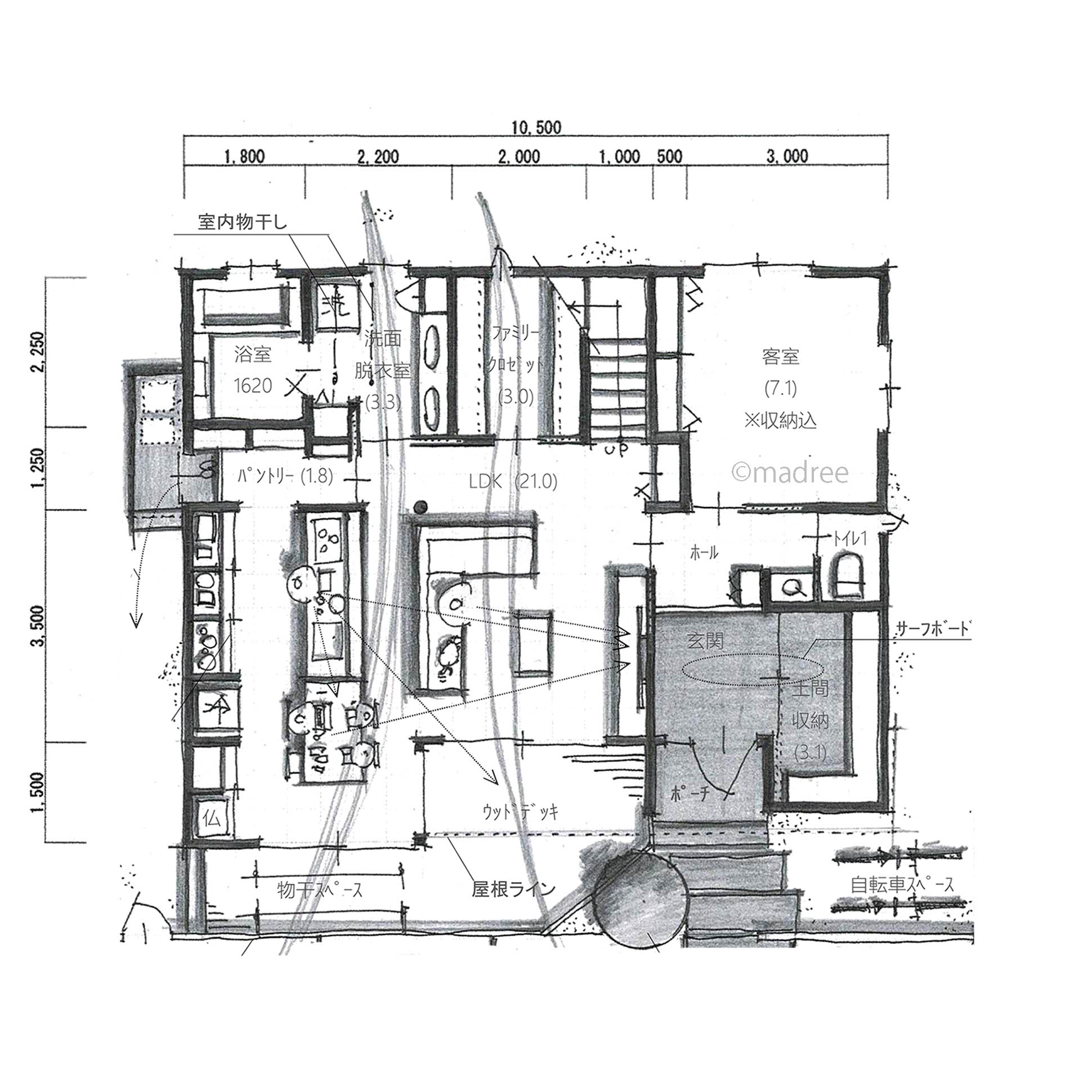
                【全体のコンセプト】
・朝食、TV鑑賞など、ライフステージが変わっても、普遍的に家族が共有できる時間を大切にする。
・東西は家が建っている為、1,2階共にできるだけ南北で風が抜けるような通風計画。
・動線・視線が交差しないようにパブリックとプライベートを明確にゾーン分けしています。
【こだわりのポイント】
■1階
・家族が唯一揃う朝食に南東から明るい朝陽が差し込むダイニング。
・他の動線が重なることがなく、深い軒があることで、ダイニングキッチンと同じ空間でありながら落ち着きのあるリビング。
・土間収納の引戸を全て開けると玄関と一体空間になり、サーフボードのメンテナンスを室内でできます。
■2階
・バルコニーの奥行きの半分以上に屋根がかかっているので、急な雨でも洗濯物は濡れません。
・非構造の間仕切り壁なので、将来壁をなくして、お子様が里帰りで泊まることができます。
45坪~49坪 4LDK関連の間取り
マドリー開発の『住宅営業支援ツール』
          madreeデータバンク
            
マドリーの人気間取り4,800プランを接客・提案に活用できる営業支援ツール
- 競合他社と差がつく、スピード提案
 - トレンド間取りで、集客・受注数UP
 - 建築家のアイデアを参考に、質の高い提案ができる
 

                                                      
                                                  







