[30坪~33坪 4LDK] 家事も趣味も子育ても楽しめる!コンパクトでシンプルながら広がりを感じる明るい家の間取り
全国の建築家から間取りが集まるmadree(マドリー)で集まった30坪~33坪、4LDKの間取りです。オープンキッチンやペニンシュラキッチンが特徴の注文住宅の間取りです。
家事も趣味も子育ても楽しめる!コンパクトでシンプルながら広がりを感じる明るい家はこのような方におすすめです
30代共働き 子どもなし(将来1〜2人予定) 小動物のペット(デグーマウス)が2匹 将来は犬を飼いたい。
夫は趣味でDJをします。web関係の仕事で、自宅で作業が多い。妻は料理が好き。2人とも旅行が好きです。
家事も趣味も子育ても楽しめる!コンパクトでシンプルながら広がりを感じる明るい家の間取りアイデア
全国対応になりました
| 階数 | |
|---|---|
| 部屋数 | |
| 家族人数 | |
| 土地特徴 | |
| 特徴 | |
| 広さ | |
| 担当建築家・デザイナー |
建築家・デザイナー
からのコメント
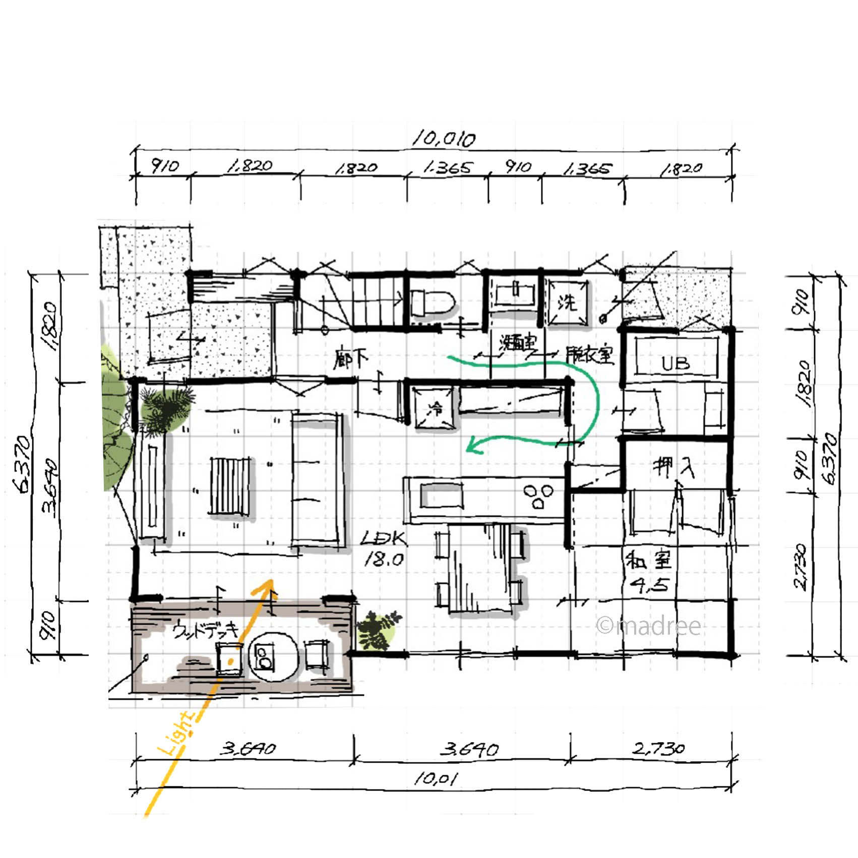
【全体のコンセプト】
ご家族様の趣味、奥様の家事や子育てを最大限に楽しめるよう、明るさや風通しの良さに加え、コストのかからないシンプルな建物形状、コンパクトながらも広がりの感じられる空間を意識したプランニングとなっております。
【こだわりのポイント】
・使い勝手の良い家事動線
洗面室、脱衣室、キッチンをつなげる事で、メインの動線とは別に家事や生活に役立つ動線を用意いたしました。
外から帰ってきた際の手洗い場に、料理をしながら洗濯物をしたりと毎日の生活に豊さをもたらします。
・ウッドデッキと大きく繋がるリビング空間
日当たりの一番良い南面にリビング、ダイニングを設ける事で、明るいリビング空間となる様プランニングを行ないました。
ウッドデッキにも大きな開口でつながっているので、晴れた日には外も使いBBQを楽しんでみるのは如何でしょうか。
30坪~33坪 4LDK関連の間取り
マドリー開発の『住宅営業支援ツール』
madreeデータバンク
マドリーの人気間取り4,800プランを接客・提案に活用できる営業支援ツール
- 競合他社と差がつく、スピード提案
- トレンド間取りで、集客・受注数UP
- 建築家のアイデアを参考に、質の高い提案ができる









