[39坪~42坪 4LDK] シンプルな家事動線と居心地良い2つのリビングで快適に暮らせる家の間取り
全国の建築家から間取りが集まるmadree(マドリー)で集まった39坪~42坪、4LDKの間取りです。アウトドアリビングやオープンキッチンが特徴の注文住宅の間取りです。
シンプルな家事動線と居心地良い2つのリビングで快適に暮らせる家はこのような方におすすめです
シンプルな家事動線と居心地良い2つのリビングで快適に暮らせる家の間取りアイデア
全国対応になりました
| 特徴 | |
|---|---|
| 階数 | |
| 部屋数 | |
| 家族人数 | |
| 土地特徴 | |
| 広さ | |
| 担当建築家・デザイナー |
建築家・デザイナー
からのコメント
【こだわりのポイント】
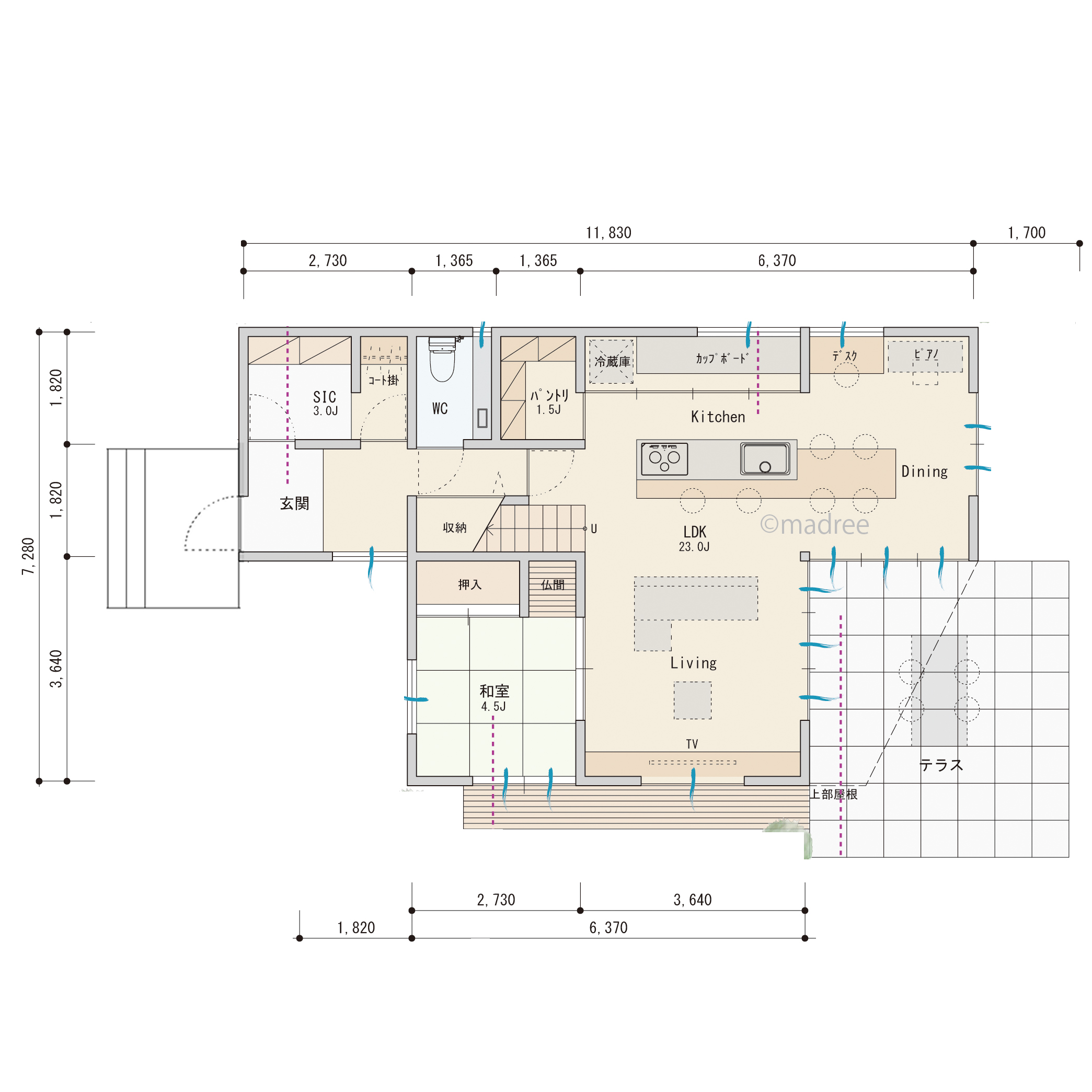
■1階
・LDKと和室を配置しテラスを大きく取り込んだ、居心地の良い空間を目指しました。
・動線と使い勝手を考慮し生活のイメージが出来ると思います。
■2階
・階段の続きにセカンドリビングを設け、1階LDKとの連続性を持たせています。
・子供たちが部屋にこもらず目の届くようプランニングしています。
・子供部屋は大きくはないですが、部屋のサイズを調整できるよう可動式収納を採用しました。
・主寝室はバルコニーに面し開放的であることと、収納をWICとFCを連続させることにより、用途によって使い分けしやすいようプランニングしています。
39坪~42坪 4LDK関連の間取り
マドリー開発の『住宅営業支援ツール』
madreeデータバンク
マドリーの人気間取り4,800プランを接客・提案に活用できる営業支援ツール
- 競合他社と差がつく、スピード提案
- トレンド間取りで、集客・受注数UP
- 建築家のアイデアを参考に、質の高い提案ができる









