[27坪〜30坪 2LDK] 家族の成長に合わせてフレキシブルに空間活用、開放感と自然光が心地良い3階建て狭小住宅の間取り
全国の建築家から間取りが集まるmadree(マドリー)で集まった27坪〜30坪、2LDKの間取りです。コンパクトLDKやバルコニーが特徴の注文住宅の間取りです。
家族の成長に合わせてフレキシブルに空間活用、開放感と自然光が心地良い3階建て狭小住宅はこのような方におすすめです
・家族構成:20代共働き夫婦、娘1歳/あと2人子ども予定
・趣味:サーフィン、テニス、読書、ハンドメイド
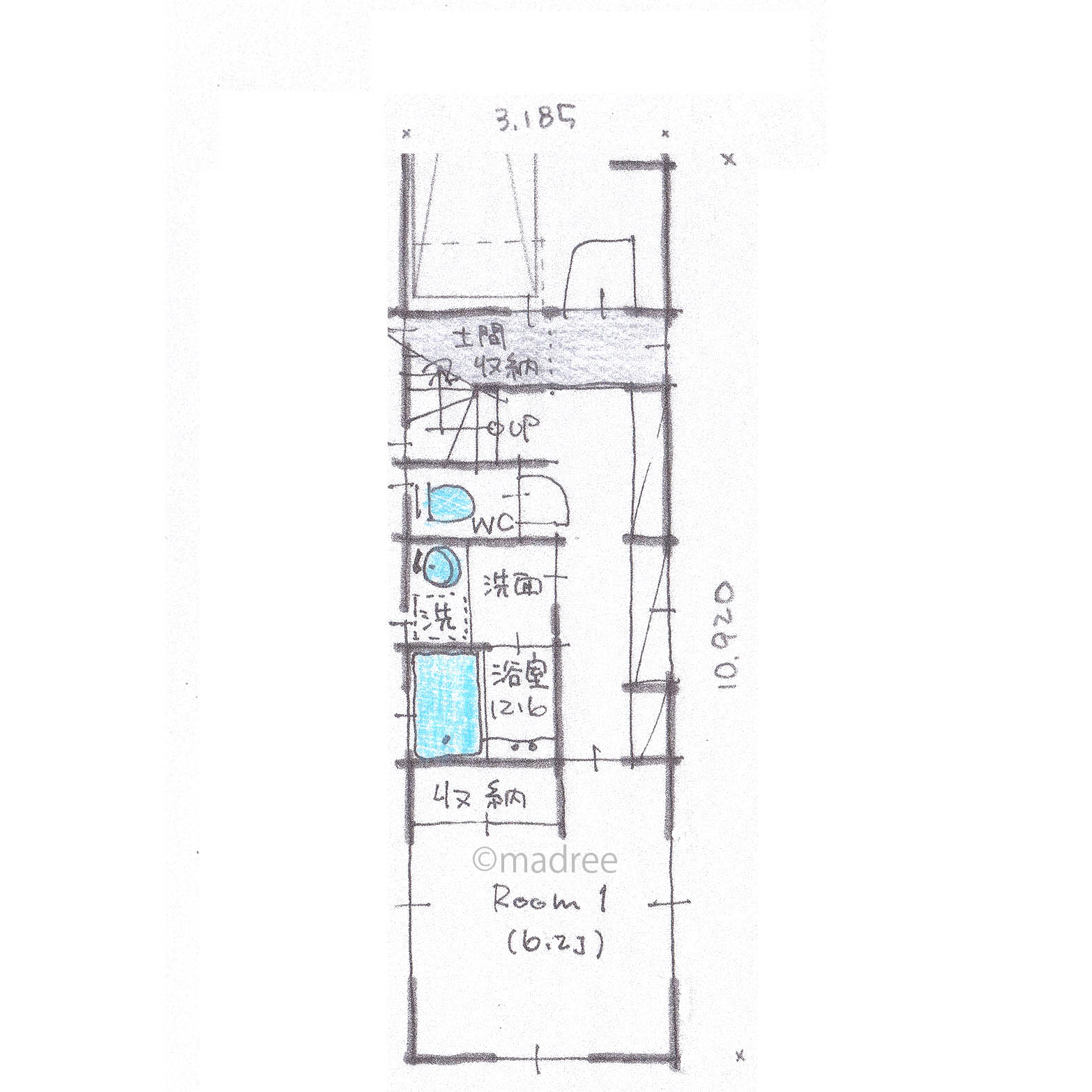
家族の成長に合わせてフレキシブルに空間活用、開放感と自然光が心地良い3階建て狭小住宅の間取りアイデア
全国対応になりました
| 広さ | |
|---|---|
| 階数 | |
| 部屋数 | |
| 家族人数 | |
| 土地特徴 | |
| 特徴 | |
| 担当建築家・デザイナー |
建築家・デザイナー
からのコメント
【全体のコンセプト】
・予算を考慮しつつ、敷地条件を最大限に活用できるように計画しました。
【こだわりのポイント】
■1階
・水廻りをまとめました。廊下部に収納を4.5m並べて配置しました。階段下も利用して収納としております。
■2階
・通風・採光を取り入れるため、トップライトを設置しました。
・東側に収納をまとめました。食器棚、食品等ストック、本、AV機器等収納可能です。
■3階
・ご家族様の成長に合わせて変えられるように当初は広い一室の空間としました。
27坪〜30坪 2LDK関連の間取り
マドリー開発の『住宅営業支援ツール』
madreeデータバンク
マドリーの人気間取り4,800プランを接客・提案に活用できる営業支援ツール
- 競合他社と差がつく、スピード提案
- トレンド間取りで、集客・受注数UP
- 建築家のアイデアを参考に、質の高い提案ができる









