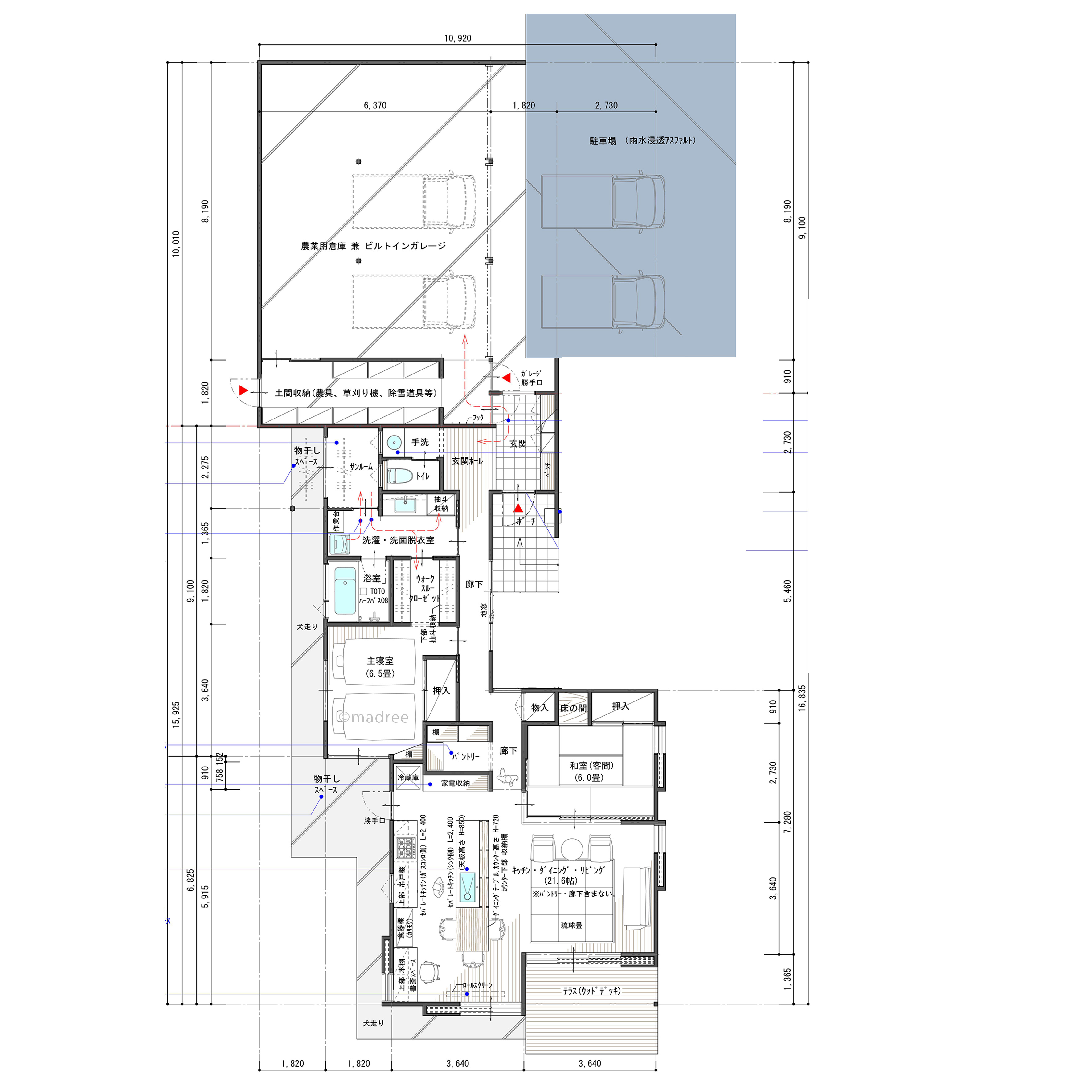
[27坪〜30坪 2LDK] 気持ちよく風が流れる南北の開口窓で、2階LDKから四季の景観を楽しむ家の間取り
全国の建築家から間取りが集まるmadree(マドリー)で集まった27坪〜30坪、2LDKの間取りです。外とつながるLDKやアウトドアリビングが特徴の注文住宅の間取りです。
気持ちよく風が流れる南北の開口窓で、2階LDKから四季の景観を楽しむ家はこのような方におすすめです
・30代共働き夫婦(子どもは2人の予定)
・趣味:サーフィン、スノーボート、ゴルフ、キャンプ、トレッキング
・子どもの成長に合わせて、1部屋から2部屋に可変できるようにしたい。
・家から見える景色を活かしたい。
気持ちよく風が流れる南北の開口窓で、2階LDKから四季の景観を楽しむ家の間取りアイデア
- 開放的なスタディースペース
- 2階にまとめた家事動線
- シンプルな家事動線
- 2階にまとめた水廻り動線
- 子どもが自由に遊べるスペース
- ダイニング学習スペース
- 在宅ワークスーペース
- 見守るワークスペース
- 安心して遊べる庭
- プライバシー守る脱衣洗面室
- 物をLDKに持ち込まない動線
- 片付けしながらの帰宅後動線
- バルコニーで楽々布団干し
- 屋内外が繋がる回遊動線
- 風が抜ける窓の配置
- 家中を心地よく風が抜ける
- 隠せるパントリー
- 緩やかに区切られたLDK
- 視線遮る玄関アプローチ
- 将来を見据えた1階主寝室
- 玄関近くの廊下に洗面カウンター
- 適所収納で使いやすく片付ける
- 大人数に対応できるLDK
- 開口窓で開放的なリビング
全国対応になりました
建築家・デザイナー
からのコメント
【全体のコンセプト】
・2階LDKから景色を活かした大きな開口のある家。
【こだわりのポイント】
■1階
・主寝室を南西側、子ども室を南東側に配置し、それぞれ明るい空間となるようにしました。
・南側の庭との間にある庇付きの濡れ縁により、外部と内部が緩やかに繋がります。
・子ども室は計9畳の1部屋で、将来は間に収納などを設けて空間を仕切る計画です。
・玄関横の収納は裏動線として通り抜けでき、搬入や整理もしやすくなっています。土間とフローリングのどちらもある大容量スペースなので、アウトドア用品や靴などを一ヶ所に収納できます。
・駐車スペースは、出入りや方向転換がしやすいよう、道路に対して直角で計画しました。
■2階
・LDKの南北に大きく開口部を設ける事で、景観を取り込み、気持ちよく風が流れます。
・天井は屋根形状に合わせた勾配天井で、吹抜のような縦に高い空間となります。
・LDKの一角に作業スペースを設けました。背の低い本棚でリビングと区切る事で、緩やかに繋がりを持ちます。
・北側の大きなバルコニーは、洗濯物を干したり、食事をしたり、多目的に利用できます。
・バルコニーから庭へ直接繋がる外部階段があるので、勝手口としての機能も担えます。
・バルコニーの下階はすべて屋外スペースなので、コストを抑える事が可能です。
・バルコニーの板塀により視線を遮る事ができるので、北側の景色を楽しみながら入浴できます。
27坪〜30坪 2LDK関連の間取り
マドリー開発の『住宅営業支援ツール』
madreeデータバンク
マドリーの人気間取り4,800プランを接客・提案に活用できる営業支援ツール
- 競合他社と差がつく、スピード提案
- トレンド間取りで、集客・受注数UP
- 建築家のアイデアを参考に、質の高い提案ができる









