[27坪〜30坪 2LDK] 複数の回遊動線で屋内外を繋ぐ、本好きが篭れる畳の陽だまり読書コーナーのある平屋の間取り
全国の建築家から間取りが集まるmadree(マドリー)で集まった27坪〜30坪、2LDKの間取りです。アウトドアリビングや広く感じるLDKが特徴の注文住宅の間取りです。
複数の回遊動線で屋内外を繋ぐ、本好きが篭れる畳の陽だまり読書コーナーのある平屋はこのような方におすすめです
・30代共働き夫婦、長男0才(子ども2人の予定)
・趣味:珈琲豆、DIY、うつわ収集、読書、旅行、食、ピラティス、週末の晩酌
・リビングから、段差なくウッドデッキへ出られるようにしたい。
・狭めで良いので、篭って読書のできる空間を設けたい。
複数の回遊動線で屋内外を繋ぐ、本好きが篭れる畳の陽だまり読書コーナーのある平屋の間取りアイデア
- 屋外で非日常感楽しむ
- 子どもが自由に遊べるスペース
- ダイニング学習スペース
- 開放的なスタディースペース
- 在宅ワークスーペース
- 見守るワークスペース
- プライバシー守る脱衣洗面室
- 天気も視線も気にせず物干し
- 部屋干しスペースで家事効率UP
- アレルギーに配慮したランドリールーム
- 物をLDKに持ち込まない動線
- 片付けしながらの帰宅後動線
- 景観を損ねない部屋干しスペース
- 洗濯仕事が一箇所で完結
- キッチン近くの水廻り動線
- 一列に並んだ水廻り
- 屋内外が繋がる回遊動線
- キッチン中心の回遊動線
- 風が抜ける窓の配置
- 家中を心地よく風が抜ける
- 天窓/高窓から自然の光取り込む
- ウォークスルークローゼット
- 適所収納で使いやすく片付ける
- 壁面収納で収納量確保
- 隠せるパントリー
- ステップダウンフロアでゆるく空間仕切る
- 緩やかに区切られたLDK
- 土間の自転車/バイク置き場
- 将来を見据えた1階主寝室
全国対応になりました
建築家・デザイナー
からのコメント
【全体のコンセプト】
・効率的に中と外が繋がる家。
【こだわりのポイント】
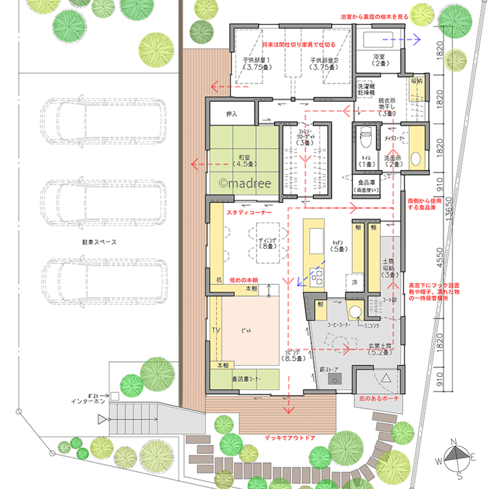
・駐車場のある西側から階段を登り、樹々のある雑木林トンネルを通って、玄関までアプローチします。
・道路からの視線を遮る雑木林は、東側にある隣家からの視線も遮ります。
・回遊性の良くするため、複数の回遊動線を計画しました。
・キッチンとコーヒーコーナーは引き戸で繋がっています。
・ドアは玄関のみで、部屋の中はほぼ引き戸で計画しました。
・玄関土間にコーヒーコーナーを設けて、薪ストーブを横に、座って仲間と集えるようにしました。リビングの段差も腰掛けとして利用できます。
・一部斜めの建具で仕切る事で、リビングからは外へ、 土間空間からは室内へ広がりを感じられるようにしました。
・玄関土間の高窓下にフックを沢山設けて、帰宅後の一時掛けに利用できるようにしました。
・キッチンを家の中心に配置する事で、家族や来客の様子が一目で分かるようにしました。
・水廻りの回遊性を持たせたので、家事動線がスムーズに繋がります。
・子どもが帰宅した際は、一度キッチン横を通るので、帰った事を確認できます。
・食品庫は両側使いになっているので、奥行きに無駄がなく使用可能です。 可動棚は両側に分けて2枚取り付けると更に使いやすくなります。
・リビングの一部を下げてピットを作りました。ピットを通らなくても、床と段差なくウッドデッキへ出入り可能です。
・ピットの大きな窓から、庭の樹々を見上げる事ができます。
・本をゆっくり読むために、読書コーナーを畳で計画しました。壁を背にしたり、寝転んだり、 お昼寝をしたりと有意義に過ごせます。本棚でピットと緩く繋がり、段差では腰掛も可能です。
・和室はダイニング側と裏側に動線を設けて、水廻りへすぐ行けるようにしました。
・子ども部屋は、将来的に家具で間仕切りできます。
・洗面所にメイクコーナーを設けて、ゆっくりとメイクができるようにしました。
・トイレには窓はありませんが、上部に高窓を作る事で光を取り込みます。
27坪〜30坪 2LDK関連の間取り
マドリー開発の『住宅営業支援ツール』
madreeデータバンク
マドリーの人気間取り4,800プランを接客・提案に活用できる営業支援ツール
- 競合他社と差がつく、スピード提案
- トレンド間取りで、集客・受注数UP
- 建築家のアイデアを参考に、質の高い提案ができる









