[33坪 4LDK] 隣家を気にせず光をたっぷり取り込む、吹抜で更に明るい2階LDKの家の間取り
全国の建築家から間取りが集まるmadree(マドリー)で集まった33坪、4LDKの間取りです。外とつながるLDKやアウトドアリビングが特徴の注文住宅の間取りです。
隣家を気にせず光をたっぷり取り込む、吹抜で更に明るい2階LDKの家はこのような方におすすめです
・自営業夫婦、子ども2人(長男3歳、長女0歳)
・趣味:ガーデニング、お酒、ライブに行く事、買い物、パン作り、ミシン、サイクリング
・友人が月に何度か泊まりに来るので、リビングからパントリーの中が見えないようにしたい。
・仕事で煮詰まった時、気分転換をができるような場所があると良い。
隣家を気にせず光をたっぷり取り込む、吹抜で更に明るい2階LDKの家の間取りアイデア
- 屋外で非日常感楽しむ
- ペットと快適に暮らす
- 趣味に夢中になれる部屋
- 思い出を飾るギャラリー
- 子どもが自由に遊べるスペース
- スキップフロアにスタディースペース
- ダイニング学習スペース
- 開放的なスタディースペース
- 見守るワークスペース
- 安心して遊べる庭
- 光庭で家中を明るく
- プライバシー守る脱衣洗面室
- アレルギーに配慮したランドリールーム
- 物をLDKに持ち込まない動線
- 片付けしながらの帰宅後動線
- キッチン近くの水廻り動線
- 屋内外が繋がる回遊動線
- 風が抜ける窓の配置
- 家中を心地よく風が抜ける
- 天窓/高窓から自然の光取り込む
- 壁面収納で収納量確保
- 隠せるパントリー
- 来客が気軽に宿泊できる
- 子どものプライベート守る個室の配置
- 在宅ワークスーペース
- バルコニーで楽々布団干し
- 2階にまとめた家事動線
- 目隠しルーバーで採光確保
- 大きな吹抜で採光確保
- ウォークスルークローゼット
- 適所収納で使いやすく片付ける
- 来客対応しやすい客間配置
- 視線遮る玄関アプローチ
- 寝るだけの小さな子ども部屋
- 将来を見据えた1階主寝室
全国対応になりました
建築家・デザイナー
からのコメント
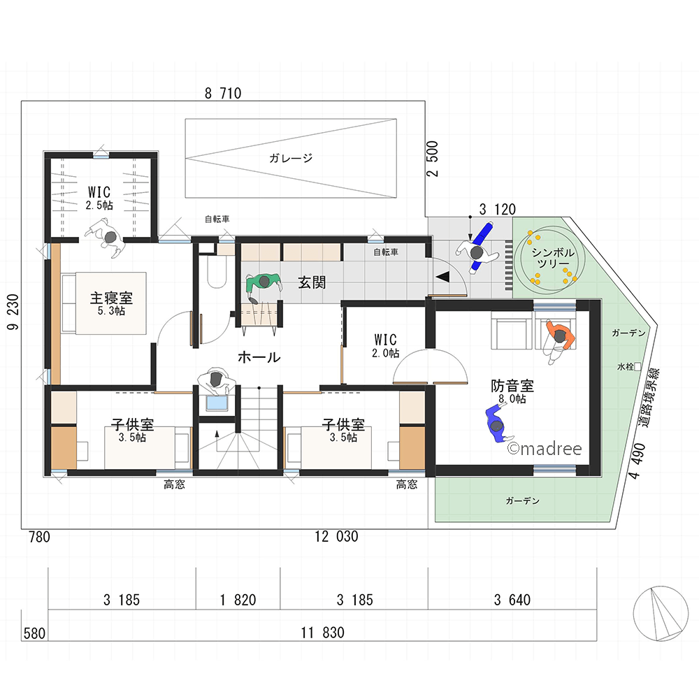
【全体のコンセプト】
・南側からの光をたっぷり取り込む家。
・ゆったり水廻りとコンパクトな家事動線。
【こだわりのポイント】
・路地風の土間と壁面収納に、マウンテンバイクを専用フックで見せるように収納できます。
・玄関ホールは階段室からの採光で明るく、両面から使えるコート収納を備えています。
・防音室は、隣家と上階に影響の少なくなるよう、東端に配置しました。2階のバルコニーと併せ、シンボリックな四角い形状です。外観のシンボルにもなります。
・建物周囲は、道路からも作業ができるガーデンにしました。
・主寝室は、布団を並べる配置も可能です。
・シンプルな形状で見通しの良いLDKとしています。上部吹抜で南面採光の明るいリビングです。
・裏動線で洗面やランドリーへ繋がります。
・脱衣とクローゼットを、南面の明るいスペースに配置しました。ミシン部屋としても利用できます。
33坪 4LDK関連の間取り
マドリー開発の『住宅営業支援ツール』
madreeデータバンク
マドリーの人気間取り4,800プランを接客・提案に活用できる営業支援ツール
- 競合他社と差がつく、スピード提案
- トレンド間取りで、集客・受注数UP
- 建築家のアイデアを参考に、質の高い提案ができる









