[60坪 3LDK] ガゼボのある庭でリゾート気分満喫し、ママに嬉しいミセスコーナーも取り入れた家の間取り
全国の建築家から間取りが集まるmadree(マドリー)で集まった60坪、3LDKの間取りです。浴室1.25坪や外とつながるLDKが特徴の注文住宅の間取りです。
ガゼボのある庭でリゾート気分満喫し、ママに嬉しいミセスコーナーも取り入れた家はこのような方におすすめです
・40代と20代の夫婦、子ども2人(8歳、1歳)
・趣味:ゴルフ、サーフィン、アウトドア、映画鑑賞
・リゾート感溢れる庭でアウトドアを楽しみたいので、ガゼボやヤシの木を設けたい。
・生活感のでる子どもの行事のお知らせや、その他雑務を行える隠れたスペースが欲しい。
全国対応になりました
| 広さ | |
|---|---|
| 土地特徴 | |
| 特徴 | |
| 階数 | |
| 部屋数 | |
| 家族人数 | |
| 担当建築家・デザイナー |
建築家・デザイナー
からのコメント
【全体のコンセプト】
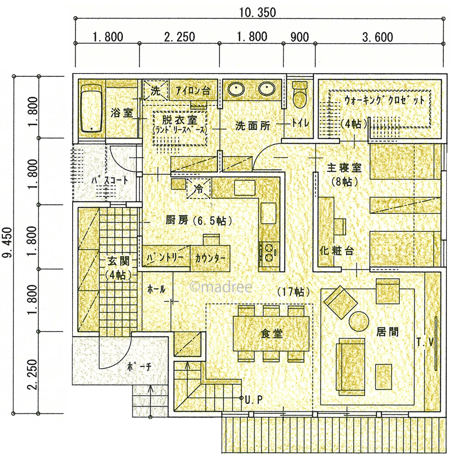
・敷地東西方向にLDKを広げ、東南方向の敷地にリゾートのような庭兼アウトサイドリビングを配置し、ガゼボを含む庭をLDKの中に一体的に取り込めるプランとしました。
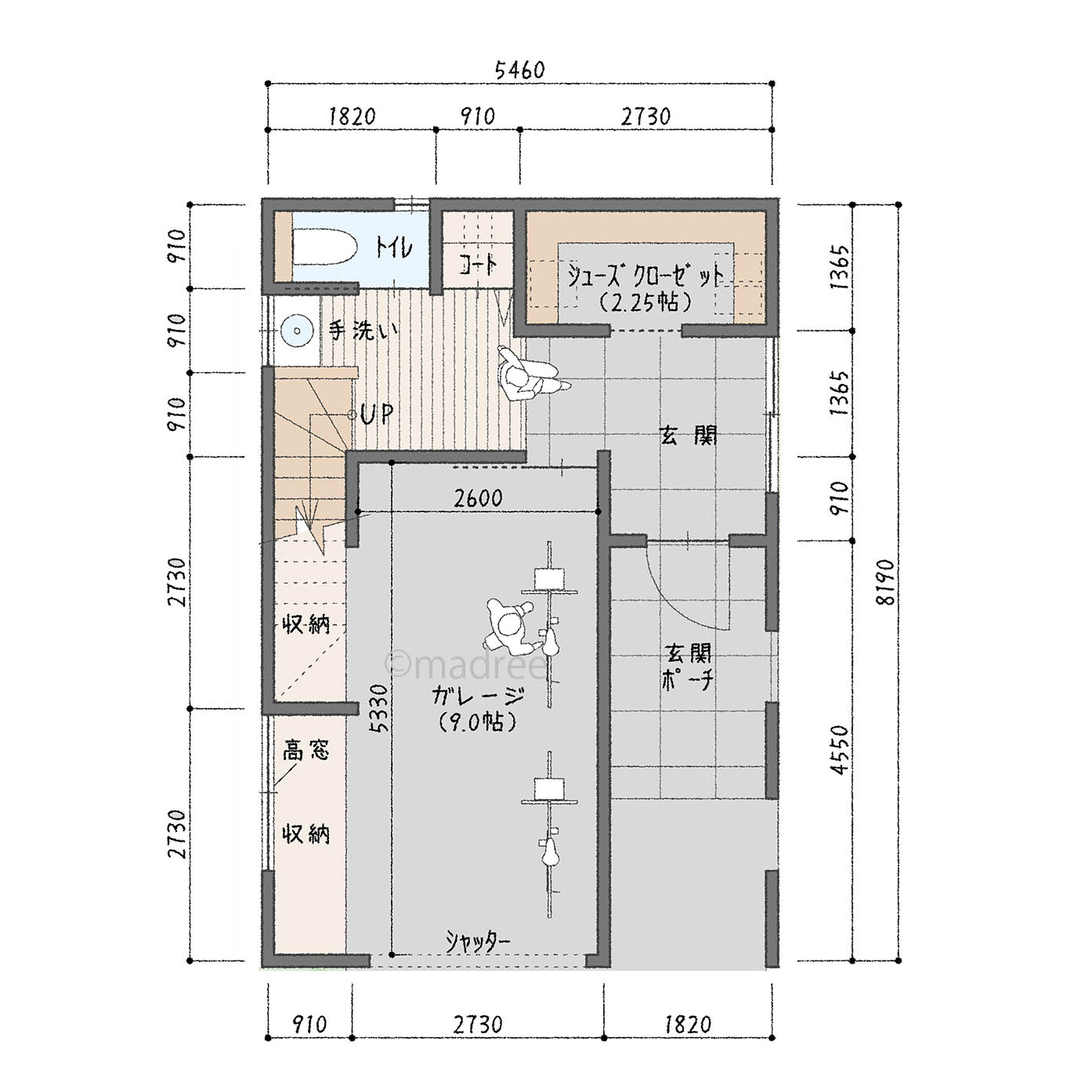
・車は道路から敷地延長の通路を進み、庭で切り替えして、ビルトイン駐車としました。雨の日もビルトインガレージのすぐ隣にエントランスより、乗り降りが楽かと思います。ガレージ内にも出入口を設けています。
【各階こだわりのポイント】
◼︎1階
・ゆったりとしたエントランスとホールの中に、土間収納とクローゼットを設け、土間収納からホールへ、又は直接ホールへとつながる2Way動線としました。
・ホール右手には和室を配置しました。布団等を収納出来る押入1帖を備え、来客時の宿泊スペース、将来ご両親と同居した際の部屋として利用できます。
・LDKは東西方向に広がり、リビング上部は吹抜により、とても開放的な空間を楽しめると思います。吹抜上部には、大きな嵌め殺しの開口部を設け、外部からも吹抜の様子が望めるようになっています。
・キッチンはアイランド型を採用し、作業効率を考えダイニングテーブルと横並びにしました。キッチン背面には冷蔵庫、カップボード、ちょっとしたPC作業や、子ども達の連絡等の書類を納められる「ミセスコーナー」を設けました。また、キッチンの西側にはパントリーを配置しました。
・パントリーの先には洗面所、脱衣室を兼ねたランドリールーム、浴室、トイレがあります。こちらの水回りはホールからも出入り可能なので、キッチンからパントリーを介して出入りしたり、ホールから出入りできたりと家事動線がスムーズかと思います。
・洗面所内には、下着やタオル等のリネン棚を設け、ランドリールーム内には、カウンターを設けました。洗って、乾燥又は干して、畳んで、収納する一連の動作がストレス無く行えます。
・屋外にはウッドデッキを設け、リビングのフォールディングドアを開け放てば、室内と屋外のスペースが一体的になるようにしました。更に、屋外スペースのガゼボと椰子の木がリゾート感を演出しています。
◼︎2階
・北側に将来間仕切可能な、クローゼット付きの子ども部屋があります。
・南側には書斎、マスターベッドルーム、バルコニーがあります。 バルコニーは屋根を設け、こちらもアウトサイドリビングとしたり、洗濯物を干したり出来ます。
・マスターベッドルームにはWICを備え、ホールから出入り可能なファミリークローゼットとも繋がりをもたせました。
60坪 3LDK関連の間取り
マドリー開発の『住宅営業支援ツール』
madreeデータバンク
マドリーの人気間取り4,800プランを接客・提案に活用できる営業支援ツール
- 競合他社と差がつく、スピード提案
- トレンド間取りで、集客・受注数UP
- 建築家のアイデアを参考に、質の高い提案ができる









