[42坪~45坪 5LDK] ウォークスルー動線で家事ラク叶う、各世代に配慮した二世帯住宅の間取り
全国の建築家から間取りが集まるmadree(マドリー)で集まった42坪~45坪、5LDKの間取りです。オープンキッチンやペニンシュラキッチンが特徴の注文住宅の間取りです。
ウォークスルー動線で家事ラク叶う、各世代に配慮した二世帯住宅はこのような方におすすめです
・家族構成:30代共働き夫婦、息子4歳、80代妻の母親+猫
・趣味:ピアノ、テニス、ギター、読書
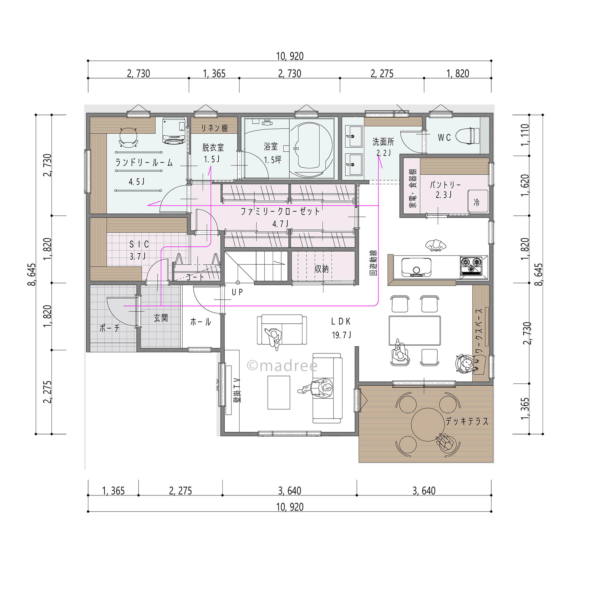
ウォークスルー動線で家事ラク叶う、各世代に配慮した二世帯住宅の間取りアイデア
全国対応になりました
| 階数 | |
|---|---|
| 部屋数 | |
| 家族人数 | |
| 土地特徴 | |
| 特徴 | |
| 広さ | |
| 担当建築家・デザイナー |
建築家・デザイナー
からのコメント
【全体のコンセプト】
・親子三世代がプライバシーを守りながらも仲良く暮らせる住空間
・周囲を(古めの)建物に囲まれているので、隣地から距離を設け、独立感を表現した。
・東側境界に建物ラインを合わせ、南面・西面を開放的な空間とした。
・南面・西面は特にプライバシーを考慮し距離を設け、採光を積極的に取り入れた。
・建物は総二階とし、建物中央に小屋裏収納を配置した。(切妻屋根が理想)
【こだわりのポイント】
■1階
・通路から玄関が見える位置にアプローチした。
・玄関前に自転車ガレージを設けた。
・玄関と内玄関を隣接し、下足収納やコート掛けを設けた。
・祖母室は玄関近くに設け、ミニキッチンやWICを備えた。
・玄関から直ぐLDKに行く動線と、水廻りや上階に行く動線に分けた。
・水廻りや階段は、LDKを通らずに行ける動線にした。(三世代に配慮)
・リビングは造付本棚、ネコ階段、吹抜、キャットウォークを設け、家族がくつろぐ開放的な空間をイメージした。
・リビング、ダイニングからはウッドデッキに出入りできる。
・キッチンは廊下からもパントリーからも出入り出来る2way家事動線を考慮した。
・パントリーは家事机や収納、室内干しを設け、ランドリー機能を持たせる。
・パントリーから屋外へ出る勝手口(引戸)を設けた。
・脱衣室に洗濯機を置き、パントリーと隣接する家事動線を考慮した。
・浴室は1.25坪(1620)を設置した。
■2階
・階段上り部にWCと洗面コーナーを設け、近くにネコ用トイレスペースを設けた。
・中央のホールは吹抜けからの明りが入り開放的なスペース。
・主寝室の他に夫個室、妻個室、子供室を設け、それぞれ広めの収納を設けた。
・固定階段にて小屋裏収納へ行く。
42坪~45坪 5LDK関連の間取り
マドリー開発の『住宅営業支援ツール』
madreeデータバンク
マドリーの人気間取り4,800プランを接客・提案に活用できる営業支援ツール
- 競合他社と差がつく、スピード提案
- トレンド間取りで、集客・受注数UP
- 建築家のアイデアを参考に、質の高い提案ができる









