[39坪~42坪 3LDK] キッチン&大きめパントリーと水回り動線を分けて家事分担しやすい家の間取り
全国の建築家から間取りが集まるmadree(マドリー)で集まった39坪~42坪、3LDKの間取りです。オープンキッチンやペニンシュラキッチンが特徴の注文住宅の間取りです。
キッチン&大きめパントリーと水回り動線を分けて家事分担しやすい家はこのような方におすすめです
30代夫婦(奥さんは専業主婦)、子供は未就学児2人(もう1人予定)
趣味:夫はサッカー、奥さんはミシン。家族みんなでキャンプを始めたいと考えています。(道具から揃える段階)
お互いの実家も近いので、週末は家族皆で集まってご飯を食べたりします。
キッチン&大きめパントリーと水回り動線を分けて家事分担しやすい家の間取りアイデア
全国対応になりました
| 階数 | |
|---|---|
| 部屋数 | |
| 家族人数 | |
| 土地特徴 | |
| 特徴 | |
| 広さ | |
| 担当建築家・デザイナー |
建築家・デザイナー
からのコメント
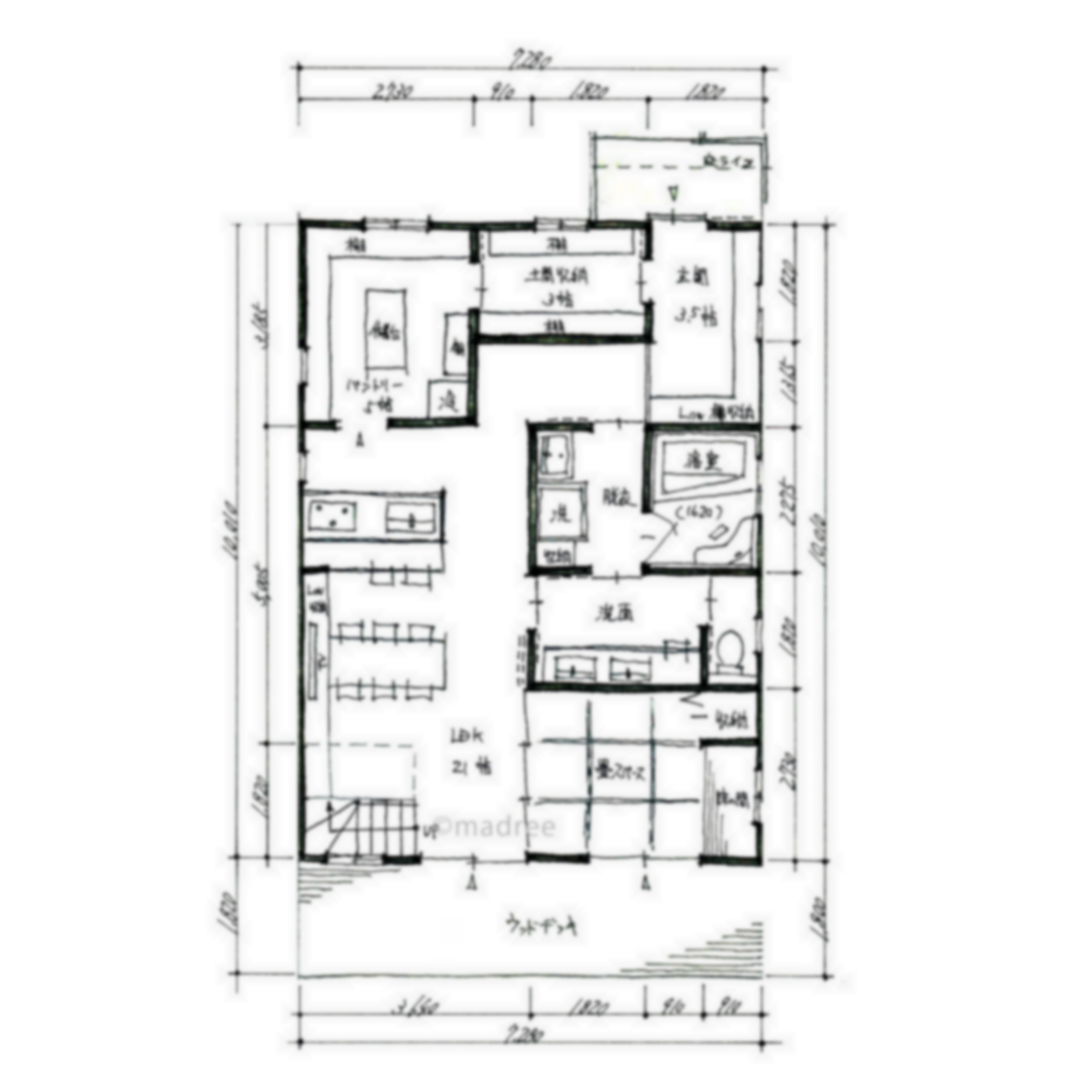
【全体のコンセプト】
・収納たっぷりで使い勝手の良い緑豊かな家
・敷地の中心に建物を配置し家全体の採光と眺望を確保
・駐車場2台並列で確保
・南側に庭を設けシンボルツリーと家庭菜園を配置
・使いやすくシンプルな形状でコストも抑えられる構造
【こだわりのポイント】
■1階
・玄関周辺の北側に大きな収納を複数配置
・キッチン等の水周りを建物中央に配置し、回遊できる家事動線としました
・パントリーを大きく取ることで作業効率が上がり、リビングもすっきり見えます
・南側に大きな窓を設置しデッキと繋げる事で、空間の広がりを演出
・畳コーナーで季節物を飾れるよう床の間を配置。また、引き戸を開放しリビングと繋いで大空間に
・雨の日に車から家まで、より濡れずに行くためにカーポートを設置することも検討可能
■2階
・寝室と書斎、子供部屋を配置
・寝室を大きく取り、サッカー観戦もゆったり家族で、できるようにしました
・休日はバルコニーで朝の風を感じながらゆっくり
39坪~42坪 3LDK関連の間取り
マドリー開発の『住宅営業支援ツール』
madreeデータバンク
マドリーの人気間取り4,800プランを接客・提案に活用できる営業支援ツール
- 競合他社と差がつく、スピード提案
- トレンド間取りで、集客・受注数UP
- 建築家のアイデアを参考に、質の高い提案ができる









