[36坪~39坪 5LDK] 庭中心の間取りで趣味も暮らしやすさも心地良く叶うコートハウスの間取り
全国の建築家から間取りが集まるmadree(マドリー)で集まった36坪~39坪、5LDKの間取りです。オープンキッチンやアイランドキッチンが特徴の注文住宅の間取りです。
庭中心の間取りで趣味も暮らしやすさも心地良く叶うコートハウスはこのような方におすすめです
30代共働き夫婦(奥さんは在宅勤務、産後は育休取得予定)、お子さんは現在お一人目妊娠中、2年後にもう1人希望。
趣味:夫はバイク、ドラム(楽器)、ダイビング。奥さんは家庭菜園とダイビング。
庭中心の間取りで趣味も暮らしやすさも心地良く叶うコートハウスの間取りアイデア
全国対応になりました
| 階数 | |
|---|---|
| 部屋数 | |
| 家族人数 | |
| 土地特徴 | |
| 特徴 | |
| 広さ | |
| 担当建築家・デザイナー |
建築家・デザイナー
からのコメント
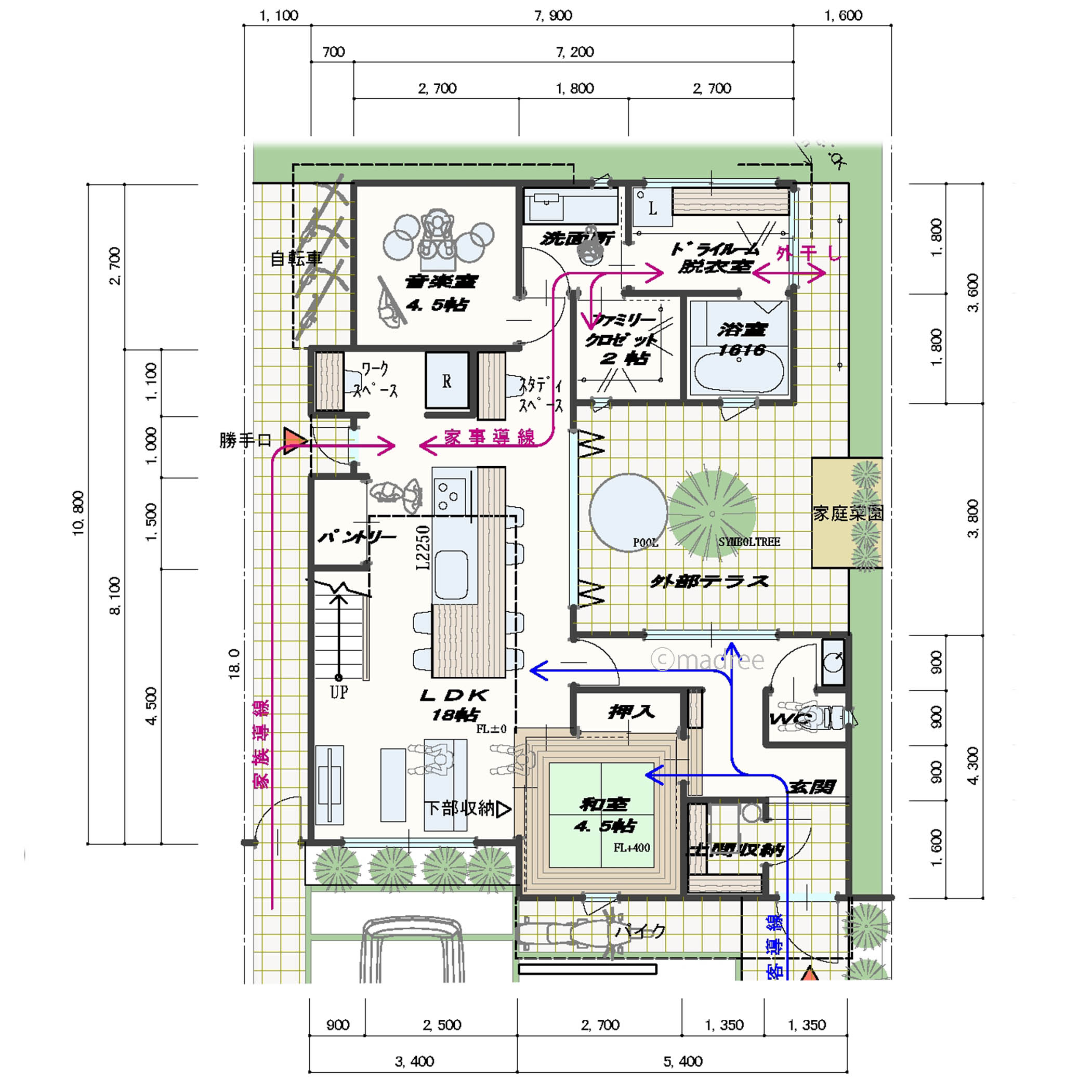
【こだわりのポイント】
・建物はコートハウスとし、庭を建物中央とし、道路側からのプアライバシーを確保しています。
・駐車場と建物の間に植栽の緩衝帯を設け、植栽を中高木としてリビング内部を見えにくくし、道路側からのプライバシーを保護しています。
・バイク置場は駐車の裏側に設け、庇があり雨よけになってます。
・敷地北西側に勝手口通路を設けています。
・勝手口の横に自転車を停めるためのスペースを作っています。
・2階テラスの跳ねだしにより雨よけとなっています。
・リビング上部の吹抜け部分には、構造的に優位にし、また照明を吊ることもできるよう、梁を入れています。
・家事導線は、勝手口からドライルーム(洗濯)までスムースに行ける経路となっています。
・ドライルーム、ファミリークローゼットを引き戸にすることにより、扉の開けはなしでの洗濯作業を容易にしております。
・音楽室はドラムセットと、あと一人、ベース等の他のメンバーが入れるよう4.5帖としています。
36坪~39坪 5LDK関連の間取り
マドリー開発の『住宅営業支援ツール』
madreeデータバンク
マドリーの人気間取り4,800プランを接客・提案に活用できる営業支援ツール
- 競合他社と差がつく、スピード提案
- トレンド間取りで、集客・受注数UP
- 建築家のアイデアを参考に、質の高い提案ができる









