[39坪~42坪 4LDK] アイランドキッチン中心の広々LDKと機能的な家事動線でワンランク上の豊かな生活が叶う家の間取り
全国の建築家から間取りが集まるmadree(マドリー)で集まった39坪~42坪、4LDKの間取りです。オープンキッチンやペニンシュラキッチンが特徴の注文住宅の間取りです。
アイランドキッチン中心の広々LDKと機能的な家事動線でワンランク上の豊かな生活が叶う家はこのような方におすすめです
家族構成:30代夫婦、子供1人(もう1人予定)
趣味:夫はゴルフ 妻は趣味なし
アイランドキッチン中心の広々LDKと機能的な家事動線でワンランク上の豊かな生活が叶う家の間取りアイデア
全国対応になりました
| 階数 | |
|---|---|
| 部屋数 | |
| 家族人数 | |
| 土地特徴 | |
| 特徴 | |
| 広さ | |
| 担当建築家・デザイナー | 
建築家・デザイナー
からのコメント
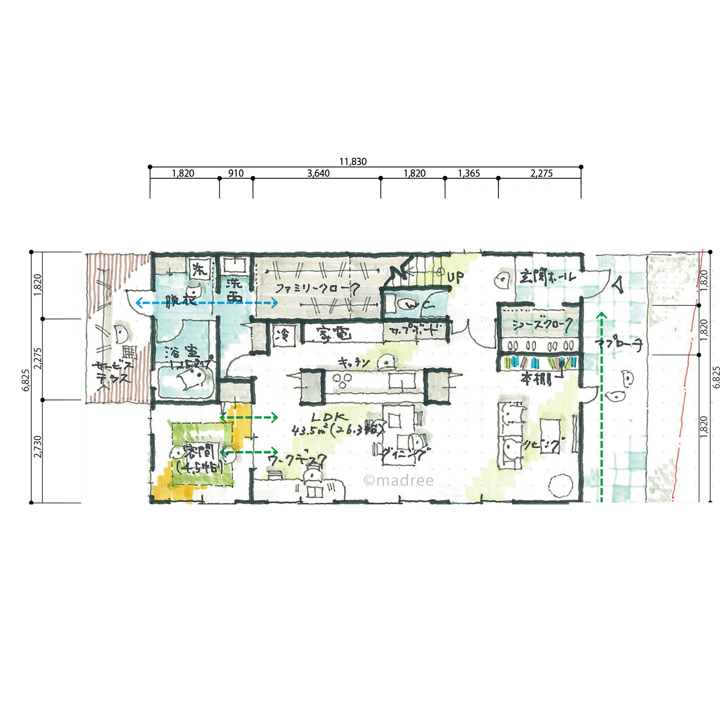
                【全体のコンセプト】
間口の広い敷地の良さを生かしつつ、 ホテルライクの、ワンランク上の豊かな生活を営むことができる間取りを計画しました。
【こだわりのポイント】
■1階
・道路に面して、西隣地境界から駐車場を3台確保し、東側にアプローチを設けました。
・玄関は道路から見えづらいように、敷地奥まで引き込み、あえて長いアプローチを設け、演出のできる空間としました。
・広めの玄関・ホールを通り、LDKに至ります。
・LDKはひとつながりの空間で、広々とした設計です。
・すべて南側に面しており、明るさ・風通りの環境は最高です。 
・中心にアイランドキッチンを配置し、家族の様子が見えやすい設えです。 
・最も西側には客間も設けました。 
・ふだん、建具を開け放てばLDKの延長や、あかちゃん室としても利用できます。
・水回りとファミリークロークは北西側にまとめ、洗濯・物干し・収納の動線をコンパクトにまとめました。 
■2階
・必要諸室をコンパクトにまとめました。
・廊下をなるべく少なく、居室面積を確保しています。 
・適所に窓を向け、1階同様風と光の取り込み方には配慮した設計になっております。
39坪~42坪 4LDK関連の間取り
マドリー開発の『住宅営業支援ツール』
          madreeデータバンク
            
マドリーの人気間取り4,800プランを接客・提案に活用できる営業支援ツール
- 競合他社と差がつく、スピード提案
 - トレンド間取りで、集客・受注数UP
 - 建築家のアイデアを参考に、質の高い提案ができる
 

                                                      
                                                  







