[33坪~36坪 2LDK] 仕事もリラックスタイムも家事も暮らしにフィットしたフロア分けで快適な3階建ての家の間取り
全国の建築家から間取りが集まるmadree(マドリー)で集まった33坪~36坪、2LDKの間取りです。オープンキッチンやペニンシュラキッチンが特徴の注文住宅の間取りです。
仕事もリラックスタイムも家事も暮らしにフィットしたフロア分けで快適な3階建ての家はこのような方におすすめです
仕事もリラックスタイムも家事も暮らしにフィットしたフロア分けで快適な3階建ての家の間取りアイデア
全国対応になりました
| 階数 | |
|---|---|
| 部屋数 | |
| 家族人数 | |
| 土地特徴 | |
| 特徴 | |
| 広さ | |
| 担当建築家・デザイナー |
建築家・デザイナー
からのコメント
【こだわりのポイント】
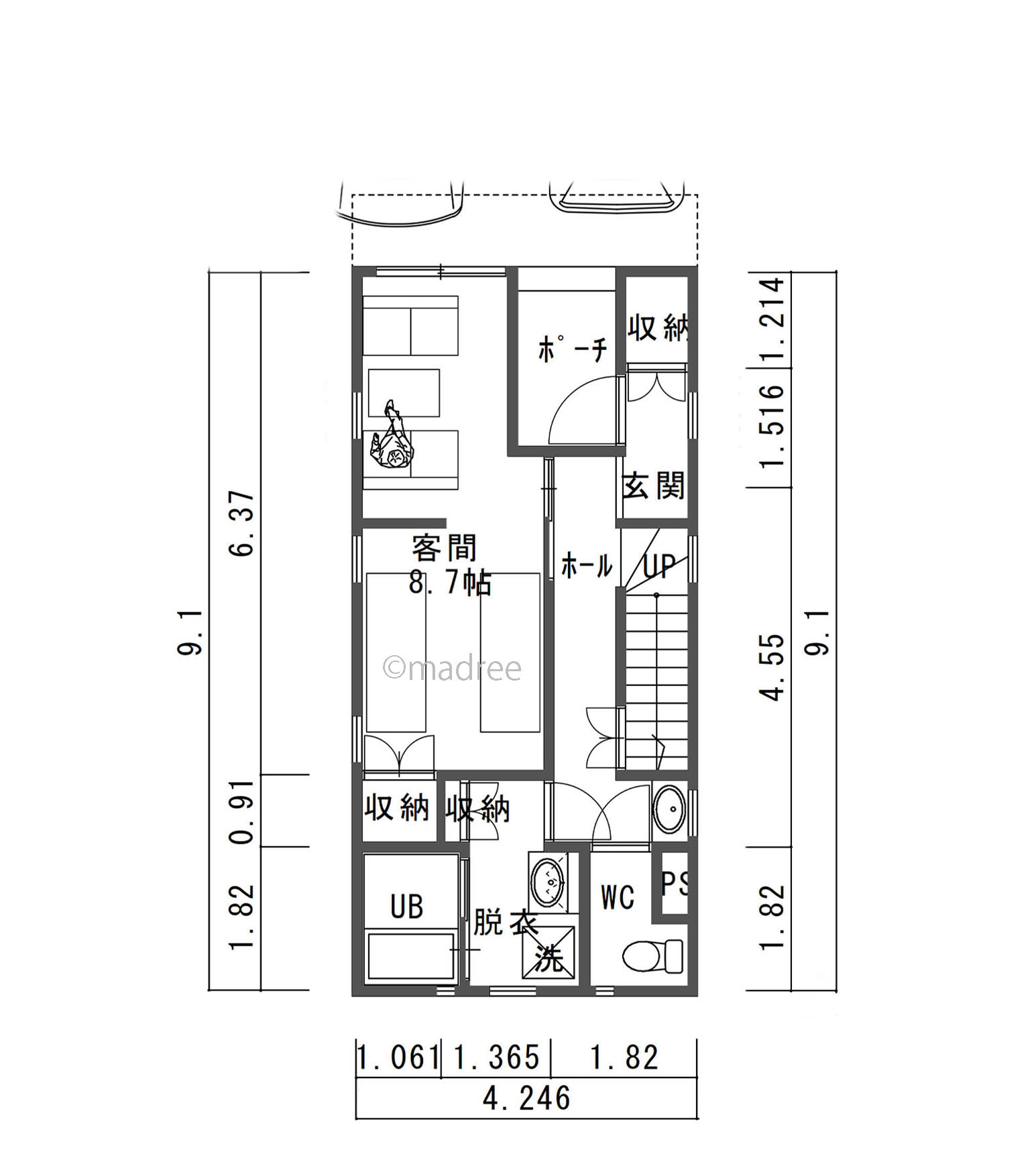
■1階
・仕事部屋兼客間を広い土間玄関から入れるようにして、住宅内動線と絡まないようにしました。
・玄関からフロストガラスを通して十分採光ができます。
■2階
・2階は一体型のLDKとし、リビングの南は広いデッキとし愛犬と一緒に生活できる空間としました。
・お料理の好きなお二人のための広めのキッチンに6人用のダイニングテーブルをつなげています。
・キッチンのすぐ前にカフェスペースを作りました。
■3階
・将来お子様たちのスタディスペースとして、また家事や作業スペースとしても利用できます。
・3階に日中陽の当たるサンルームを計画しました。
・ランドリーコーナーとして中干しも十分できます。
■屋上階
・屋階吹抜に外干しのできる屋上バルコニーに階段がつづいています
33坪~36坪 2LDK関連の間取り
マドリー開発の『住宅営業支援ツール』
madreeデータバンク
マドリーの人気間取り4,800プランを接客・提案に活用できる営業支援ツール
- 競合他社と差がつく、スピード提案
- トレンド間取りで、集客・受注数UP
- 建築家のアイデアを参考に、質の高い提案ができる









