[30坪~33坪 3LDK] 生活空間も仕事場も分けながら利便性高く光を取り込んだ明るい3階建の家の間取り
全国の建築家から間取りが集まるmadree(マドリー)で集まった30坪~33坪、3LDKの間取りです。オープンキッチンや壁付けキッチンが特徴の注文住宅の間取りです。
生活空間も仕事場も分けながら利便性高く光を取り込んだ明るい3階建の家はこのような方におすすめです
夫・妻・犬1匹
趣味:料理・アウトドア・犬と旅行・ダイビング・楽器演奏
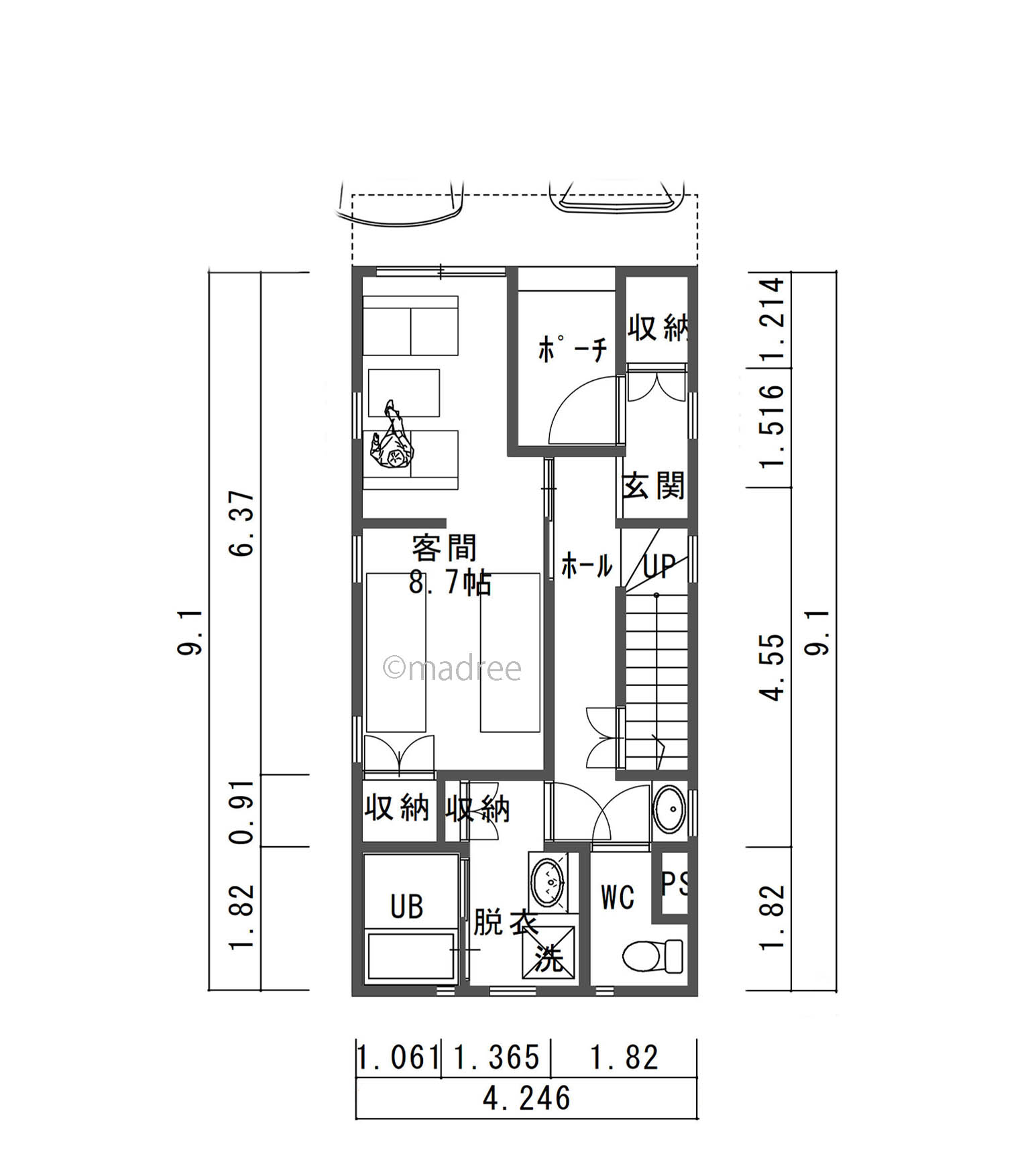
生活空間も仕事場も分けながら利便性高く光を取り込んだ明るい3階建の家の間取りアイデア
全国対応になりました
| 階数 | |
|---|---|
| 部屋数 | |
| 家族人数 | |
| 土地特徴 | |
| 特徴 | |
| 広さ | |
| 担当建築家・デザイナー |
建築家・デザイナー
からのコメント
【全体のコンセプト】
・南北に細長い敷地を生かした伸び伸びとしたすまいを目指しました。
・ご要望を整理して、1階を駐車場・仕事場、2階をLDK、3階を個室・水周りといった構成にして、生活空間と仕事の空間を明確に分けました。
・駐車場上部を木造トラス構造によって4.5m跳ね出しています。
・間口5.6mの敷地北側に柱や壁を落とさず、駐車場2台分のスペース+通路を確保しつつ、ダイナミックで個性的な外観を生み出しています。
・建物中央に階段と吹抜けを設けて、細長なプランに、光を取り込みます。
・階段を挟んだ北側と南側で反層ずらしたスキップフロアのプランとし、階段踊り場、廊下をなくし空間の有効利用を図ると同時に、各スペースが反層のずれをもって緩やかにつながるようにしました。
・リビング、寝室、水周りにバルコニーを設けて、各所に植栽を施し外部空間への広がりをもたせました。
・屋上にもルーフバルコニーを設けて気持ちの良いアウトドアリビングとしています。
【こだわりのポイント】
■1階
・玄関・外回り
駐車場上部の跳ね出した2階ヴォリュームが庇の役目を果たしています。
駐車場背後に収納を設けて、アウトドア用品などを収納できるようにしています。
脇の通路をアプローチとして、玄関は東向きに入口をとって、道路に正対しないようにしています。
玄関脇には階段下を利用した土間収納を設けています。
光井戸によって最上階トップライトから光が降り注ぐ明るいエントランスとなっています。
・仕事部屋
奥様とご主人のそれぞれの仕事部屋を設けています。
開口部の先にポイントを押さえて植栽を施し、緑の潤いがある空間としています。
■中2階〜2階
・LDK
DKとリビングが半層のレベル差をもって連続するスキップフロアの空間としています。
キッチンはコの字型対面式として、料理をしながらご家族の様子を眺めることができるようにしました。
カウンター奥行きを900mmとって反対側からはダイニングテーブルとして利用できるようにしました。
ダイニングとキッチンの両方に必要十分なスペースを確保しつつ、全体をコンパクトに納めて空間を有効利用しています。
キッチンとダイニングの一体感とL字レイアウトによって、通常のダイニングとは一味違った親しみやすさのある空間となっています。
キッチンは床を140mm下げて、ダイニングテーブル(720mm)とキッチンワークトップ(860mm)それぞれの使用に最適な高さの差を埋めています。
キッチン奥にはパントリーを設けています。
東側壁際に沿ってキャビネットと吊り戸棚を設けて、様々な物を収納できるようにしました。
キャビネットのカウンター上部は、飾り棚としてお気に入りの品々をディスプレイできます。
DKから反層上がったリビングには、光井戸の脇にコーナーソファを設けて居心地の良いスペースをつくっています。
南側の引戸をすべて開け放つと、軒下を利用したアウトドアリビングと一体的に利用することができます。
■中3階〜3階
・主寝室
キングサイズのベッドをレイアウトしています。
向かいの壁一面にデスクカウンターと上部に本棚を設けて書斎コーナーとしました。
こちらも引戸をすべて開け放つと、アウトドアリビングと一体的に利用することができます。
東向きの高窓を設けて、朝日を浴びて自然に目覚められるように工夫しました。
・水周り
主寝室から反層上がって、ウォークスルー型のファミリークローゼット→洗面・脱衣→浴室を配しています。
洗面、浴室の南側にはバルコニーを設けて、洗濯→物干し→たたみ・収納の家事動線を考慮したレイアウトとしています。
脱衣室は洗濯機置場、収納を設けています。
物干し金物、乾燥換気扇を設けて部屋干しにも対応しています。
・子供室
子供室(3.0畳)を水周りの脇に設けました。
コンパクトながらも机、ベッドを無駄なくレイアウトしています。
東向きの窓を設けて、朝日を浴びて自然に目覚められるように工夫しました。
■RF
・アウトドアリビング
屋上にもうひとつのアウトドアリビングを設けています。
コーナーソファと周囲を囲むプランターボックスの植栽が心地よい屋外空間をつくり出しています。
階段室を出たすぐのところは屋根をかけ、キッチンを設けてBBQパーティーができるようにしています。
物干し場として利用することもできます。
30坪~33坪 3LDK関連の間取り
マドリー開発の『住宅営業支援ツール』
madreeデータバンク
マドリーの人気間取り4,800プランを接客・提案に活用できる営業支援ツール
- 競合他社と差がつく、スピード提案
- トレンド間取りで、集客・受注数UP
- 建築家のアイデアを参考に、質の高い提案ができる









