[41坪 3LDK] L字型裏動線でLDKを囲む効率的な家事動線と明るく開放感を感じてゆったり寛げる家の間取り
全国の建築家から間取りが集まるmadree(マドリー)で集まった41坪、3LDKの間取りです。オープンキッチンやペニンシュラキッチンが特徴の注文住宅の間取りです。
L字型裏動線でLDKを囲む効率的な家事動線と明るく開放感を感じてゆったり寛げる家はこのような方におすすめです
家族構成:30代夫婦(妻は専業主婦)、子供2人(未就学児)
趣味:ミシンや洋裁
L字型裏動線でLDKを囲む効率的な家事動線と明るく開放感を感じてゆったり寛げる家の間取りアイデア
全国対応になりました
| 階数 | |
|---|---|
| 部屋数 | |
| 家族人数 | |
| 土地特徴 | |
| 特徴 | |
| 広さ | |
| 担当建築家・デザイナー | 
建築家・デザイナー
からのコメント
                【こだわりのポイント】
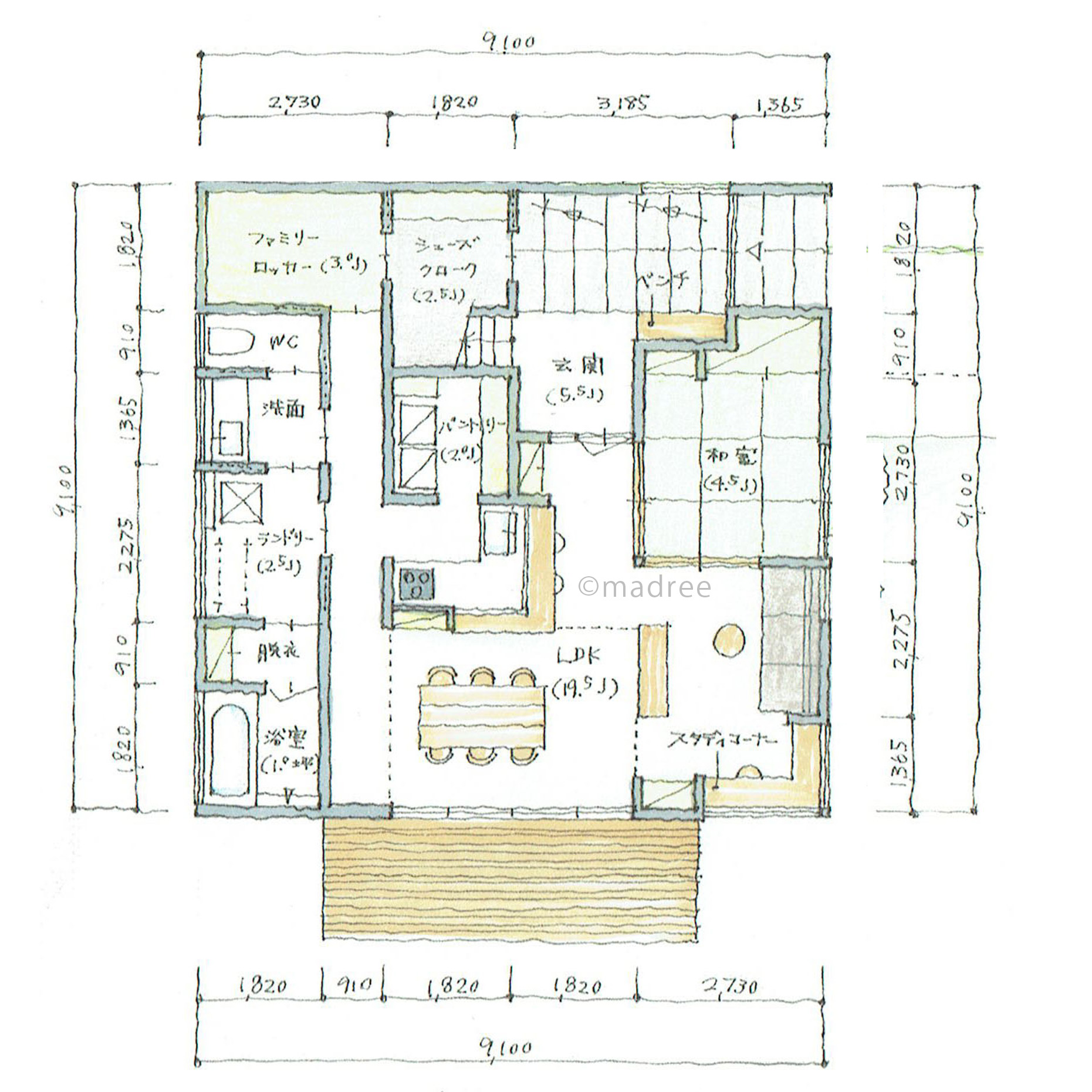
■1階
・東側に3台駐車スペースを確保しました。
・南側を最大限利用いただけるよう、北入り玄関としています。
・玄関
玄関正面は土間収納とし、ファミリークロークへウォークスルーできるつくりとしています。
和室はホールからの出入りも確保し、客間としても利用可能です。
・LDK
明るく広がりのある空間を実現するため、大胆な吹き抜けを確保しました。
階段はスケルトン階段を採用することで、おしゃれな空間に。
階段下はお子様のスタディ・書斎スペースとして利用可能です。
キッチンとつなげることで自然と会話も生まれます。
南側には大開口のサッシ、とコーナーのサッシを設けることで、限られた敷地ながらも解放感を感じられる空間としました。
ウッドデッキとつなげることで、視覚的にも広がりを感じていただけます。
キッチンは全体を見渡せる位置に配置しました。 
パントリー経由で洗面脱衣へアクセス可能です。 
効率的な家事動線を実現します。 
■2階
・こども部屋
将来的に仕切ることができる設計としました。
かつそれぞれの個室に収納を完備。
機能的な個室としています。
・寝室
WICと趣味スペースをしっかり確保しています。
コーナーサッシを採用することで明るく、広がりを感じられる空間としています。
41坪 3LDK関連の間取り
マドリー開発の『住宅営業支援ツール』
 
          madreeデータバンク
            
マドリーの人気間取り4,800プランを接客・提案に活用できる営業支援ツール
- 競合他社と差がつく、スピード提案
- トレンド間取りで、集客・受注数UP
- 建築家のアイデアを参考に、質の高い提案ができる

![[41坪 3LDK] L字型裏動線でLDKを囲む効率的な家事動線と明るく開放感を感じてゆったり寛げる家の間取り図 1階の画像](https://madree-production.s3.ap-northeast-1.amazonaws.com/uploads/images/plans/5e773ec3209fa43aaa5de78fc072d688.png) 
                                                      ![[41坪 3LDK] L字型裏動線でLDKを囲む効率的な家事動線と明るく開放感を感じてゆったり寛げる家の間取り図](https://madree-production.s3.ap-northeast-1.amazonaws.com/uploads/images/madree_blurred_image.png) 
                                                  








 
          