[45坪~49坪 3LDK] 子どもと時間をたくさん共有でき、リラックスと集中をわけられる廊下のない家の間取り
全国の建築家から間取りが集まるmadree(マドリー)で集まった45坪~49坪、3LDKの間取りです。オープンキッチンやL字型キッチンが特徴の注文住宅の間取りです。
子どもと時間をたくさん共有でき、リラックスと集中をわけられる廊下のない家はこのような方におすすめです
夫40代、妻30代、子供2人(未就学児)
趣味:夫は映画鑑賞、ゲーム、妻は登山
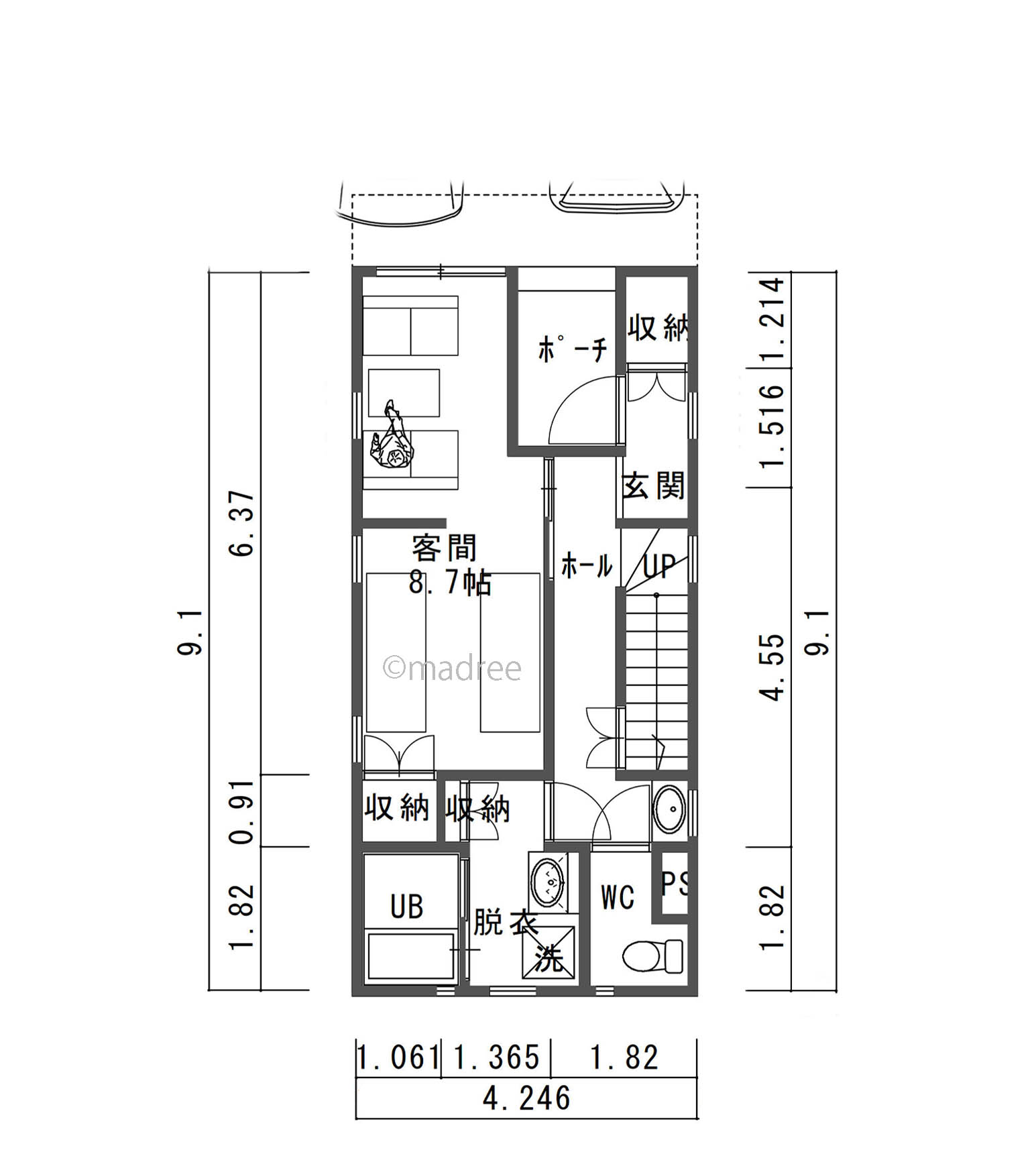
子どもと時間をたくさん共有でき、リラックスと集中をわけられる廊下のない家の間取りアイデア
全国対応になりました
| 階数 | |
|---|---|
| 部屋数 | |
| 家族人数 | |
| 土地特徴 | |
| 特徴 | |
| 広さ | |
| 担当建築家・デザイナー |
建築家・デザイナー
からのコメント
【こだわりのポイント】
■1階
・ビルトインのガレージを2台。
・平面にはタイヤや趣味の物を収納できる外部収納を設けました。
・玄関は外から見えない様に、奥まった位置に設けました。
・上部はアルコーブになっているので、雨の日でも濡れません。
・SICを設け、来客用動線と、家族用動線を分けました。
■2階
・LDK・水回りを設け、家族の共有スペースとしました。
・キッチンからは全体を見渡すことができます。
・極力廊下を排除し、家事動線の良い設計としています。
・リビング南側のバルコニーをウッドテラスとすることで、フローリングが続くような、視覚的な広がりを感じて頂けます。
・各所に収納を設け、散らからない、お家を目指しました。
■3階
・各自の個室スペースとしました。
・それぞれの部屋にしっかりと収納を設け、それぞれが計画的に収納できるように。
■4階
・家族みんなで使えるワークスペース。
・北面は全て収納に。北東にも収納空間を設け、ちいさい図書館のイメージです。
・ウォークスルーできる収納を挟んでカウンターを2カ所用意しました。
・簡単な目隠しを置くことで、半個室にするなど、フレキシブルに利用可能です。
・休日には南のソファで読書なども楽しめます。
45坪~49坪 3LDK関連の間取り
マドリー開発の『住宅営業支援ツール』
madreeデータバンク
マドリーの人気間取り4,800プランを接客・提案に活用できる営業支援ツール
- 競合他社と差がつく、スピード提案
- トレンド間取りで、集客・受注数UP
- 建築家のアイデアを参考に、質の高い提案ができる









