[45坪~49坪 5LDK] 2.5世帯家族が個々の時間も家族時間も心地良く暮らせる空間がある間取りの間取り
全国の建築家から間取りが集まるmadree(マドリー)で集まった45坪~49坪、5LDKの間取りです。オープンキッチンやペニンシュラキッチンが特徴の注文住宅の間取りです。
2.5世帯家族が個々の時間も家族時間も心地良く暮らせる空間がある間取りはこのような方におすすめです
夫:40代会社員 妻:30代会社員 子1人(未就学児) 妻の母: 60代無職 妻の姉:40代会社員
※将来的にもう一人ほしい
趣味:夫はテニス(休日はほぼ毎日) 妻の母は家庭菜園
2.5世帯家族が個々の時間も家族時間も心地良く暮らせる空間がある間取りの間取りアイデア
全国対応になりました
| 階数 | |
|---|---|
| 部屋数 | |
| 家族人数 | |
| 土地特徴 | |
| 特徴 | |
| 広さ | |
| 担当建築家・デザイナー |
建築家・デザイナー
からのコメント
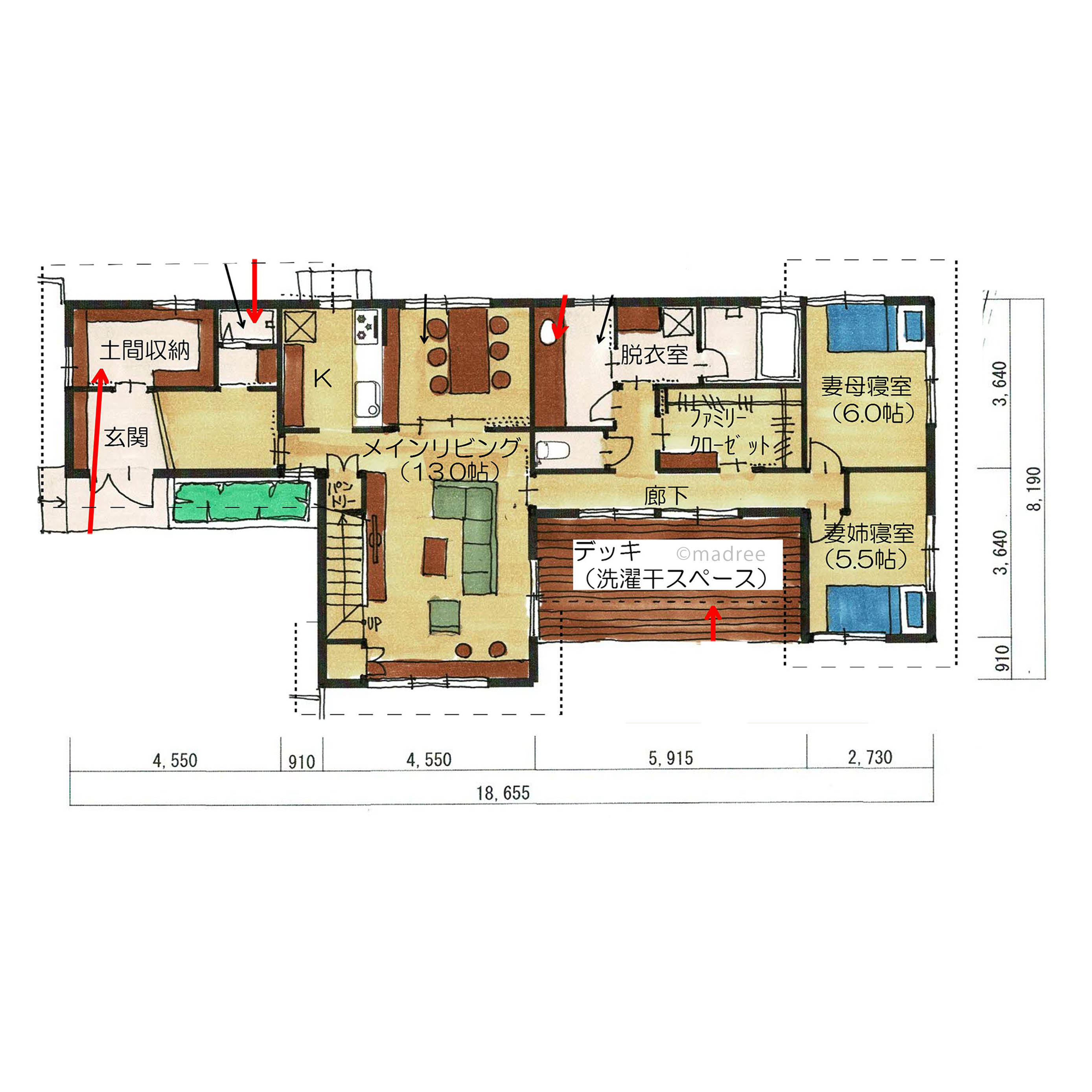
【全体のコンセプト】
・それぞれの世帯が心地よく暮らすことができる家をコンセプトに設計させていただきました。
・敷地が縦長であるメリットを生かして、建物内を気持ちよく往来できるように配慮いたしました。
45坪~49坪 5LDK関連の間取り
マドリー開発の『住宅営業支援ツール』
madreeデータバンク
マドリーの人気間取り4,800プランを接客・提案に活用できる営業支援ツール
- 競合他社と差がつく、スピード提案
- トレンド間取りで、集客・受注数UP
- 建築家のアイデアを参考に、質の高い提案ができる









