[30坪 3LDK] ワンルーム空間の2階LDKで動線スムーズ、狭小な台形地を活かして暮らす家の間取り
全国の建築家から間取りが集まるmadree(マドリー)で集まった30坪、3LDKの間取りです。リビング中心の動線や2階リビングが特徴の注文住宅の間取りです。
ワンルーム空間の2階LDKで動線スムーズ、狭小な台形地を活かして暮らす家はこのような方におすすめです
・夫30代:会社員、妻30代:専業主婦、子ども2人(長女3歳、長男1歳)
ワンルーム空間の2階LDKで動線スムーズ、狭小な台形地を活かして暮らす家の間取りアイデア
全国対応になりました
| 広さ | |
|---|---|
| 階数 | |
| 部屋数 | |
| 家族人数 | |
| 土地特徴 | |
| 特徴 | |
| 担当建築家・デザイナー |
建築家・デザイナー
からのコメント
【全体のコンセプト】
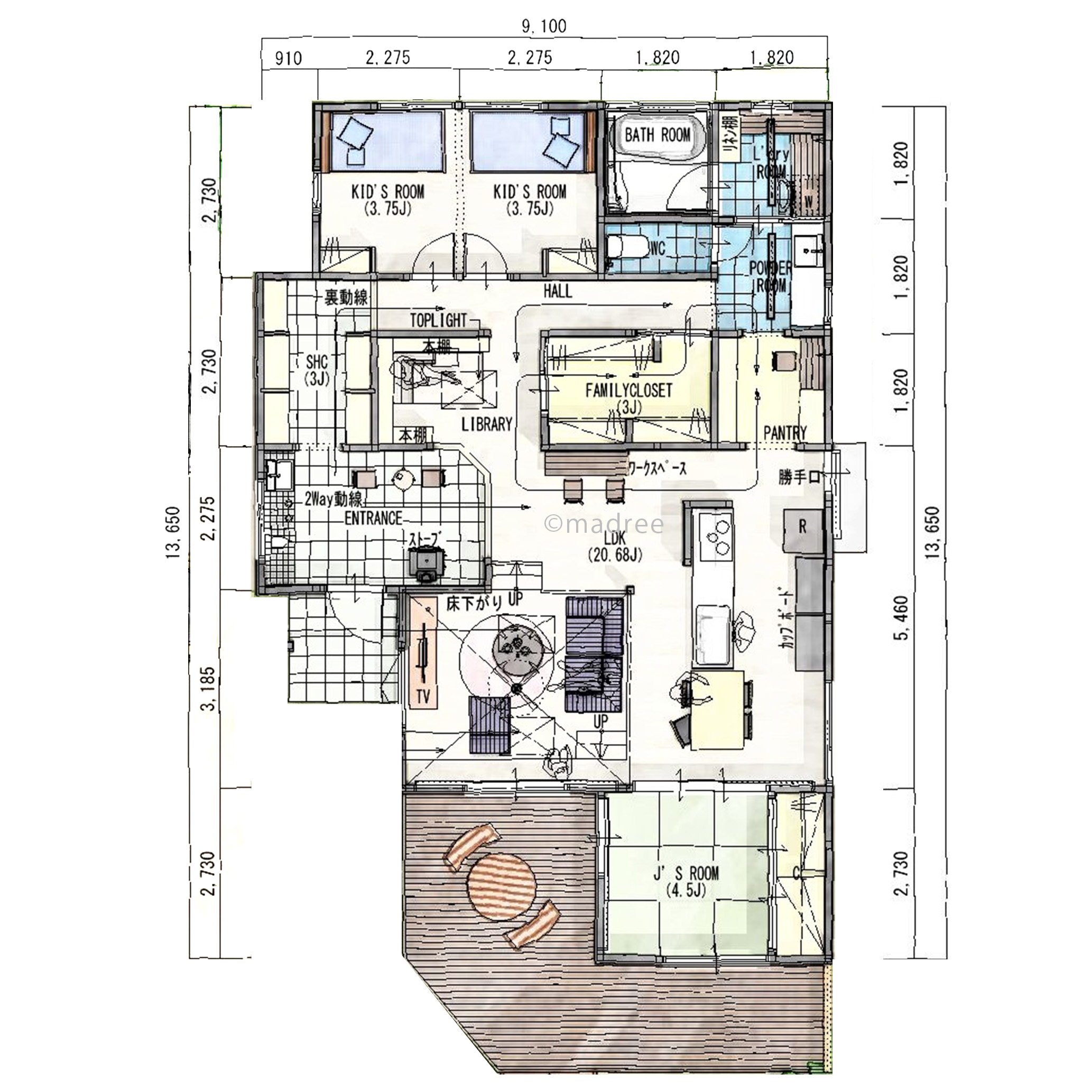
敷地が70㎡。建蔽率が60%(条例でこの敷地の場合角地の特例はありません)で建築面積は42㎡までとなると、1階に玄関、土間収納、トイレをとり、広いLDKに光を十分取り込むのはむずかしいと思い、LDKを2階にもってきました。
床から天井までの大サッシ窓は東向きにして、南側は高窓からの採光を主に考え、建物を少し東に寄せて東向きに大型開口をつけました。そのため、自転車置き場が西側になりました。
【こだわりのポイント】
■1階
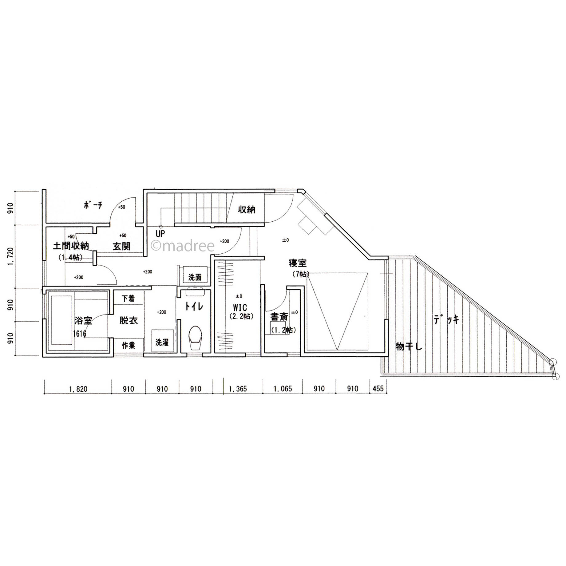
北側道路から建物から入り組んだポーチより玄関にはいります。土間収納があります。浴室、脱衣室、洗濯室、トイレ、と並び、洗面コーナーの奥に寝室の入り口があります。寝室にはWICと書斎があります。寝室の南には塀で囲われたデッキがあり洗濯物はここに干せます。
■2階
階段を上がると床20帖の広さのあるLDKがワンルームになっています。キッチンはアイランド型でダイニングテーブルが並んでいます。キッチンの丸見えはいやな場合はキッチン前のカウンターを少し高めにすることで手元をかくせます。背後に作業台、収納棚が壁に張り付いているので収納はかなりあると思います。
■3階
3階の北側は北道路からの斜線制限のため天井が2階の床から斜めに立ち上がっている状態なので約1.5mは収納(天井高1.4m以下)としています。子供室2室を東西に配置して中央部は廊下とトイレ、納戸としています。
30坪 3LDK関連の間取り
マドリー開発の『住宅営業支援ツール』
madreeデータバンク
マドリーの人気間取り4,800プランを接客・提案に活用できる営業支援ツール
- 競合他社と差がつく、スピード提案
- トレンド間取りで、集客・受注数UP
- 建築家のアイデアを参考に、質の高い提案ができる









