[38坪 2LDK] 限られたスペースを眺めよく有効活用、屋上テラスで家族だけの時間を楽しむ家の間取り
全国の建築家から間取りが集まるmadree(マドリー)で集まった38坪、2LDKの間取りです。外とつながるLDKやリビング吹抜が特徴の注文住宅の間取りです。
限られたスペースを眺めよく有効活用、屋上テラスで家族だけの時間を楽しむ家はこのような方におすすめです
・30代共働き夫婦(妻育休中)、子ども0歳
・趣味:音楽鑑賞、楽器演奏、ゲーム、プラモデル、映画鑑賞、ドラマ鑑賞
・片付けが苦手なので、各自が簡単に片付けられる工夫がしたい。
・隣家に囲まれているため、外時間は屋上庭園で過ごしたい。
限られたスペースを眺めよく有効活用、屋上テラスで家族だけの時間を楽しむ家の間取りアイデア
- 趣味に夢中になれる部屋
- 思い出を飾るギャラリー
- 子どもが自由に遊べるスペース
- ダイニング学習スペース
- 在宅ワークスーペース
- 見守るワークスペース
- 安心して遊べる庭
- キッチン近くのサービスヤード
- プライバシー守る脱衣洗面室
- 身支度に便利な2ボウル洗面台
- 天気も視線も気にせず物干し
- 部屋干しスペースで家事効率UP
- 物をLDKに持ち込まない動線
- 片付けしながらの帰宅後動線
- バルコニーで楽々布団干し
- 景観を損ねない部屋干しスペース
- 洗濯仕事が一箇所で完結
- 2階にまとめた水廻り動線
- キッチン中心の回遊動線
- 天窓/高窓から自然の光取り込む
- 屋上庭園/プライベートガーデン
- 隠せるパントリー
- 玄関近くの廊下に洗面カウンター
全国対応になりました
建築家・デザイナー
からのコメント
【全体のコンセプト】
・コンパクトでも光や風や緑を感じながら過ごせる家。
【こだわりのポイント】
■配置計画
・敷地を有効に活用できるよう、建物を可能な限り大きく確保しています。
・1階は食事や寛ぎの場、2階は水廻りや就寝の場、屋上は菜園の場として空間を分けて構成しました。
・東側に玄関や階段を配置する事で、各部屋や屋上への動線をコンパクトにまとめました。
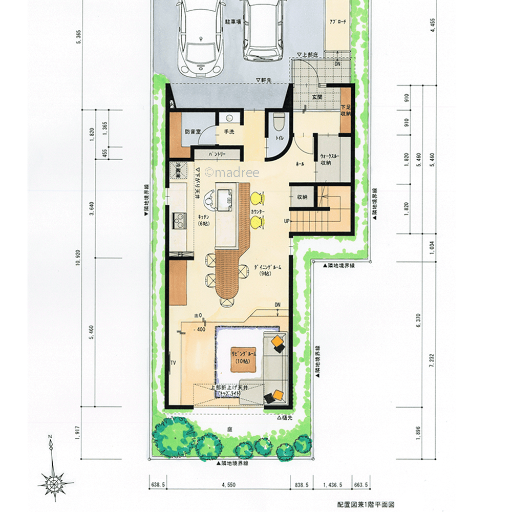
■1階
・玄関ホールの扉を開けると、アーチ壁に沿って奥へ空間が広がるようにしました。
・手洗いへは扉無しでアクセス可能ですが、LDKからの視界に入らないよう見え方にも配慮しています。
・防音室は隣地への影響も考慮し、前面道路側に計画しています。
・キッチンはセパレートタイプで、換気扇を壁側に設ける事でサイズよりも広く感じられます。
・キッチンとダイニングの境に腰壁を設けて、手元を隠したり、水撥ねを防止できるようにしました。
・キッチン前カウンターは、軽食やスタディコーナーとして活用できます。
・リビングはダウンフロアで計画しました。椅子の座面高と近い設定にする事で、床に腰かける事ができます。
・リビング南面の天井は、下屋根トップライトの光を取り込めるよう折り上げ天井としています。
■2階
・子ども室と主寝室との間に水廻りを集約し、就寝時や起床後にスムーズに行動できます。
・脱衣所内に洗濯機が設置可能なので、バルコニーや屋上へのアクセスも良好です。
・主寝室に造作の家具を設けて、書斎や鏡台として利用できるようにしました。
・WICはバルコニーから近いので、洗濯後の収納が楽に行えます。
・子ども室は、将来フレキシブルに対応できるよう造作収納をあえて計画していません。
■屋上
・ウッドデッキを設ける事で、菜園だけでなくBBQや日光浴、プールなども楽しめます。
・2階の洗面所への動線を短くして、手洗いや水汲みなどもしやすくしました。
38坪 2LDK関連の間取り
マドリー開発の『住宅営業支援ツール』
madreeデータバンク
マドリーの人気間取り4,800プランを接客・提案に活用できる営業支援ツール
- 競合他社と差がつく、スピード提案
- トレンド間取りで、集客・受注数UP
- 建築家のアイデアを参考に、質の高い提案ができる









