[36坪 2LDK] 1日太陽の動きを感じる、視線が外に抜けて心地良い家の間取り
全国の建築家から間取りが集まるmadree(マドリー)で集まった36坪、2LDKの間取りです。外とつながるLDKやアウトドアリビングが特徴の注文住宅の間取りです。
1日太陽の動きを感じる、視線が外に抜けて心地良い家はこのような方におすすめです
・30代共働き夫婦、子ども3人(長男9、長女7,次男5)/水の生き物飼っている
・趣味:キャンプ、絵を描くこと、映画鑑賞、お酒、読書
・隣家がせまっているが、家族でくつろげる屋外空間がほしい。
・一日自然光を感じられ、景色の良いLDKにしたい。
1日太陽の動きを感じる、視線が外に抜けて心地良い家の間取りアイデア
全国対応になりました
| 広さ | |
|---|---|
| 階数 | |
| 土地特徴 | |
| 部屋数 | |
| 家族人数 | |
| 特徴 | |
| 担当建築家・デザイナー |
建築家・デザイナー
からのコメント
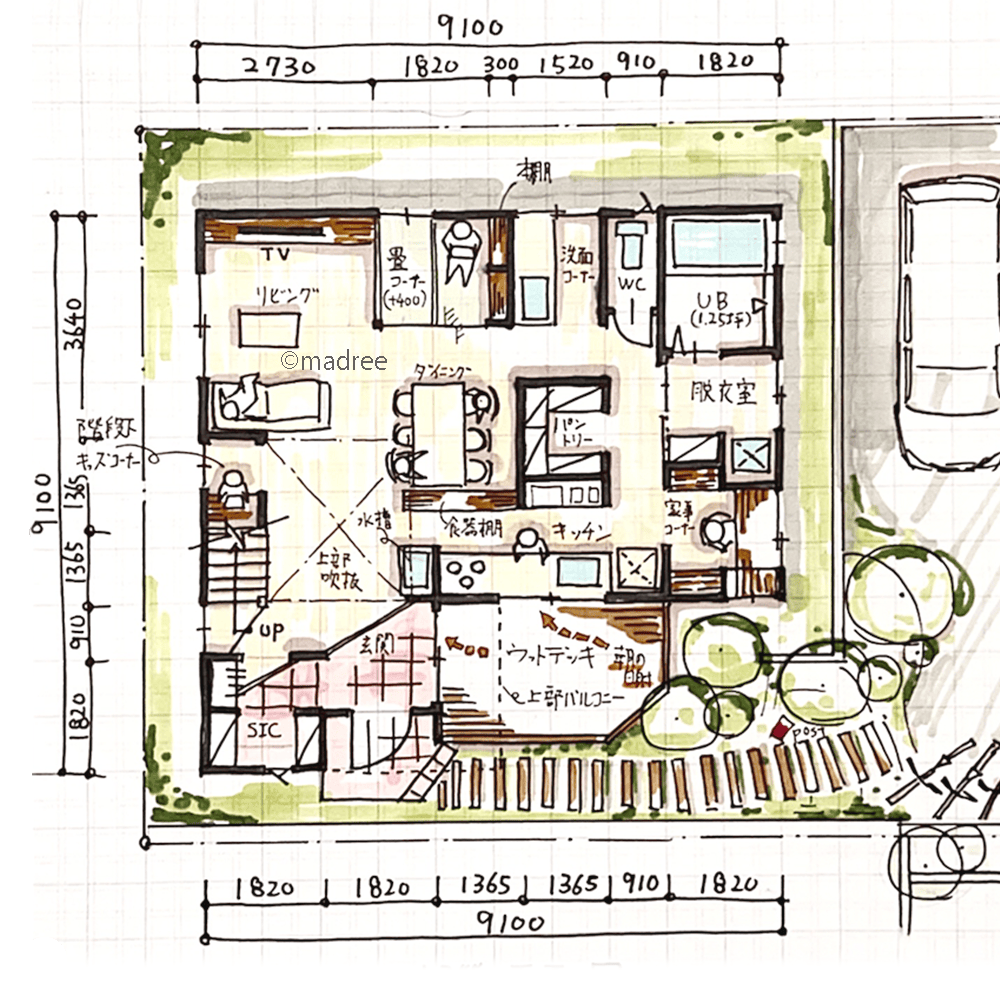
【敷地、配置計画】
・駐車スペースの取り方はまとまった植栽スペースを取るために、道路と並列に1台分のスペースを確保しています。隣地との高低差もあるので、道路と直行方向に駐車する配置はコスト面で割高になると思われます。
・道路面との高低差もあるので、高低差の処理をするのにRC造、もしくは型枠ブロックによる土留を作る計画としています。建物の基礎で高低差の処理をするやり方もありますが、高度斜線の規制がある地域なので、深基礎の形としてしまうと建物の高さの検討で不利になってしまいます。
・キッチンからの眺め、外の景色を感じる浴室、パントリーやキッチンの回遊動線等を踏まえ、キッチンと浴室は東側の道路寄りに、玄関は南側に寄せる計画としました。
・日当たりがいい南側に玄関を配置することは勿体無いような気がしますが、今回の玄関の場所は東南側、南側隣地の建物がそれぞれ迫っている部分なので、日中の1階への日当たりに関しては、弱い部分になると思います。特に太陽高度の低くなる冬の日差しはかなり悪くなると思うので、この部分は玄関として、その奥にリビングダイニングを配置しました。
・リビング上部に吹抜を設け、2階からリビングに日差しを下ろす計画となります。冬場の日差しも2階の吹抜から1階へ十分取り込めるようになります。
【こだわりのポイント】
■1階
・玄関は家族とお客様の出入り口を分け、土間収納からも出入りできる計画としています。
・庭でバーベキューができるよう、デッキには玄関から出入りする計画としています。玄関で履き物を履いて出入りできるので、履き物を置く場所も困らないです。キッチンとデッキは窓越しに会話や料理の受け渡しもできるので便利に使えると思います。玄関を上がってすぐ横に水槽を置くスペースを設けています。
・LDKはキッチンの配置を優先して南東側の景色の抜けが良い場所に配置しました。リビングは回遊動線とは縁が切れた位置なので、落ち着いてくつろげるスペースになると思います。
・ダイニングは横幅1.8mくらいの6人掛けテーブルも置けるスペースになります。パントリーとの間仕切り壁があるので、絵画を飾ると雰囲気がある空間になると思います。吹抜とも近い位置なので自然光も降り明るい空間になります。
・キッチンは集中して料理ができるよう、ダイニングとは目線を遮れる程度の壁を立ち上げて(レストランのパーテーションのようなイメージ)キッチン側は食器を置ける収納棚として使う計画としています。回遊動線として脱衣室、トイレ、洗面、パントリーにも行き来しやすい計画としています。パントリーは床から天井までの可動棚を4列分配置できるので、大容量のパントリーとして利用できます。
・家事室と見せかけた、奥様の部屋はキッチンの隣のスペースに配置しました。1坪分のスペースになります。大きい絵を描くには少し狭いかもしれませんが集中して作業する書斎のようなイメージです。外の景色も眺めのいい場所なので、落ち着く居場所になるのではないでしょうか。またキッチン、洗面にも近い位置なので家事の合間の居場所にもなると思います。
・脱衣室にはタオル、下着などを置ける可動棚と洗濯機を置くスペースを配置しています。
・洗面は脱衣室とは別のトイレの隣のスペースに配置しています。横幅は1.8m幅なので、大人2人並んでも広々使えます。
・洗面の壁の反対側に2畳分の畳コーナーを設けました。リビングダイニングの一角に位置しています。床から40cm程度畳を上げるとベンチとしても使えます。畳コーナの横に本棚には、絵本や大人の書籍も収納して畳でくつろぎながら本を読めます。
・階段位置はリビングの一角に配置しています。吹抜と空間を一緒にする事でオープン階段となり、2階からの自然光もより1階に取り込みやすい計画になっています。階段下のスペースはお子様のセミクローズな空間として使えるキッズスペースを設けています。
■2階
・6畳の主寝室はシングルベッド2台を置く計画としてレイアウトしています。奥には共有で使う3畳分のファミリークロークを配置しています。トイレもその隣に配置しています。
・子ども部屋は、女の子部屋は4.5畳+クローゼット、現状オープンな空間を男の子部屋として7.6畳の空間(点線の範囲)を配置する計画としています。異性同士だとなかなか一つの部屋で過ごすのも難しい時期があると思いますので一部屋はあらかじめ独立させる計画としました。
・2階の共有スペースにスタディカウンターを設け、勉強はここでするイメージです。また洗濯も共有スペースに干す計画としています。
・吹抜、共有スペースを勾配天井とする事で、1階から見上げるとかなりの大空間が広がる計画となります。勾配天井にシーリングファンを付けて空気を循環してあげると、室内の温熱環境を均一にする効果を得られるようになります。また、勾配天井の高い位置にハイサイドライトを設置する事で西側の空も夕陽が綺麗に広がって見えるようになると思います。
・共有スペースから2階のバルコニーに出られ、このスペースは第二の庭として使える屋外空間になります。南側、西側の隣からの視線を遮るようにバルコニーの壁を高くして東側の植栽に視線が抜ける気持ち良いスペースになると思います。
36坪 2LDK関連の間取り
マドリー開発の『住宅営業支援ツール』
madreeデータバンク
マドリーの人気間取り4,800プランを接客・提案に活用できる営業支援ツール
- 競合他社と差がつく、スピード提案
- トレンド間取りで、集客・受注数UP
- 建築家のアイデアを参考に、質の高い提案ができる









