[27坪〜30坪 5LDK] スムーズなおもてなし動線で気軽にお泊りできる、人が自然と集まる賑やかな家の間取り
全国の建築家から間取りが集まるmadree(マドリー)で集まった27坪〜30坪、5LDKの間取りです。外とつながるLDKやアウトドアリビングが特徴の注文住宅の間取りです。
スムーズなおもてなし動線で気軽にお泊りできる、人が自然と集まる賑やかな家はこのような方におすすめです
・20代共働き夫婦/子ども3人予定
・趣味:料理、アウトドア、映画鑑賞
・大画面で映画を楽しみたいので、趣味部屋を確保したい。
・自立を促したいので、各個室から布団を自分で干せるようにしたい。
スムーズなおもてなし動線で気軽にお泊りできる、人が自然と集まる賑やかな家の間取りアイデア
- 屋外で非日常感楽しむ
- 趣味に夢中になれる部屋
- 子どもが自由に遊べるスペース
- ダイニング学習スペース
- 在宅ワークスーペース
- 見守るワークスペース
- 安心して遊べる庭
- 物をLDKに持ち込まない動線
- バルコニーで楽々布団干し
- 景観を損ねない部屋干しスペース
- シンプルな家事動線
- キッチン近くの水廻り動線
- 回遊性のある水廻り
- 屋内外が繋がる回遊動線
- 適所収納で使いやすく片付ける
- 片付けが苦手でもスッキリ魅せる
- まとめ買い安心大容量パントリー
- 大人数に対応できるLDK
- 開口窓で開放的なリビング
- 寝るだけの小さな子ども部屋
- 廊下で繋がるプライベート空間
- 来客が気軽に宿泊できる
- 子どものプライベート守る個室の配置
全国対応になりました
| 広さ | |
|---|---|
| 階数 | |
| 土地特徴 | |
| 部屋数 | |
| 家族人数 | |
| 特徴 | |
| 担当建築家・デザイナー |
建築家・デザイナー
からのコメント
【こだわりのポイント】
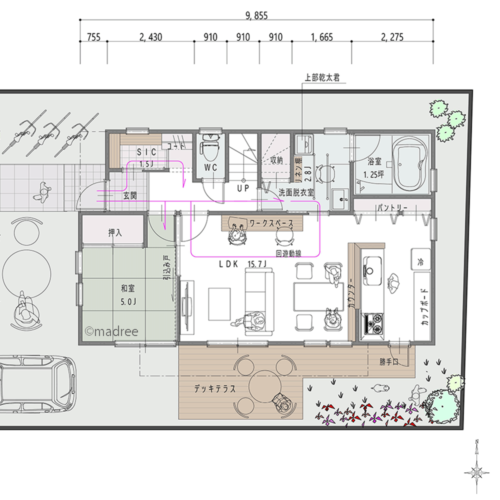
■1階
・LDKに家族がいつでも集まって楽しい時間が過ごせるよう、なるべくLDKが広くなるようにプランしました。
・キッチンからはテレビ・ソファ・ワークスペースが見渡せ、家事をしながらいつでも家族とコミュニケーションが取れます。また、ダイニングから全員がテレビを見られる配置になっています。
・リビングはウッドデッキと繋がっていて、BBQを楽しんだりプールで遊んだりできます。キッチン横には勝手口があるので、BBQの料理を運んだり、後片付けをしたりするのが楽になっています。また、家庭菜園で作った野菜などを採りに出る動線としても便利です。
・玄関はシューズクロークで靴を脱ぎコートをかけてホールに出られる2WAY動線になっています。
・和室はホールから直接入ることができ、お客様の布団を収納できる押入れがあります。
・洗面脱衣室はリビングを通らずホールから直接アクセスできるので帰宅後すぐ手洗いができ、キッチン近くからも入れる回遊動線になっているので、料理をしながらの洗濯が楽な家事ラク動線になっています。
・階段下を利用した収納もあり、掃除道具など日用品の収納に便利です。
・浴室は1.25坪の広いタイプなのでテレビを見ながらゆったりと一日の疲れを癒やせます。
■2階
・北側は斜線制限がかかるので、トイレや階段などを北に持っていき、子ども部屋は陽当たりの良い南側にしています。
・主寝室とオーディオルームは屋根なりの勾配天井にすることで、斜線制限で天井が一部低くなっても広く感じられるようにします。各個室は面積の関係上小さいですが、それぞれ角部屋で風が通り抜ける気持ちの良い生活空間になるようにしています。
・2人で使う子ども部屋は、2段ベッドを使用する計画です。小さい方の子ども部屋は、最近よく市販されているベッドの下が勉強机になっているタイプのものを使用するのが良いかと思います。それぞれバルコニーに面していて布団干しが楽にできるようにしました。
・小さいですがオーディオルームも作っているので、趣味の時間も楽しめます。
27坪〜30坪 5LDK関連の間取り
マドリー開発の『住宅営業支援ツール』
madreeデータバンク
マドリーの人気間取り4,800プランを接客・提案に活用できる営業支援ツール
- 競合他社と差がつく、スピード提案
- トレンド間取りで、集客・受注数UP
- 建築家のアイデアを参考に、質の高い提案ができる









