[39坪 6LDK] 家族の成長と共に住まい方も変化、外空間と一体感を感じられる家の間取り
全国の建築家から間取りが集まるmadree(マドリー)で集まった39坪、6LDKの間取りです。オープンキッチンやⅡ型キッチンが特徴の注文住宅の間取りです。
家族の成長と共に住まい方も変化、外空間と一体感を感じられる家はこのような方におすすめです
・家族構成:30代共働き夫婦、子ども2人(3歳、5歳)
・趣味:ゴルフ、絵画、映画鑑賞
家族の成長と共に住まい方も変化、外空間と一体感を感じられる家の間取りアイデア
全国対応になりました
| 階数 | |
|---|---|
| 部屋数 | |
| 家族人数 | |
| 土地特徴 | |
| 特徴 | |
| 広さ | |
| 担当建築家・デザイナー |
建築家・デザイナー
からのコメント
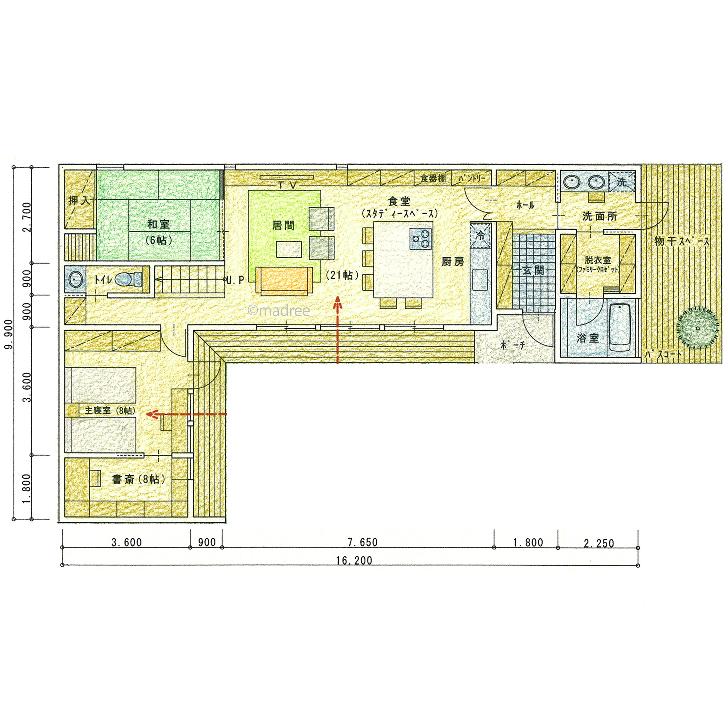
【全体のコンセプト】
・計画敷地を南側に計画しました。理由として角地となり建蔽率が10%加算されることと採光の面で有利に働くからです。
・リビングには南側の太陽光、主寝室、子供室には朝日が庭を中心として降り注ぐL型プランとしました。
・リビング空間を平屋とすることで将来北側で計画される賃貸住宅に南からの太陽光が当たる計画になっています。
・御家族が懸念される交通量の多い角地道路ですが西に主寝室、子供室、北側には奥行のあるリビング、庭を中心として計画することでプライバシーが保てる計画となっています。
【こだわりのポイント】
■1階
・庭を中心とした日当たりのよいリビング空間、庭が主役の住空間を提案することで家族との対話が生まれ生活を楽しむことができる空間となりました。
■2階
・朝日注ぐ子供室、将来のお子様のための予備室を配置しました。
39坪 6LDK関連の間取り
マドリー開発の『住宅営業支援ツール』
madreeデータバンク
マドリーの人気間取り4,800プランを接客・提案に活用できる営業支援ツール
- 競合他社と差がつく、スピード提案
- トレンド間取りで、集客・受注数UP
- 建築家のアイデアを参考に、質の高い提案ができる









