[33坪~36坪 3LDK] 趣味も子育ても来客対応もOK!暮らしが満ちる心地良い間取りの間取り
全国の建築家から間取りが集まるmadree(マドリー)で集まった33坪~36坪、3LDKの間取りです。オープンキッチンやペニンシュラキッチンが特徴の注文住宅の間取りです。
趣味も子育ても来客対応もOK!暮らしが満ちる心地良い間取りはこのような方におすすめです
30代共働き 子どもなし(将来1〜2人予定) 小動物のペット(デグーマウス)が2匹 将来は犬を飼いたい。
夫は趣味でDJをします。web関係の仕事で、自宅で作業が多い。妻は料理が好き。2人とも旅行が好きです。
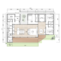
趣味も子育ても来客対応もOK!暮らしが満ちる心地良い間取りの間取りアイデア
全国対応になりました
| 階数 | |
|---|---|
| 部屋数 | |
| 家族人数 | |
| 土地特徴 | |
| 特徴 | |
| 広さ | |
| 担当建築家・デザイナー | 
建築家・デザイナー
からのコメント
                【全体のコンセプト】
・この敷地は南北共に、隣地の専用通路になっていて建物が建つ事は無く、敷地境界線より約2m50cm以上は空きスペースになる事が予想できる敷地であると考えられます。
・計画建物を、南北一杯に建てたとしても、光も入ってくるし、風も通る、そんな事に着目して設計を行いました。
・1階の要望が敷地に対して多いこと、2階はそれ程多くない事に着目して設計を進めて行きました。
・敷地境界からの離れは、民法同意の不要な50cmを確保しながら、設計をしました。
・敷地南西に庭を設け、そこをLDKどこからでも感じる事が出来るよう計画しました。
【こだわりのポイント】
■1階
・南に面してLDKをとり、南及び西から明かりをとる計画です。
・西に対して開く事で、LDKどこからも庭を感じながら生活する事が出来ます。
・キッチンからも、家族の様子を感じたり、庭を眺めながら調理する事も出来ます。
・お気に入りの森のことばもよく見えます。
・LDKは南側にも開放されていますので、とても開放的な空間になると思います。
・キッチンは対面で計画し、冷蔵庫は御要望により、ダイニングテーブルからも近い位置に配置しました。
・カップボードは2700mmまで設置することが出来、充実したキッチンとなるよう配慮しました。
・リビングはソファに座ったり床に座ったり出来るよう少し余裕を持って設計しました。
・タタミコーナーはリビングに隣接して取るようにし、扉を閉めた時には、玄関からトイレ、タタミコーナーまでで仕切れるのであらたまったお客様がいらっしゃった時にもリビングを隠すこともできる計画です。
・普段は開けておいて、リビングと一体で使って頂けます。
・北側にも大きな開口を取っていますので、季節の良いときには、窓を開放して南から北にどんどん風が通ると思います。
・脱衣室、浴室は、キッチンの近くに配置し家事動線を考慮した計画となっています。
・脱衣室は少し広い目に確保できていますので、室内干しにも利用できるよう提案しています。
・玄関を入ってツーウェイの動線が出来るようなエントランスクロークも確保しています。
・帰ってきて、ファミリークロークにコートやバッグなどを置き、お手洗いを済ませ手を洗い、リビングに入っていく事が出来るように計画しました。
・帰ってきて一旦リビングに入ってから2階に上がるように計画していますので、お子様の様子も分かるような造りにしました。
■2階
・階段を上がって子供たちの気配を感じながら、御寝室に入っていける様な配置としました。
・お子様のお部屋は、収納込みで各6帖の大きさを確保しています。
・将来、2人のお子様が出来、大きくなってきた頃に、間仕切りと収納を追加して頂く事で、それぞれ6帖の大きさとなります。
・御寝室は、ベッドとテレビを置いても十分な広さが確保出来るように計画しました。
・御寝室には、2.5帖のウォークインクローゼットを確保しています。
・御主人は自宅でお仕事をしたり、DJの趣味があるので、御主人専用の書斎を確保しました。
・書斎と寝室から南西のバルコニーに出る事が出来る計画です。
・バルコニーも南西に計画する事で1階のお庭に明かりが少しでも多く落ちるような配慮をしています。
・趣味の物や、家族共有のものをしまえるように納戸の提案もさせて頂きました。
33坪~36坪 3LDK関連の間取り
マドリー開発の『住宅営業支援ツール』
 
          madreeデータバンク
            
マドリーの人気間取り4,800プランを接客・提案に活用できる営業支援ツール
- 競合他社と差がつく、スピード提案
- トレンド間取りで、集客・受注数UP
- 建築家のアイデアを参考に、質の高い提案ができる

![[33坪~36坪 3LDK] 趣味も子育ても来客対応もOK!暮らしが満ちる心地良い間取りの間取り図 1階の画像](https://madree-production.s3.ap-northeast-1.amazonaws.com/uploads/images/plans/3840335b43a6e9d57bd5be6fd879364d.png) 
                                                      ![[33坪~36坪 3LDK] 趣味も子育ても来客対応もOK!暮らしが満ちる心地良い間取りの間取り図](https://madree-production.s3.ap-northeast-1.amazonaws.com/uploads/images/madree_blurred_image.png) 
                                                  








 
          