[45坪~49坪 5LDK] 奥行き深い敷地でも機能的で住み心地良い暮らしが叶う間取りの間取り
全国の建築家から間取りが集まるmadree(マドリー)で集まった45坪~49坪、5LDKの間取りです。オープンキッチンやアイランドキッチンが特徴の注文住宅の間取りです。
奥行き深い敷地でも機能的で住み心地良い暮らしが叶う間取りはこのような方におすすめです
30代夫婦、子供1人(乳幼児。数年後に子供はもう一人希望)
夫は土日にPCや投資の勉強をするのが楽しみ。
奥行き深い敷地でも機能的で住み心地良い暮らしが叶う間取りの間取りアイデア
全国対応になりました
| 階数 | |
|---|---|
| 部屋数 | |
| 家族人数 | |
| 土地特徴 | |
| 特徴 | |
| 広さ | |
| 担当建築家・デザイナー |
建築家・デザイナー
からのコメント
【全体のコンセプト】
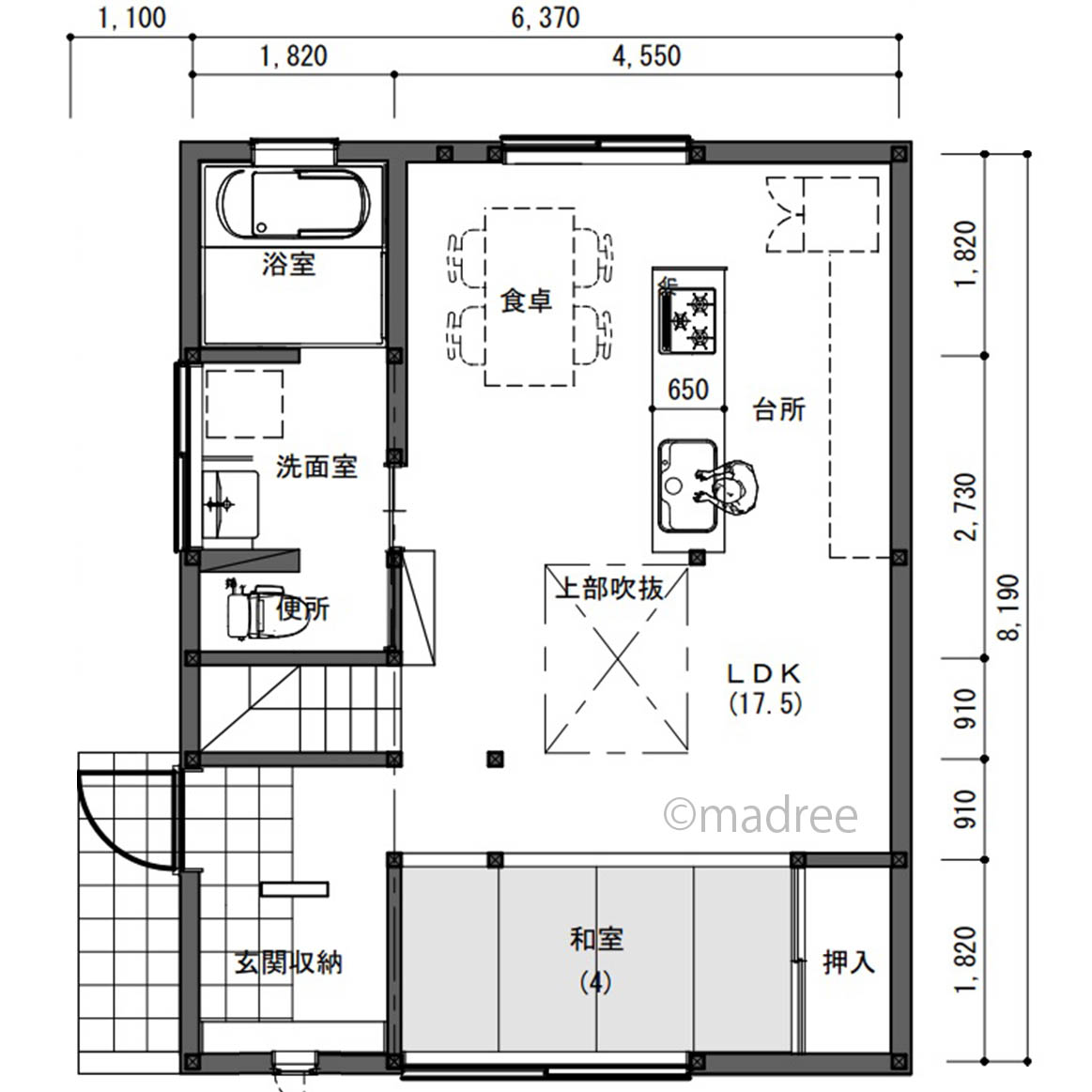
奥行きの深い敷地形状を活かし、家全体が機能的で、皆が集まるリビングが明るく心地よい空間となるよう計画しました。
【こだわりのポイント】
■1階
・駐車スペース
車の昇降や、玄関までの通路にゆとりを持てるよう、2台縦列としています。
・玄関廻り
玄関、ホールはゆったりとした広さをとっており、1Fでも暗い印象にならないようにしています。
・1F居室
子供部屋2部屋と客間を1Fに配置しています。
隣接する子供部屋は、お子様が小さいうちは仕切らず広い一部屋としてもお使いいただけます。
・1F収納
土間収納のほか、3帖の収納部屋や廊下にも収納があり、用途別に分類してたっぷり収納できます。
■2階
・2FLDK
南側に面した、約17帖の広々としたLDKです。
上部は高天井としており、さらに開放感が出ます。
リビングに連続してサンルーム、テラスを設けています。
ご自宅でお過ごしになる時間の中で、リビングの延長として、外の空気を感じながら遊んだりくつろいだりできる空間です。
キッチンには間仕切り戸を設けており、ご来客時などはリビング、ダイニングから独立させ見えないようにすることもできます。
・2F水廻り
家事動線がコンパクトになるよう、LDKと同じフロアで近接した場所に水廻りを設けています。
ファミリークローゼットも近接し、家事や身支度がスムーズに行えます。
・2F居室
2Fに主寝室と書斎を配置しました。
主寝室には専用のWICも設けています。
45坪~49坪 5LDK関連の間取り
マドリー開発の『住宅営業支援ツール』
madreeデータバンク
マドリーの人気間取り4,800プランを接客・提案に活用できる営業支援ツール
- 競合他社と差がつく、スピード提案
- トレンド間取りで、集客・受注数UP
- 建築家のアイデアを参考に、質の高い提案ができる









