[71坪 4LDK] プライバシーに配慮したおもてなし動線で、ゲストと豊かな時間過ごす家の間取り
全国の建築家から間取りが集まるmadree(マドリー)で集まった71坪、4LDKの間取りです。外とつながるLDKやアウトドアリビングが特徴の注文住宅の間取りです。
プライバシーに配慮したおもてなし動線で、ゲストと豊かな時間過ごす家はこのような方におすすめです
・自営業の40代夫婦、男の子兄弟(14歳、11歳)
・趣味:ゴルフ、釣り、野球、ファッション
・友人数人が泊まることがあるので、ゲストルームはしっかり確保したい。
・まわりの視線を気にせず、BBQなど楽しむアウトドアリビングが欲しい。
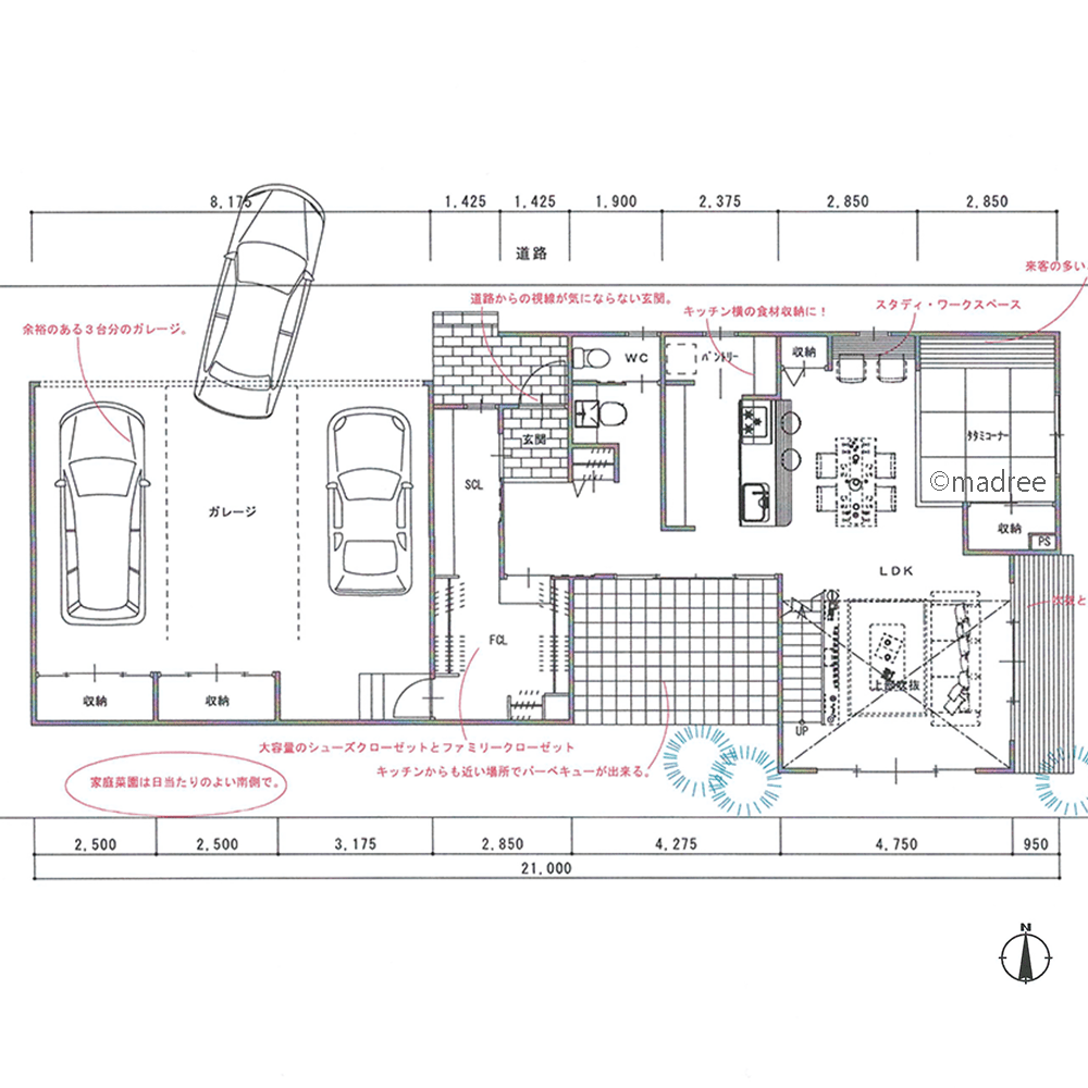
プライバシーに配慮したおもてなし動線で、ゲストと豊かな時間過ごす家の間取りアイデア
全国対応になりました
| 広さ | |
|---|---|
| 階数 | |
| 土地特徴 | |
| 部屋数 | |
| 家族人数 | |
| 特徴 | |
| 担当建築家・デザイナー |
建築家・デザイナー
からのコメント
【こだわりのポイント】
・ガレージは出入りしやすいこと、玄関へのアプローチは目線を遮るものを設けること、居室は東側南側に配置し、道路からの視線が届かないようにすることの3点を考慮しプランニングしました。
・来客が多いということで、通常家族のくつろぎスペースに加えて畳コーナーやウッドデッキ、タイルデッキを設けて対応できるようにしました。
・動線上に収納(SCL、FCL、玄関横のコート掛けなど)を設け、ムダな動きを減らすようにしました。
71坪 4LDK関連の間取り
マドリー開発の『住宅営業支援ツール』
madreeデータバンク
マドリーの人気間取り4,800プランを接客・提案に活用できる営業支援ツール
- 競合他社と差がつく、スピード提案
- トレンド間取りで、集客・受注数UP
- 建築家のアイデアを参考に、質の高い提案ができる









