[39坪 4LDK] 回遊家事で自分時間を生み出す、程よい距離で互いを見守る二世帯住宅の間取り
全国の建築家から間取りが集まるmadree(マドリー)で集まった39坪、4LDKの間取りです。外とつながるLDKやリビング中心の動線が特徴の注文住宅の間取りです。
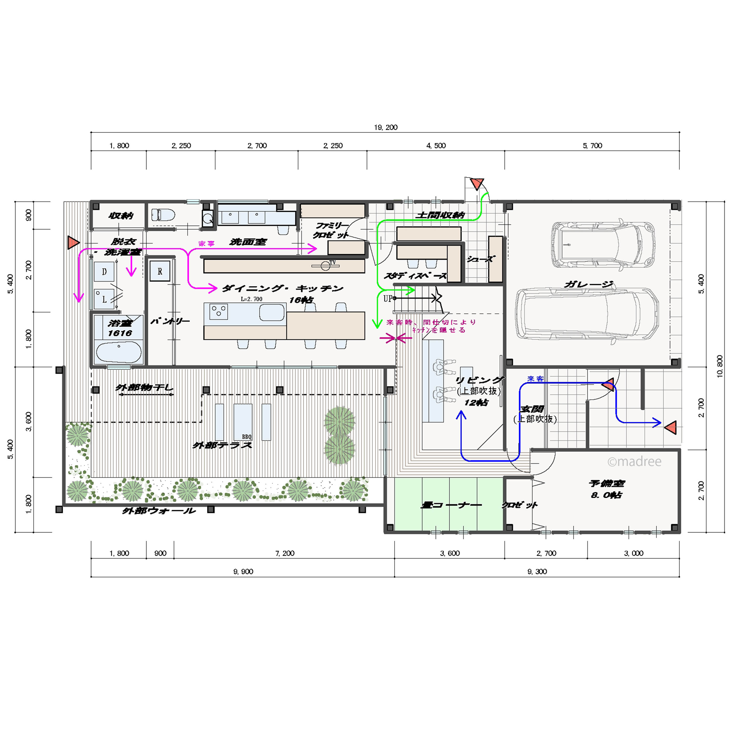
回遊家事で自分時間を生み出す、程よい距離で互いを見守る二世帯住宅はこのような方におすすめです
・40代自営業の夫婦、娘2歳+妻の母
・趣味:旅行、器あつめ、ジェットスキー
・並行家事がしやすいよう、キッチンから回遊できる家事動線を希望。
・食器や家電など生活感のでるものは、全てパントリーに収納したい。
回遊家事で自分時間を生み出す、程よい距離で互いを見守る二世帯住宅の間取りアイデア
全国対応になりました
| 広さ | |
|---|---|
| 階数 | |
| 土地特徴 | |
| 部屋数 | |
| 家族人数 | |
| 特徴 | |
| 担当建築家・デザイナー |
建築家・デザイナー
からのコメント
【こだわりのポイント】
「少しで良いから自分時間を捻出したい間取り」
・採光が期待できる南にLDKを配置。明るく広々としたリビングとしました。
・収納は各所に設け、使いやすい収納計画としています。ファミリークロークは動線よく、2カ所からアクセスできるつくりとしました。
・キッチン→パントリー→洗面を隣接させ、家事動線のよい設計としています。
・北側の個室はお母さまの寝室。東側の3室はお子さま、ご夫婦それぞれの個室の想定です。各部屋に収納を設け、使いやすい部屋としています。
39坪 4LDK関連の間取り
マドリー開発の『住宅営業支援ツール』
madreeデータバンク
マドリーの人気間取り4,800プランを接客・提案に活用できる営業支援ツール
- 競合他社と差がつく、スピード提案
- トレンド間取りで、集客・受注数UP
- 建築家のアイデアを参考に、質の高い提案ができる









