[36坪 3LDK] 大きな吹抜と大窓で縦横に空間広がる、光と風が心地良い在宅ワーカーの家の間取り
全国の建築家から間取りが集まるmadree(マドリー)で集まった36坪、3LDKの間取りです。外とつながるLDKやアウトドアリビングが特徴の注文住宅の間取りです。
大きな吹抜と大窓で縦横に空間広がる、光と風が心地良い在宅ワーカーの家はこのような方におすすめです
・20代共働き夫婦/子ども2人希望
・趣味:旅行
・在宅ワークなので、明るく息抜きもできる書斎スペースが欲しい。
・家族時間を大切にしたいので、あえて子ども部屋は最低限の広さとしたい。
大きな吹抜と大窓で縦横に空間広がる、光と風が心地良い在宅ワーカーの家の間取りアイデア
全国対応になりました
| 広さ | |
|---|---|
| 階数 | |
| 土地特徴 | |
| 部屋数 | |
| 家族人数 | |
| 特徴 | |
| 担当建築家・デザイナー |
建築家・デザイナー
からのコメント
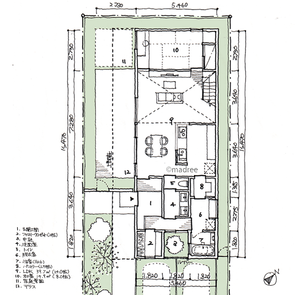
【全体のコンセプト】
「広々と南に開く、大きなテラスがある家」
東西に長い敷地の形状を最大限活かそうと考えました。建物を東西に長くし北側に寄せることで、南側からの自然光が入る明るいリビングと、それに続く大きなテラスのある、広々とした家を設計しました。
【各階のポイント】
■1階
・玄関土間は広めの2畳、一方は家族のクローゼットや水廻りとつながる廊下、もう一方はリビングへとつながる2WAYの玄関とすることで、来客にも対応できる動線計画としました。
・ファミリークローゼットは2畳の広さとし、コートや靴などの出し入れが便利なように玄関そばに配置しました。
・洗面は2ボウルとし、トイレとつながる計画としています。
・脱衣室は洗濯機と脱衣収納があり、パントリーを介してキッチンとつなげることで、家事動線にも配慮しています。
・浴室は1616サイズ、窓は中庭に面して設けることで、明るさは確保しながらも、プライバシーに配慮した設計としています。
・LDKは広々の24畳、キッチン・ダイニング双方からリビングのテレビが見えるようにしました。
・和室は書斎スペースと床の間・押入れ付き、全部で8畳の広さとしており、来客も広々と過ごせる空間としています。
■2階
・リビングのスケルトン階段を昇ると、2階の廊下があり、正面に2つ目のファミリークローゼットを計画しました。
・子ども部屋は将来的に2つに間仕切れるようにしています。
・主寝室には、専用の大容量ウォークインクローゼットを設けています。
・2階の居室も1階と同様、全て南側に面する明るい空間としました。
36坪 3LDK関連の間取り
マドリー開発の『住宅営業支援ツール』
madreeデータバンク
マドリーの人気間取り4,800プランを接客・提案に活用できる営業支援ツール
- 競合他社と差がつく、スピード提案
- トレンド間取りで、集客・受注数UP
- 建築家のアイデアを参考に、質の高い提案ができる









