[39坪 5LDK] 水廻りとファミクロをぐるっと回って朝支度、どの部屋にも陽が入る平屋の二世帯住宅の間取り
全国の建築家から間取りが集まるmadree(マドリー)で集まった39坪、5LDKの間取りです。外とつながるLDKやアウトドアリビングが特徴の注文住宅の間取りです。
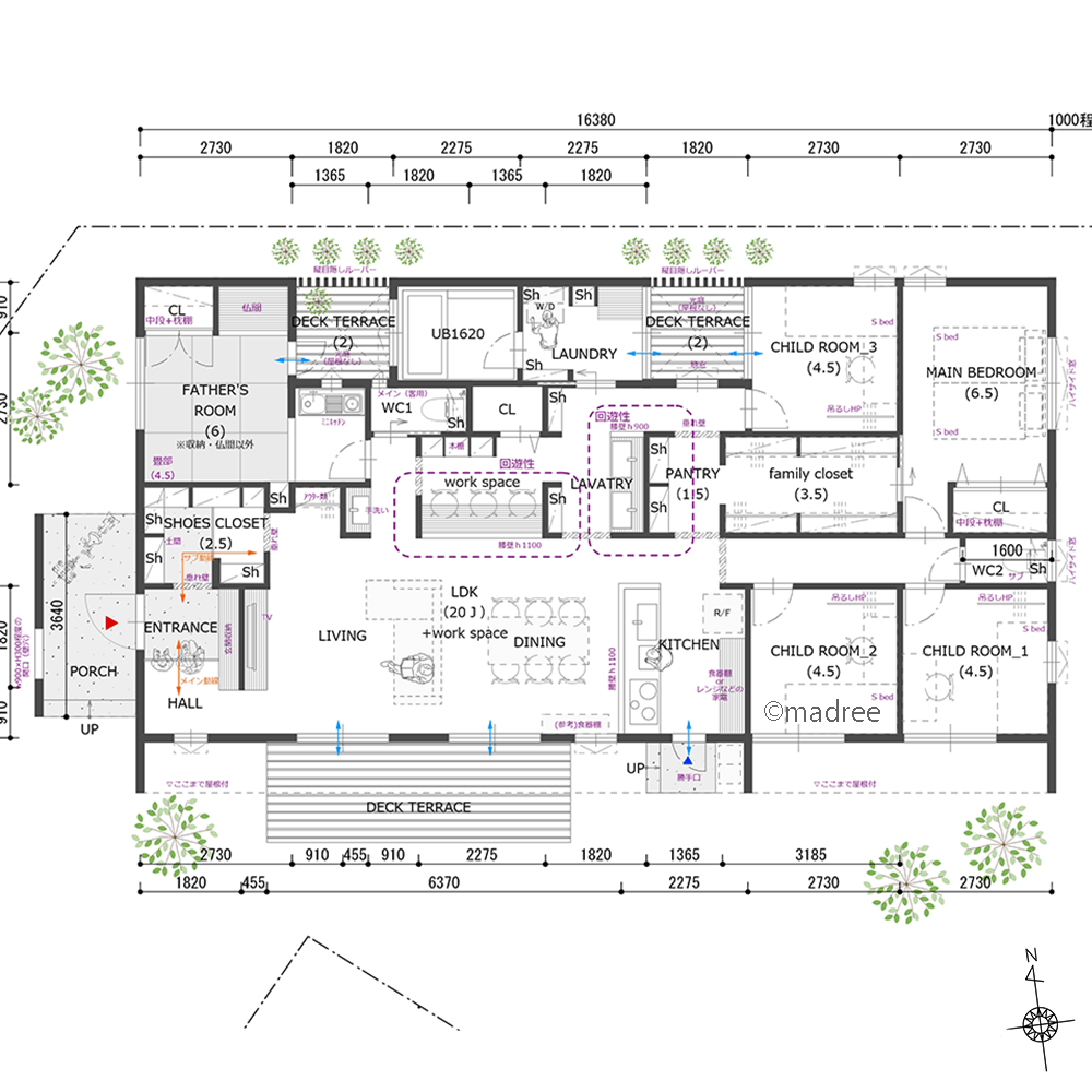
水廻りとファミクロをぐるっと回って朝支度、どの部屋にも陽が入る平屋の二世帯住宅はこのような方におすすめです
・自営業の40代夫婦、3姉妹(12歳,9歳3歳)+妻の父
・趣味:釣り、アウトドア
・朝の準備がスムーズにいくよう、洗面スペースとファミクロに回遊性が欲しい。
・家中明るい空間にしたいので、北側の部屋には明り取りの工夫をしたい。
水廻りとファミクロをぐるっと回って朝支度、どの部屋にも陽が入る平屋の二世帯住宅の間取りアイデア
全国対応になりました
| 広さ | |
|---|---|
| 階数 | |
| 土地特徴 | |
| 部屋数 | |
| 家族人数 | |
| 特徴 | |
| 担当建築家・デザイナー |
建築家・デザイナー
からのコメント
【コンセプト】
「陽の当たる暖かい自然豊かな家」
・日当たりを重視するよう南面が多くとれる東西に長いプランとし、西側玄関から奥(東)に行けば行くほどプライベート性が高い配置にしました。
・6人が皆つかず離れずの関係を保てるよう各個室の配置も考慮し、リビングを通って各個室に出入りするようになっています。
・ポーチ以外の外壁ラインをそろえ矩形(長方形)になるように計画しました。
【こだわりのポイント】
■玄関
・左手はシュークローゼット、正面は玄関収納、右手がメインの玄関とし、2way動線確保しました。
・正面からLDKか直接見えないので防犯上も配慮しました。
・玄関の上がり框は大人が2人座っても十分な幅としてあります。
■LDK
・隣接してワークスペースを設けました。来客時に物を広げていても直接丸見えということはないかと思います。お子様が3人なので、幅広(2000mm以上)に設けました。勉強のほか、パソコンコーナーや洗濯物畳みになど用途で使用でき便利かと思います。
■家事動線(掃除・選択・収納・配膳・子供の勉強の様子を見るなど)
・回遊性のあるプランとしています。片方の動線が通行止めになってももう一方から移動でき、動きによどみがなくスムーズな家事が可能です。
・洗濯脱衣室のわきの坪庭(テラス)を設け、少々の洗濯物、あまり目に触れたくないものはここで干せ、
廊下への光採りにもなっています。
・家の中心部にできるだけ水廻りを集め、家事動線を短くするように配慮しました。
■水廻り
・6人家族なので洗面ボウルは2つ配置しました。不要であれば一か所はカウンターにして化粧ができるスペースとしてもいいかもしれません。
・ユニットバス(UB)のバスタブに面してプライぺートな坪庭を設けました。屋根をなくし北側に隣地からの視線カットの縦ルーバーを設けることで、窓を開けても視線が気にならないようにしました。また、坪庭はトイレの明り採りと、お父様の寝室のプライベートテラスとしても活用しています。
・トイレはお父様の部屋とLDKに近い場所、そして個室群のある東側の2箇所に配置し、お父様の部屋寄りにあるトイレはお客様も使用できるよう近くに手洗いも設置し、奥のプライベートなゾーンにお客様が入らないような配置としています。
■子ども室
・3室のうち1室は北側になってしまったので、テラスを設け2面採光可能としました。
■ファミリークローゼット
・個室群の中心に設けました。女性4人となると服好きな場合、潤沢といえるほどの広さではないため、子ども室の一部に天井から吊るすタイプのハンガーポールの設置を提案します。制服や普段着るものは自己管理もできるので良いのではないかと思います。
39坪 5LDK関連の間取り
マドリー開発の『住宅営業支援ツール』
madreeデータバンク
マドリーの人気間取り4,800プランを接客・提案に活用できる営業支援ツール
- 競合他社と差がつく、スピード提案
- トレンド間取りで、集客・受注数UP
- 建築家のアイデアを参考に、質の高い提案ができる









