[36坪 2LDK] 家事動線をキッチン中心にまとめた、子の成長と共にフレキシブルに対応できる家の間取り
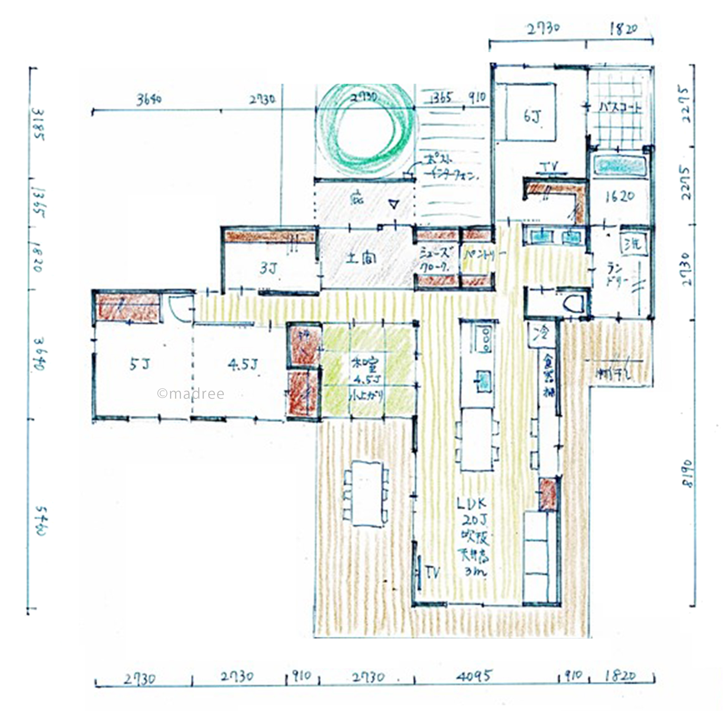
全国の建築家から間取りが集まるmadree(マドリー)で集まった36坪、2LDKの間取りです。外とつながるLDKやアウトドアリビングが特徴の注文住宅の間取りです。
家事動線をキッチン中心にまとめた、子の成長と共にフレキシブルに対応できる家はこのような方におすすめです
・40代夫と20代妻、子ども3人(長女3,次女2,長男0)/あと1人子ども希望
・趣味:ドライブ、旅行
・親子の時間を共有したいので、キッチンからワンフロアを見渡せるようにしたい。
・開放感のある空間が好きなので、壁を少なくオープンな暮らしを希望。
家事動線をキッチン中心にまとめた、子の成長と共にフレキシブルに対応できる家の間取りアイデア
全国対応になりました
| 広さ | |
|---|---|
| 階数 | |
| 土地特徴 | |
| 部屋数 | |
| 家族人数 | |
| 特徴 | |
| 担当建築家・デザイナー |
建築家・デザイナー
からのコメント
【こだわりのポイント】
■1階
極力壁を無くし、開放的な空間になるように、真ん中の食器棚で便所とダイニングキッチンとを区切ってます。食器棚の横には、ワークカウンターを配置し、視線が抜けて広がりが感じられる様に工夫してあります。
■2階
主寝室と子ども部屋の2室のみので、子ども部屋を約20帖と大きな部屋にする事で、時間と共にさまざまに変化する生活スタイルに対応できるようにしました。
36坪 2LDK関連の間取り
マドリー開発の『住宅営業支援ツール』
madreeデータバンク
マドリーの人気間取り4,800プランを接客・提案に活用できる営業支援ツール
- 競合他社と差がつく、スピード提案
- トレンド間取りで、集客・受注数UP
- 建築家のアイデアを参考に、質の高い提案ができる









