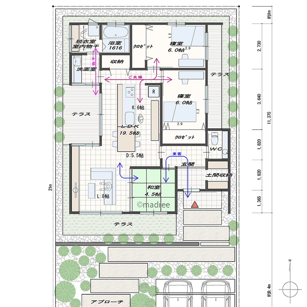
[27坪 3LDK] お互いのスタイルを大切にした夫婦2人の暮らし、バリアフリーを意識した廊下のない平屋の間取り
全国の建築家から間取りが集まるmadree(マドリー)で集まった27坪、3LDKの間取りです。外とつながるLDKやリビング中心の動線が特徴の注文住宅の間取りです。
お互いのスタイルを大切にした夫婦2人の暮らし、バリアフリーを意識した廊下のない平屋はこのような方におすすめです
・40代共働き夫婦
・趣味:読書
・各々のプライバシーも大事にしたいので、書斎兼寝室は別々に設けたい。
・将来バリアフリー化を見据えて、ゆったりした回遊性ある生活動線にしたい。
お互いのスタイルを大切にした夫婦2人の暮らし、バリアフリーを意識した廊下のない平屋の間取りアイデア
全国対応になりました
| 広さ | |
|---|---|
| 階数 | |
| 土地特徴 | |
| 部屋数 | |
| 家族人数 | |
| 特徴 | |
| 担当建築家・デザイナー | 
建築家・デザイナー
からのコメント
                【こだわりのポイント】
・両寝室は平等に、東面の朝日を確保しています。
・室内物干は二面に窓ができるような配置とし、風通しよく乾きやすいように考えています。
・西側のテラスは物干にも利用できるものとしています。
・バリアフリー仕様に変更易くするため、廊下の無い計画としております。(必要になってから廊下巾を変えるわけにもいかず、最初から廊下巾が広いと、無駄に感じられ面積も盗られてしまうため)
27坪 3LDK関連の間取り
マドリー開発の『住宅営業支援ツール』
 
          madreeデータバンク
            
マドリーの人気間取り4,800プランを接客・提案に活用できる営業支援ツール
- 競合他社と差がつく、スピード提案
- トレンド間取りで、集客・受注数UP
- 建築家のアイデアを参考に、質の高い提案ができる

![[27坪 3LDK] お互いのスタイルを大切にした夫婦2人の暮らし、バリアフリーを意識した廊下のない平屋の間取り図 1階の画像](https://madree-production.s3.ap-northeast-1.amazonaws.com/uploads/images/3cf23995fd7c9309bd77010283107a9e.png) 
                                                      ![[27坪 3LDK] お互いのスタイルを大切にした夫婦2人の暮らし、バリアフリーを意識した廊下のない平屋の間取り図](https://madree-production.s3.ap-northeast-1.amazonaws.com/uploads/images/madree_blurred_image.png) 
                                                  








 
          