[46坪 4LDK] 全力で遊んだ後は浴室へ直行、裏の生活動線でスッキリ見せる家の間取り
全国の建築家から間取りが集まるmadree(マドリー)で集まった46坪、4LDKの間取りです。外とつながるLDKやアウトドアリビングが特徴の注文住宅の間取りです。
全力で遊んだ後は浴室へ直行、裏の生活動線でスッキリ見せる家はこのような方におすすめです
・30代共働き夫婦、子ども2人(息子4歳、娘1歳)+犬
・趣味:サーフィン、ゴルフ、スノボ
・サーフィンや犬の散歩の後、直接お風呂場へ行けるようにしたい。
・夫婦共に衣装持ちなので、各々管理しやすいようWICは別々に設けたい。
全力で遊んだ後は浴室へ直行、裏の生活動線でスッキリ見せる家の間取りアイデア
全国対応になりました
| 広さ | |
|---|---|
| 階数 | |
| 土地特徴 | |
| 部屋数 | |
| 家族人数 | |
| 特徴 | |
| 担当建築家・デザイナー |
建築家・デザイナー
からのコメント
【全体のコンセプト】
「南向きの間口の広さを最大限に生かして広いデッキとベランダのある家」
【こだわりのポイント】
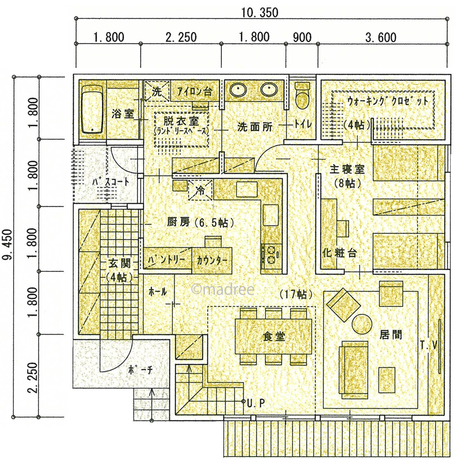
■1階
・リビングと客間を南側デッキに向かって中央に配置し、デッキを一体的に利用して子どもや犬を遊ばせたり、BBQなど楽しむ想定です。
・広い浴室は(ユニットバスではなく)南デッキ側に出入りできるようにし、サーフィンや子どもの外遊び帰り、犬がデッキから入れるようにしています。又逆に、脱衣室で洗濯後に浴室を通過してデッキに外干し(屋根あり)することもできます。
・キッチンはカウンターの高さによって来客に丸見えにならないようにしつつ、LDKは一体的にキッチンからデッキまで見渡せます。冷蔵庫とパントリーは少しへこんだ位置に設け、リビングからは見えづらいよう配慮しました。
・脱衣や洗面から、キッチンパントリーを通り、ファミクロ、土間収納への動線は、家事と来客時の裏動線に配慮しました。
■2階
・子ども達の個室と納戸、洗面台と便所があります。
・主寝室は夫婦それぞれのWICを設け、ベッドの他に書斎スペースを確保しています。
・広いベランダテラスでは、布団等の外干しの他、広いスペースを利用して子どものプールやテーブルを出して人目を気にせず寛いだりできます。
46坪 4LDK関連の間取り
マドリー開発の『住宅営業支援ツール』
madreeデータバンク
マドリーの人気間取り4,800プランを接客・提案に活用できる営業支援ツール
- 競合他社と差がつく、スピード提案
- トレンド間取りで、集客・受注数UP
- 建築家のアイデアを参考に、質の高い提案ができる









