[46坪 5LDK] 10人が集う賑やかな食事時間、兄弟家族がシェアハウスのように暮らす家の間取り
全国の建築家から間取りが集まるmadree(マドリー)で集まった46坪、5LDKの間取りです。浴室1坪や2階リビングが特徴の注文住宅の間取りです。
10人が集う賑やかな食事時間、兄弟家族がシェアハウスのように暮らす家はこのような方におすすめです
・兄世帯/30代共働き夫婦、娘5歳、息子2歳
・弟世帯/30代会社員、妻:専業主婦、娘2人(12歳、3歳)、息子2人(10歳、0歳)
・趣味:カフェ、映画鑑賞、外遊び
・1階にカフェができるような10帖程の店舗スペースを造りたい。
・ランドリースペースとファミリークロークを動線上に配置し、脱衣所からスムーズに家事をこなしたい。
全国対応になりました
| 広さ | |
|---|---|
| 土地特徴 | |
| 特徴 | |
| 部屋数 | |
| 家族人数 | |
| 階数 | |
| 担当建築家・デザイナー |
建築家・デザイナー
からのコメント
【全体のコンセプト】
楽しく集まって、ゆっくり休める家
■全体配置
・建物を中央に配置し、東側の採光と眺望を確保しました。
・通行人や車から目に留まるように、大通り添いにカフェスペースを計画しました。
・車2台分を駐車するビルトインガレージを計画しました。
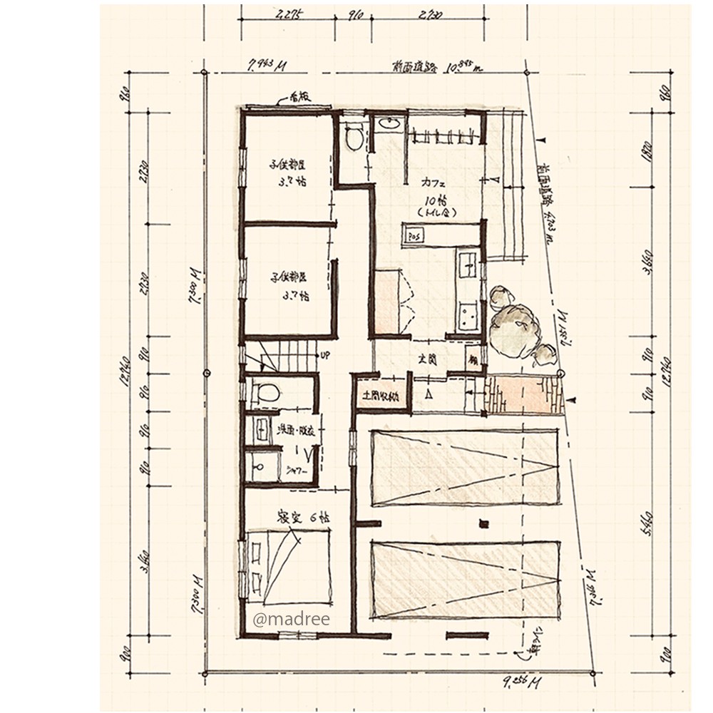
■1階
・カフェスペースと、弟世帯の部屋を配置しました。
・玄関から、カフェと居住空間への出入りができるようにしました。
・子供部屋は、壁を撤去すると広く使えます。
■2階
・LDKと水廻り、兄世帯の部屋を配置しました。
・水廻りを北側に集め、家事を楽にできる動線を計画しました。
・LDKの北東側に開口窓と吹抜けを設け、空間に広がりを感じられるようにしました。
・大きなテーブル・長いカウンター・畳スペースなど、大家族が気分良く食事ができるような配置としました。
■ロフト
・ワークスペースと収納を配置しました。
・ワークスペース横にカウンターを設け、リビングの気配を感じながら、仕事や勉強ができるようにしました。
今回のプランが、住宅設計の一助となれば幸いです。
46坪 5LDK関連の間取り
マドリー開発の『住宅営業支援ツール』
madreeデータバンク
マドリーの人気間取り4,800プランを接客・提案に活用できる営業支援ツール
- 競合他社と差がつく、スピード提案
- トレンド間取りで、集客・受注数UP
- 建築家のアイデアを参考に、質の高い提案ができる









