[31坪 3LDK] 回遊動線で介護しやすく、可変性重視の三世代集える平屋の間取り
全国の建築家から間取りが集まるmadree(マドリー)で集まった31坪、3LDKの間取りです。外とつながるLDKや広く感じるLDKが特徴の注文住宅の間取りです。
回遊動線で介護しやすく、可変性重視の三世代集える平屋はこのような方におすすめです
・会社員50代夫婦。妻の両親も同居予定
・趣味:靴、服が好き。WICは広め希望
・介護も見据え、両親の部屋は水回りと他の部屋からのアクセス良くしたい
・雪の多い地域なので、雪かきの負担を減らしたい
全国対応になりました
| 広さ | |
|---|---|
| 土地特徴 | |
| 階数 | |
| 部屋数 | |
| 家族人数 | |
| 特徴 | |
| 担当建築家・デザイナー |
建築家・デザイナー
からのコメント
【全体のコンセプト】
・生活動線を考慮した可変性のある間取り
【こだわったポイント】
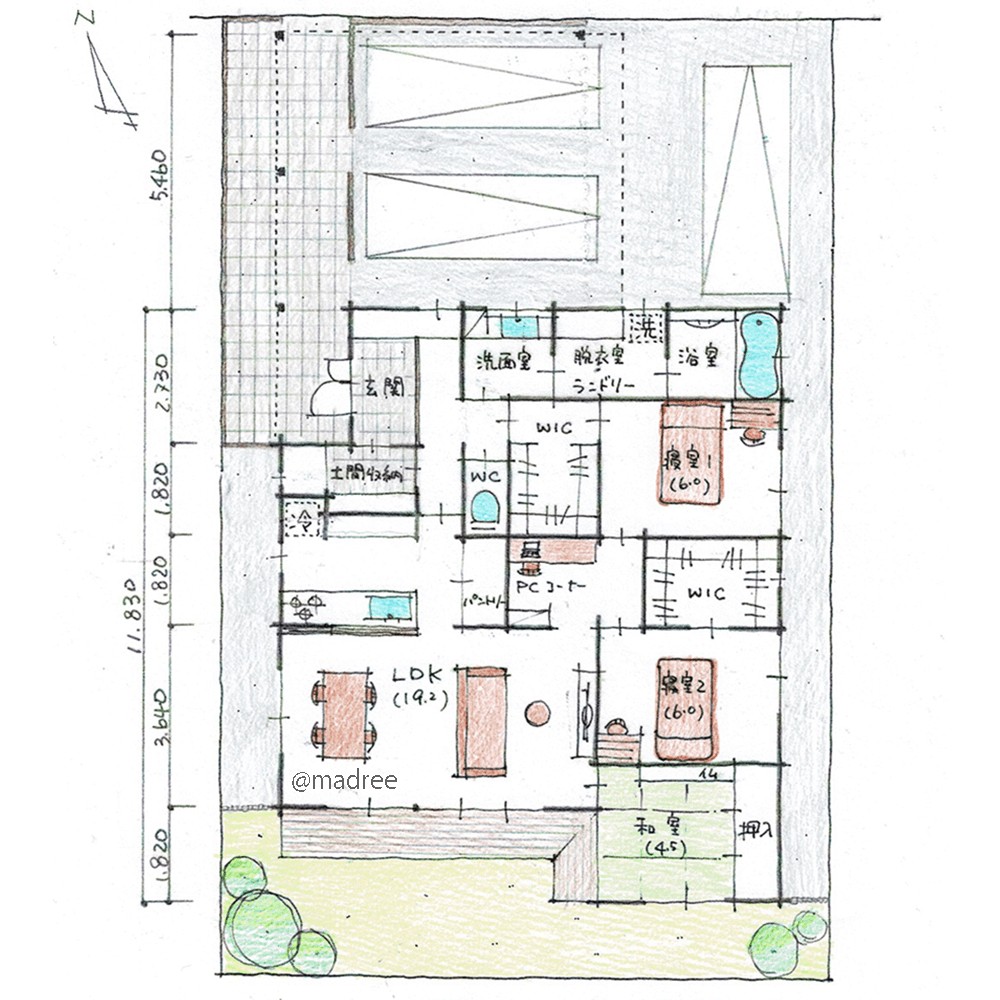
・駐車スペースは歩道の切り下げ位置をそのまま利用する前提で検討しました。人と車の動線を分けて、車は北東、人は北西よりアプローチするようにしました。
・玄関は土間部分を広くとり、シューズクロークのほか、野菜や外で使うものなどを収納できる土間収納を設けました。
・玄関からキッチン(パントリー)を近接させ、トイレ、洗面などの水回りもまとめて配置しました。
・LDKは約19帖として、それとは別にPCコーナーを3帖設けました。
・寝室はそれぞれ6帖プラスWIC3帖とりました。寝室1は将来、両親の寝室とした場合に水回りへ行きやすくするために、WICを通って近道できるようにしました。寝室2をご夫婦で使用する場合には、PCコーナーをWICとして収納量をUPさせることも可能です。
31坪 3LDK関連の間取り
マドリー開発の『住宅営業支援ツール』
madreeデータバンク
マドリーの人気間取り4,800プランを接客・提案に活用できる営業支援ツール
- 競合他社と差がつく、スピード提案
- トレンド間取りで、集客・受注数UP
- 建築家のアイデアを参考に、質の高い提案ができる









