[46坪 3LDK] 2階で家事完結、治療院兼自宅の間取り
全国の建築家から間取りが集まるmadree(マドリー)で集まった46坪、3LDKの間取りです。2階リビングやリビング一体の畳が特徴の注文住宅の間取りです。
2階で家事完結、治療院兼自宅はこのような方におすすめです
・自営業なので不定休な夫、パート勤務の妻の40代夫婦、子ども男女2人
・玄関別の治療院兼自宅
・収納充実、納戸が欲しい
・家事動線を効率よく
2階で家事完結、治療院兼自宅の間取りアイデア
全国対応になりました
| 広さ | |
|---|---|
| 階数 | |
| 部屋数 | |
| 家族人数 | |
| 土地特徴 | |
| 特徴 | |
| 担当建築家・デザイナー |
建築家・デザイナー
からのコメント
●全体コンセプト
「家族が集まるLDKのある家と鍼灸院」
鍼灸院と居住スペース共に使い勝手を考え LDKで家族のコミュニケーションを深められる家。
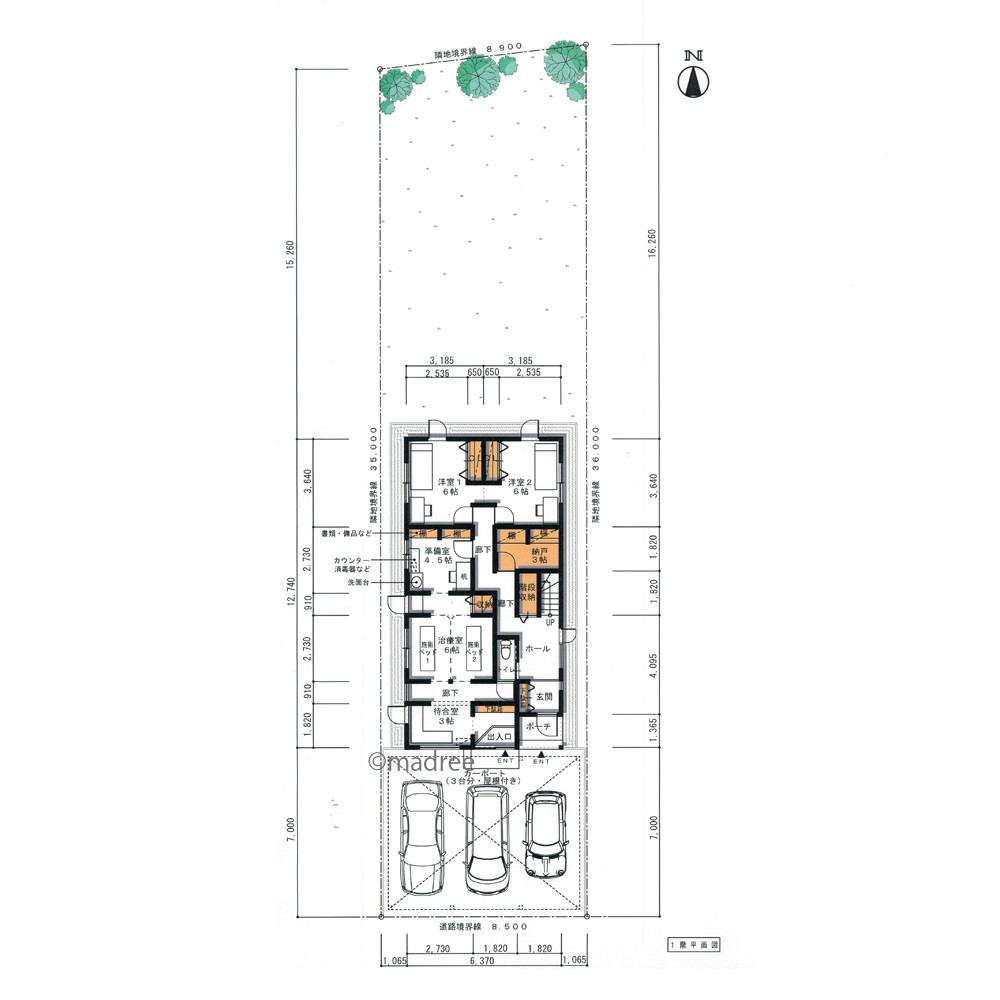
●1階プラン説明
1階のプラン構成は、鍼灸院を中心に考えました。 待合室、準備室それぞれから治療室に入る際に ワンクッションおけるスペースを設けて入るようにし、 治療室自体も単にカーテンで仕切るのではなく、壁で囲み 出入口を作ってそれぞれのベッドを仕切るところだけを カーテンを利用しています。 他に子供室と納戸です。最初は洗面脱衣室とUBを 1階にしようかと考えていましたが、洗濯干しとキッチンの 家事動線を優先し、子供室を1階に設けました。
●2階プラン説明
キッチンからUTへの移動距離を短くし家事動線を考え、 更にUT内には要望にありました室内物干しスペースを 作りました。UTとUBを2階に設けたことで、入浴後は そのままリビングやダイニングで寛ぐこともできます。 バルコニーへも同一階ですので、階段の登り降り無く バルコニーでも洗濯干しができると思います。 主寝室は小さくても良いとのことでしたので、このようにし その分ウォークインクロゼットを設けて収納力を持たせました。 和室は4.5帖とし仏間と押入れを設けてリビングに隣接させ 小上がりとして段差のある和室としました。
46坪 3LDK関連の間取り
マドリー開発の『住宅営業支援ツール』
madreeデータバンク
マドリーの人気間取り4,800プランを接客・提案に活用できる営業支援ツール
- 競合他社と差がつく、スピード提案
- トレンド間取りで、集客・受注数UP
- 建築家のアイデアを参考に、質の高い提案ができる









