[27坪〜30坪 4LDK] 変形地をうまく活用、富士山の景色楽しむ平屋の間取り
全国の建築家から間取りが集まるmadree(マドリー)で集まった27坪〜30坪、4LDKの間取りです。外とつながるLDKやリビング中心の動線が特徴の注文住宅の間取りです。
変形地をうまく活用、富士山の景色楽しむ平屋はこのような方におすすめです
・幼児2人子育て奮闘中、30代夫婦
・趣味:夫は釣り、妻は読書・手芸、子ども達は外遊び・工作
・普段使わない来客部屋は、LDKとつなげて広々としたい
・メンテナンスが楽で飽きのこない家が良い
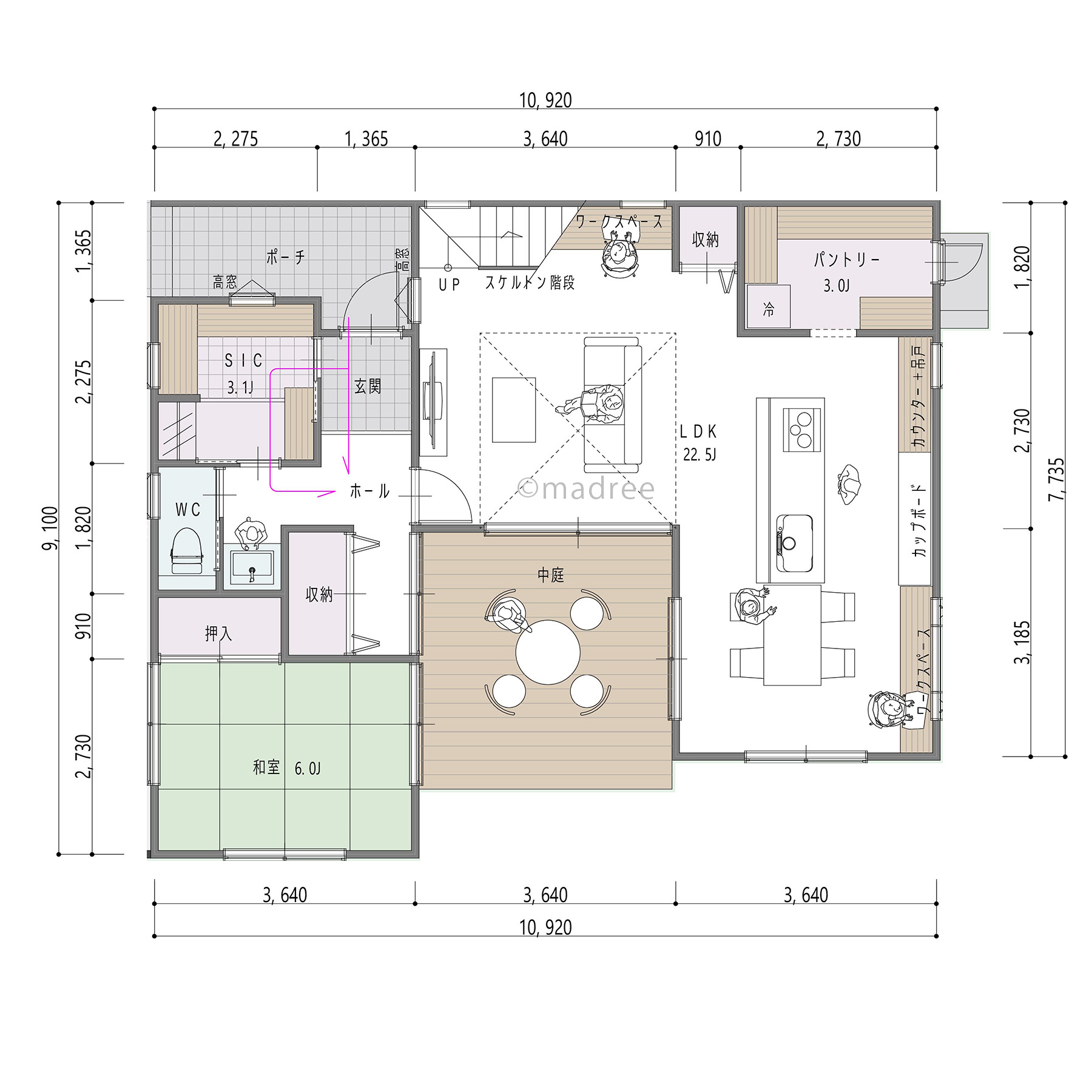
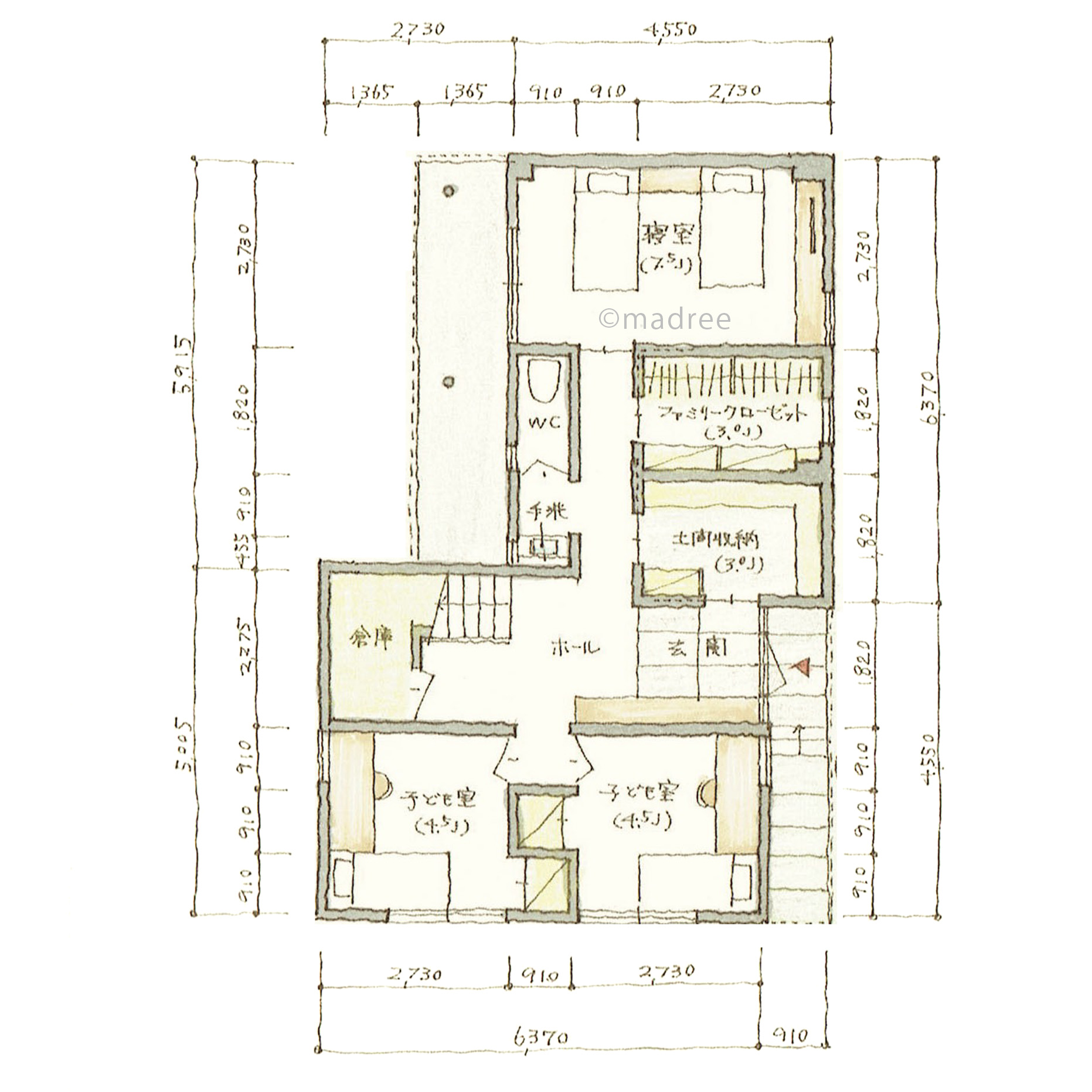
変形地をうまく活用、富士山の景色楽しむ平屋の間取りアイデア
全国対応になりました
| 広さ | |
|---|---|
| 階数 | |
| 部屋数 | |
| 家族人数 | |
| 土地特徴 | |
| 特徴 | |
| 担当建築家・デザイナー |
建築家・デザイナー
からのコメント
【四季を感じる家】
幼い頃に行った山、それは低い殺風景な山だったけれども、とても心に響くものでした。 今回のプランでは美しく移り変わりを見せる富士山を、家族でみながら過ごすのは大変贅沢ではないでしょうか。そこで富士山と大きな木をどのように取り入れるかを考えました。自然と言えば毎年やってくる花粉とPM2.5、今症状がないしても家族を守る為には対策が必要です。 元気な家族がさらに健康に暮らせ、素晴らしい四季を感じることのできる間取りを考えてみました。
【こだわった点】
①富士山をできるだけ各部屋で眺めることができ、庭の大きな木に見守られたプランにしました。
②水廻りはアレルギーには欠かせない部屋干し可能な間取にキッチンとの2WAYも取り入れ、家事動線を抜群にしました。
③リビングには南の強すぎる光を少し遮り、落ち着いたリビング空間をご提案致します。
④子供部屋には奥行900のクロゼットをつくりました。各部屋の布団も楽に収納ができます。
27坪〜30坪 4LDK関連の間取り
マドリー開発の『住宅営業支援ツール』
madreeデータバンク
マドリーの人気間取り4,800プランを接客・提案に活用できる営業支援ツール
- 競合他社と差がつく、スピード提案
- トレンド間取りで、集客・受注数UP
- 建築家のアイデアを参考に、質の高い提案ができる









