[36坪 2LDK] おひさまの光をたっぷり取り込み、視線が外に抜ける陽だまりリビングの家の間取り
全国の建築家から間取りが集まるmadree(マドリー)で集まった36坪、2LDKの間取りです。オープンキッチンやアイランドキッチンが特徴の注文住宅の間取りです。
おひさまの光をたっぷり取り込み、視線が外に抜ける陽だまりリビングの家はこのような方におすすめです
・家族構成:30代共働き夫婦、娘0歳
・趣味:キャンプ、DIY,スノボ
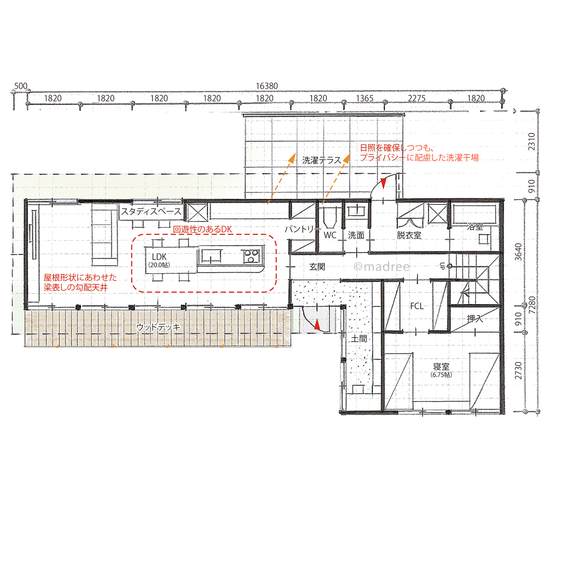
おひさまの光をたっぷり取り込み、視線が外に抜ける陽だまりリビングの家の間取りアイデア
全国対応になりました
| 階数 | |
|---|---|
| 部屋数 | |
| 家族人数 | |
| 土地特徴 | |
| 特徴 | |
| 広さ | |
| 担当建築家・デザイナー |
建築家・デザイナー
からのコメント
【こだわりのポイント】
・開放感のある南面からの採光・視線の抜けを意識した建物配置・窓計画としています。
・東西に長いLDKのある平屋棟と、南北に長いプライベート諸室の並ぶ2階棟の2棟を繋げたL型配置となっています。
・両棟共、切妻屋根を架け、屋根勾配にあわせた伸びやかな勾配天井をもつ空間をイメージしております。
36坪 2LDK関連の間取り
マドリー開発の『住宅営業支援ツール』
madreeデータバンク
マドリーの人気間取り4,800プランを接客・提案に活用できる営業支援ツール
- 競合他社と差がつく、スピード提案
- トレンド間取りで、集客・受注数UP
- 建築家のアイデアを参考に、質の高い提案ができる









