[36坪 4LDK] 暮らしやすさが詰まったコンパクトで機能性の高いおうちアウトドアも楽しめる家の間取り
全国の建築家から間取りが集まるmadree(マドリー)で集まった36坪、4LDKの間取りです。オープンキッチンやペニンシュラキッチンが特徴の注文住宅の間取りです。
暮らしやすさが詰まったコンパクトで機能性の高いおうちアウトドアも楽しめる家はこのような方におすすめです
家族構成:夫30代、妻20代、子ども2人の5人暮らし。子どもは全員女の子。
趣味:外でテントを張って、簡単な料理をしたりデイキャンプをするのが好きで将来的にはキャンプもしてみたいと思っています。
暮らしやすさが詰まったコンパクトで機能性の高いおうちアウトドアも楽しめる家の間取りアイデア
全国対応になりました
| 階数 | |
|---|---|
| 部屋数 | |
| 家族人数 | |
| 土地特徴 | |
| 特徴 | |
| 広さ | |
| 担当建築家・デザイナー |
建築家・デザイナー
からのコメント
【こだわりのポイント】
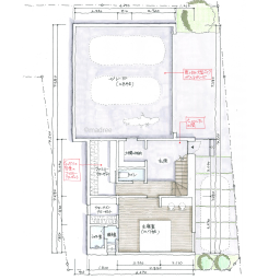
■1階
・1階は家族や来客者が交流できるようオープン空間としています。
・和室は40㎝床を上げると使いやすいです。
・階段の上り下りが難しくなった際、和室部分を寝室にし、1階のみでも生活ができます。
・キッチンを中心とし、お母様が家事をしながら小さなお子様に目が届くように、また来客者にも対応しやすいよう動線を工夫しています。
・洗濯物は南側の庭に、布団は2階のインナーバルコニーに干すことができます。
・掃き出し窓のある部分は、庇、バルコニーや屋根の軒下になるよう配慮しています。
・南側の庭にはスロップシンクを設け、洗車やビニールプール、家庭菜園などができます。
・BBQの洗い物にも役立ちます。
・メイン入り口は東側とし、西側には裏動線を設けています。
■2階
・2階は各室のプライバシーに配慮した空間としています。
・希望であれば屋根裏部分にロフトや天井収納を設けることも可能です。
・切妻の妻部分が3方向道路側にそれぞれあり、上下階で窓位置を揃え、外観にも配慮しています。
36坪 4LDK関連の間取り
マドリー開発の『住宅営業支援ツール』
madreeデータバンク
マドリーの人気間取り4,800プランを接客・提案に活用できる営業支援ツール
- 競合他社と差がつく、スピード提案
- トレンド間取りで、集客・受注数UP
- 建築家のアイデアを参考に、質の高い提案ができる









