[45坪~49坪 4LDK] 夏涼しく冬暖かいゾーニングで2.5世帯の家族が心地よく住める間取りの間取り
全国の建築家から間取りが集まるmadree(マドリー)で集まった45坪~49坪、4LDKの間取りです。オープンキッチンやペニンシュラキッチンが特徴の注文住宅の間取りです。
夏涼しく冬暖かいゾーニングで2.5世帯の家族が心地よく住める間取りはこのような方におすすめです
夫:40代会社員 妻:30代会社員 子1人(未就学児) 妻の母: 60代無職 妻の姉:40代会社員
※将来的にもう一人ほしい
趣味:夫はテニス(休日はほぼ毎日) 妻の母は家庭菜園
夏涼しく冬暖かいゾーニングで2.5世帯の家族が心地よく住める間取りの間取りアイデア
全国対応になりました
| 階数 | |
|---|---|
| 部屋数 | |
| 家族人数 | |
| 土地特徴 | |
| 特徴 | |
| 広さ | |
| 担当建築家・デザイナー |
建築家・デザイナー
からのコメント
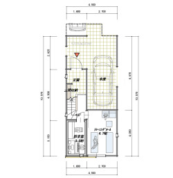
【全体のコンセプト】
・広い敷地を有効活用できる家
・夏の日差しを遮り、冬温かいゾーニングしました。
・東側に電車が走っている事から、東側を物干しスペースとして活用し、基本的に閉じた空間としています。
・プライバシーと騒音問題に対処できるように計画しました。
【こだわりのポイント】
■1階
・妻の母世帯を独立した動線計画とし、プライバシーに配慮しました。
・キッチンの引き戸を閉めることによって来客時にキッチンを隠すことができます。
・脱衣室、リビング、キッチンからそれぞれ勝手口があるので、洗濯物を効率よく外に出すことができます。
■2階
・子供と一緒に過ごせるよう大きめの寝室としました。
・リビングに入る前に階段室を設けプライバシーに配慮しました。子世帯の玄関として機能します。
・将来収納を設け子供室を分割できます。
45坪~49坪 4LDK関連の間取り
マドリー開発の『住宅営業支援ツール』
madreeデータバンク
マドリーの人気間取り4,800プランを接客・提案に活用できる営業支援ツール
- 競合他社と差がつく、スピード提案
- トレンド間取りで、集客・受注数UP
- 建築家のアイデアを参考に、質の高い提案ができる









