[39坪~42坪 3LDK] 広めの土間収納で片付け楽々!キッチンからの家事裏動線で生活感を見せない間取りの間取り
全国の建築家から間取りが集まるmadree(マドリー)で集まった39坪~42坪、3LDKの間取りです。オープンキッチンやⅡ型キッチンが特徴の注文住宅の間取りです。
広めの土間収納で片付け楽々!キッチンからの家事裏動線で生活感を見せない間取りはこのような方におすすめです
30代夫婦(奥さんは専業主婦)、子供は未就学児2人(もう1人予定)
趣味:夫はサッカー、奥さんはミシン。家族みんなでキャンプを始めたいと考えています。(道具から揃える段階)
お互いの実家も近いので、週末は家族皆で集まってご飯を食べたりします。
広めの土間収納で片付け楽々!キッチンからの家事裏動線で生活感を見せない間取りの間取りアイデア
全国対応になりました
| 階数 | |
|---|---|
| 部屋数 | |
| 家族人数 | |
| 土地特徴 | |
| 特徴 | |
| 広さ | |
| 担当建築家・デザイナー |
建築家・デザイナー
からのコメント
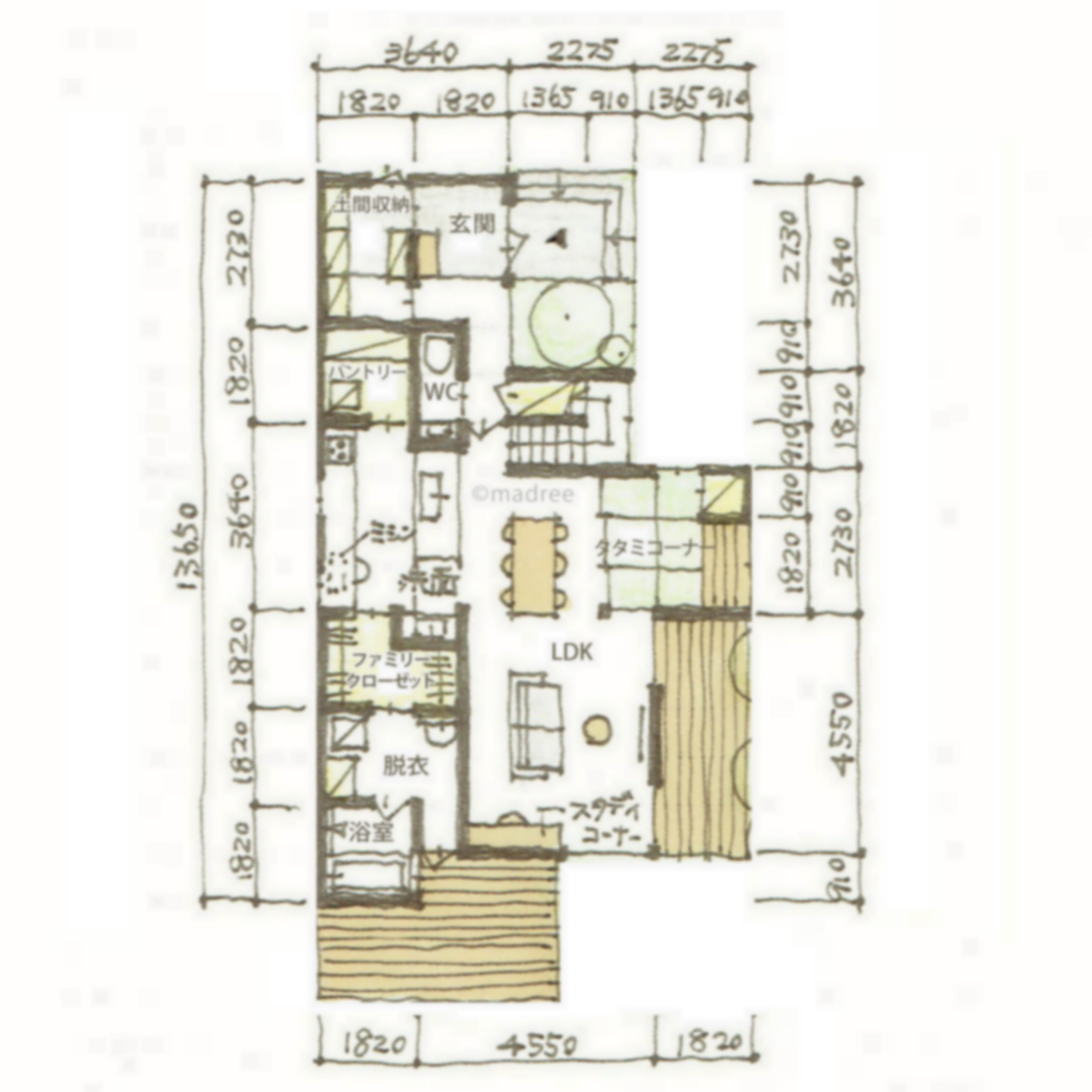
【全体のコンセプト】
アプローチ周りと敷地東側、南側に植栽を設けて緑豊かなすまいをめざしました。
【こだわりのポイント】
■1階
・駐車場
敷地北側に車路と並行で1台、直行で1台、合計2台分の駐車場を確保しました。
・玄関
土間収納を広くとって靴やコート、趣味のものを収納できるようにしました。
・LDK
LDKはワンルームの広々とした空間としています。
リビングの1角に畳の小上がりを設けて、前庭を眺める居心地のよいコーナーとしています。
リビングの片隅にデスクカウンターを設けてスタディコーナーとしました。
キッチンはⅡの字型の対面式としています。
キッチン奥にはパントリーを設けています。
キッチン裏にミシン置場を設けて家事コーナーとしています。
・水廻り
洗面と脱衣を分けてプライバシーに配慮しました。
ファミリークローゼットと脱衣室を隣接しています。
脱衣室は洗濯機置場、天井物干し金物、乾燥換気扇を設け、部屋干しにも対応できるランドリーとしての機能ももたせています。
物干しテラスに直接アクセスできます。
■2階
・主寝室
主寝室にはセミダブル+シングルのベッドをレイアウトしています。
ウォークインクローゼットを隣接しています。
あえて廊下に面して家族のシーズンオフのものを収納できるようにしました。
・子供室
クローゼット、デスク、ベッド、を無駄なくレイアウトしています。
1室を個室、将来2室に間仕切りできるようレイアウトしました。
39坪~42坪 3LDK関連の間取り
マドリー開発の『住宅営業支援ツール』
madreeデータバンク
マドリーの人気間取り4,800プランを接客・提案に活用できる営業支援ツール
- 競合他社と差がつく、スピード提案
- トレンド間取りで、集客・受注数UP
- 建築家のアイデアを参考に、質の高い提案ができる









