[39坪~42坪 3LDK] 週末キャンプを楽しめる庭や趣味や暮らしを充実させる空間が満載の家の間取り
全国の建築家から間取りが集まるmadree(マドリー)で集まった39坪~42坪、3LDKの間取りです。オープンキッチンやアイランドキッチンが特徴の注文住宅の間取りです。
週末キャンプを楽しめる庭や趣味や暮らしを充実させる空間が満載の家はこのような方におすすめです
夫:20代,妻30代、子供1人(3人予定)
趣味:夫は山登り,アウトドアが趣味。自宅でもキャンプやバーベキューをしたい。また,お酒を飲むのも好きでウイスキーを集めている。
妻は料理やお菓子づくりが好き。夫婦ともに休日には友人を招いてワイワイするのが好き。
週末キャンプを楽しめる庭や趣味や暮らしを充実させる空間が満載の家の間取りアイデア
全国対応になりました
| 階数 | |
|---|---|
| 部屋数 | |
| 家族人数 | |
| 土地特徴 | |
| 特徴 | |
| 広さ | |
| 担当建築家・デザイナー |
建築家・デザイナー
からのコメント
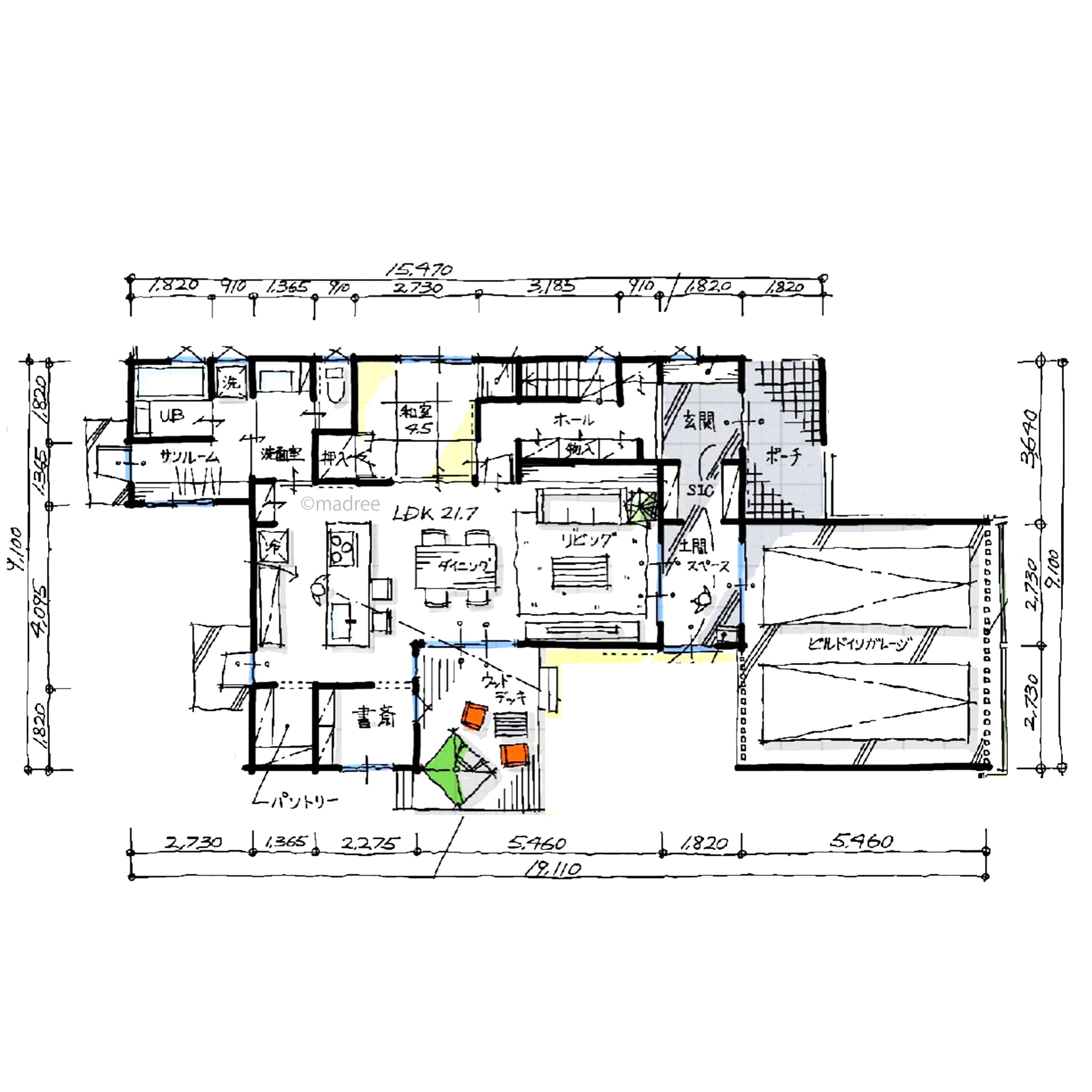
【全体のコンセプト】
ご主人様のご趣味、奥様の家事や子育てを最大限に楽しめるよう、家事動線や空間の繋がりを意識したプランニングとなっております。
【こだわりのポイント】
■1階
・『大きな土間スペース』
玄関、リビング、ガレージ、庭など、あらゆる空間へとアクセス可能。
リビングと土間を開放すれば、雨の日でもアウトドアを楽しめる空間に。
車の整備やアウトドア用品のお手入れなど多目的に使える空間を目指しました。
・『家事動線や子育てを意識したLDK空間』
キッチンの北側には水回り、南側にはパントリーと日々の生活をスムーズに行えるよう家事動線を意識したプランニングを行いました。
リビングやダイニング、庭で遊ぶ子ども達を料理をしながらでも見守れるキッチン。
リビング上部に設けた吹抜けから自然光を取り込み、LDKを明るく開放的な空間に。
・『週末キャンプを楽しめるウッドデッキ&庭』
建物をコの字型とすることで、プライベート感のある大きな庭を実現できました。
LDKや土間スペース、ガレージからもアクセスが出来る、家の中心となるような楽しい空間を目指しました。
晴れた日には外でランチ、テントを広げればキャンプも楽しめるような素敵な空間です。
・『客間としても使える続き間和室』
ダイニング横の和室は2枚引き込み戸とし、開放すれば続き間和室として普段使いが出来ます。
来客時などは、LDKを介さずにアクセス出来るよう、廊下からもアクセス出来る仕様としています。
・『室内干し専用のサンルーム』
脱衣室兼サンルームとし、洗濯機からそのまま室内干し出来るよう工夫しました。
真南で日当たりも良く、物干し下には大型のカウンター収納としています。
■2階
・『フレキシブルな子ども室』
日当たりの良い南側、西側向きの子ども室は、将来2部屋に分けられるようドア・クローゼット共に2箇所用意しています。
畳数も同じになるよう、丁度真ん中で間仕切り出来るような計画としました。
39坪~42坪 3LDK関連の間取り
マドリー開発の『住宅営業支援ツール』
madreeデータバンク
マドリーの人気間取り4,800プランを接客・提案に活用できる営業支援ツール
- 競合他社と差がつく、スピード提案
- トレンド間取りで、集客・受注数UP
- 建築家のアイデアを参考に、質の高い提案ができる









