[27坪 3LDK] 母子のコミュニケーションが増える、充実したLDKの平屋の間取り
全国の建築家から間取りが集まるmadree(マドリー)で集まった27坪、3LDKの間取りです。外とつながるLDKや広く感じるLDKが特徴の注文住宅の間取りです。
母子のコミュニケーションが増える、充実したLDKの平屋はこのような方におすすめです
・公務員ママと息子3歳、母子家庭
・趣味:おかし、パン作り、BBQ
・子どもと一緒にキッチンで料理したい
・見渡せるリビングにジャングルジムなど体を動かすものを置きたい
母子のコミュニケーションが増える、充実したLDKの平屋の間取りアイデア
全国対応になりました
| 広さ | |
|---|---|
| 階数 | |
| 部屋数 | |
| 家族人数 | |
| 土地特徴 | |
| 特徴 | |
| 担当建築家・デザイナー |
建築家・デザイナー
からのコメント
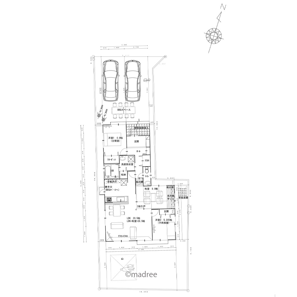
・玄関は間口を広めに取りました。寸法:2,275m
・洋室1を主寝室としております。
・洋室2は子供部屋としました。→リビングからいつでも監視できるため。
・和室は2箇所2枚引戸を提案いたします。お客様のシチュエーションに合わせてお使いいただけます。引戸を2箇所開くと、リビングがより広く感じられると思います。
・和室東側の板の間スペースは吊戸としております。 図面にはサッシを入れてますがお客様のお好みで変更できます。
27坪 3LDK関連の間取り
マドリー開発の『住宅営業支援ツール』
madreeデータバンク
マドリーの人気間取り4,800プランを接客・提案に活用できる営業支援ツール
- 競合他社と差がつく、スピード提案
- トレンド間取りで、集客・受注数UP
- 建築家のアイデアを参考に、質の高い提案ができる









