[36坪 4LDK] すべての部屋に自然光が届く、子ども部屋と小窓でつながる吹抜リビングの家の間取り
全国の建築家から間取りが集まるmadree(マドリー)で集まった36坪、4LDKの間取りです。外とつながるLDKやリビング吹抜が特徴の注文住宅の間取りです。
すべての部屋に自然光が届く、子ども部屋と小窓でつながる吹抜リビングの家はこのような方におすすめです
・30代共働き夫婦、娘9歳、息子6歳
・趣味:キャンプ、アウトドア、サッカー、ダンス
・子どもの様子を感じ取れるよう、子ども部屋には吹抜に面した小窓を設けたい。
・縦長の土地だが、すべての部屋に光がたっぷり入るようにしたい。
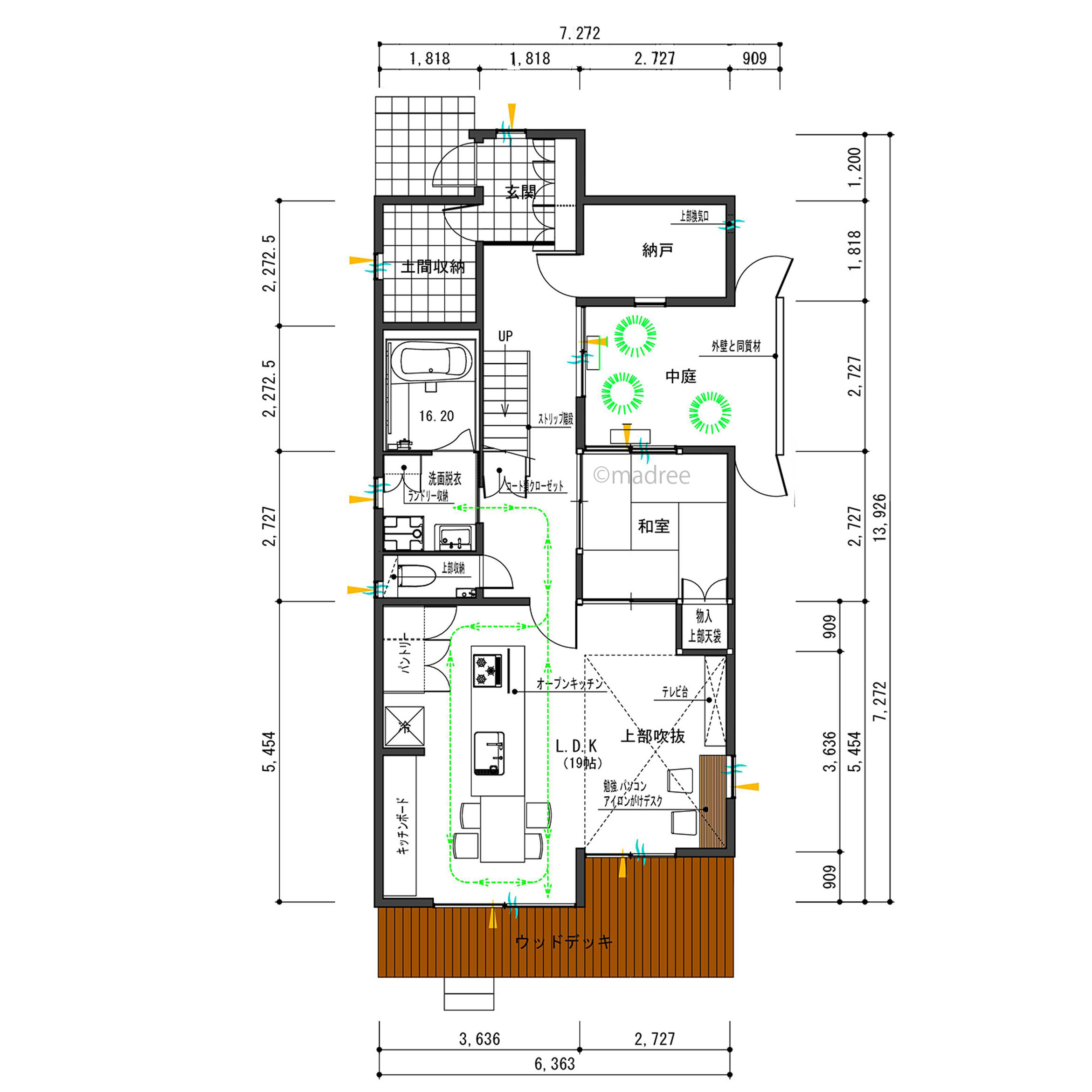
すべての部屋に自然光が届く、子ども部屋と小窓でつながる吹抜リビングの家の間取りアイデア
全国対応になりました
| 広さ | |
|---|---|
| 階数 | |
| 部屋数 | |
| 家族人数 | |
| 土地特徴 | |
| 特徴 | |
| 担当建築家・デザイナー | 
建築家・デザイナー
からのコメント
                【全体のコンセプト】
すべての部屋に、くまなく採光が取れ、通気性を良くするため、中庭のある家を計画しました。
【こだわりのポイント】
・中庭は建物の東側に位置し、リビングの南側に吹抜を設けることにより、LDK及びリビング、続きの和室、階段室等に豊富な採光が取り入れられ、和室からは中庭が眺められます。
・西側は、キッチンの背面や、水廻りの配置により、閉ざし気味にしました。 キッチンは、ダイニングテーブル続きのアイランド型とし、水廻りを近くに置くことで料理、洗濯、干し物の家事動線をスムーズにしました。
36坪 4LDK関連の間取り
マドリー開発の『住宅営業支援ツール』
          madreeデータバンク
            
マドリーの人気間取り4,800プランを接客・提案に活用できる営業支援ツール
- 競合他社と差がつく、スピード提案
 - トレンド間取りで、集客・受注数UP
 - 建築家のアイデアを参考に、質の高い提案ができる
 

                                                      
                                                  







