[39坪 4LDK] 明るく伸びやかに変形地を有効活用、家族がリビングに集まる平屋の間取り
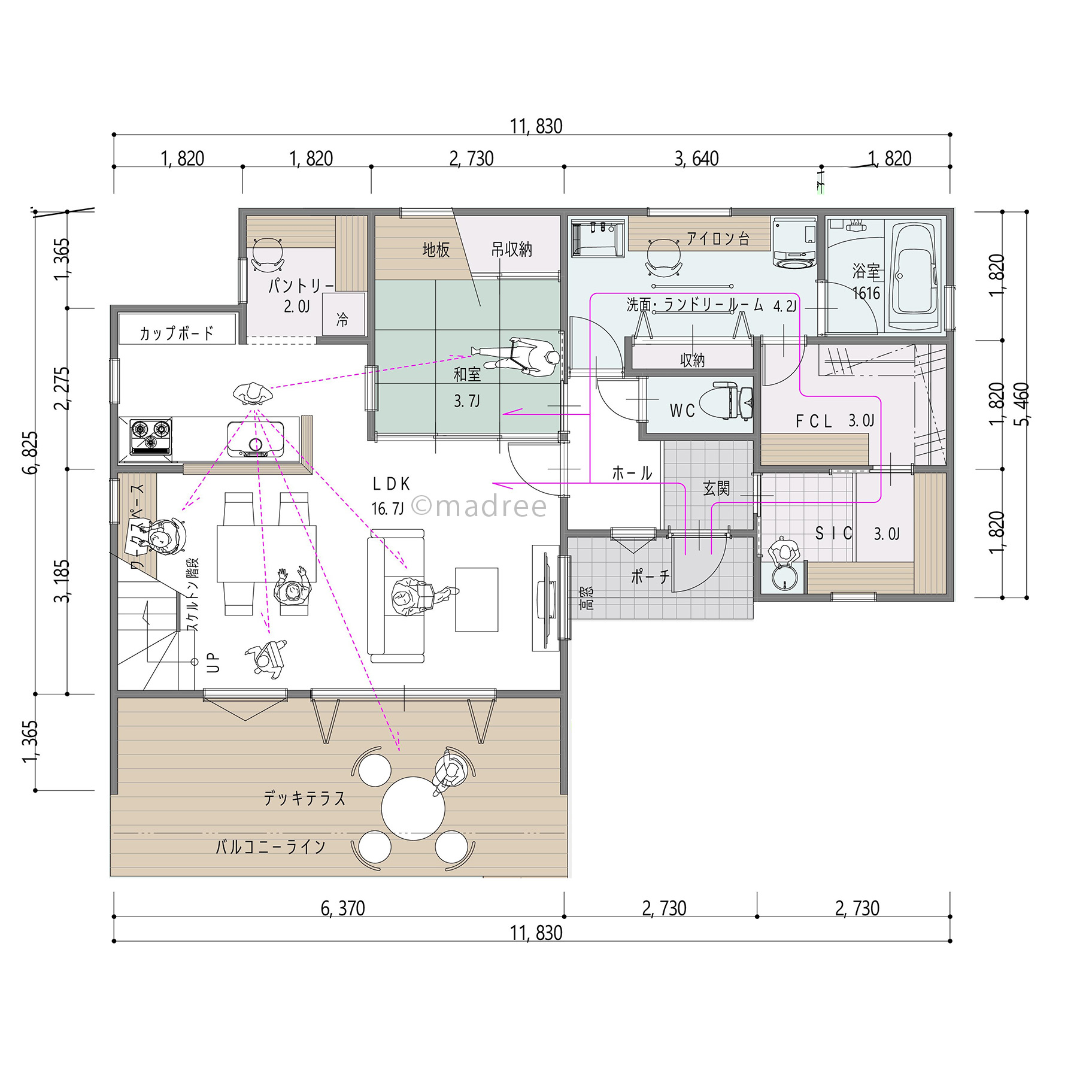
全国の建築家から間取りが集まるmadree(マドリー)で集まった39坪、4LDKの間取りです。仏間や子ども見守れるキッチンが特徴の注文住宅の間取りです。
明るく伸びやかに変形地を有効活用、家族がリビングに集まる平屋はこのような方におすすめです
・30代夫婦、子供2人(長男4歳、長女1歳)/将来的に犬を飼う予定
・趣味:釣り、読書、家庭菜園
・アレルギーがあるので、ランドリールームを充実させたい。
・子ども部屋へはリビングを介して出入りできるようにしたい。
明るく伸びやかに変形地を有効活用、家族がリビングに集まる平屋の間取りアイデア
全国対応になりました
| 広さ | |
|---|---|
| 階数 | |
| 部屋数 | |
| 家族人数 | |
| 土地特徴 | |
| 特徴 | |
| 担当建築家・デザイナー |
建築家・デザイナー
からのコメント
【全体のコンセプト】
・飽きのこないようシンプルな形状を意識しながら、LDKと子ども部屋は陽当たりの良い南側になるようプランしました。
【こだわりのポイント】
・玄関、ホールは明るくなるようにし、必ずリビングを通って各室に出入りする計画にしています。
・広いファミリークロークやランドリールームがあり使い勝手が良く、長く安心して住めるような家を目指しました。
39坪 4LDK関連の間取り
マドリー開発の『住宅営業支援ツール』
madreeデータバンク
マドリーの人気間取り4,800プランを接客・提案に活用できる営業支援ツール
- 競合他社と差がつく、スピード提案
- トレンド間取りで、集客・受注数UP
- 建築家のアイデアを参考に、質の高い提案ができる









