[26坪 2LDK] 朝日をたっぷり浴びて爽やかな目覚め、自然と人が集まる緑と光が心地良い家の間取り
全国の建築家から間取りが集まるmadree(マドリー)で集まった26坪、2LDKの間取りです。外とつながるLDKやリビング吹抜が特徴の注文住宅の間取りです。
朝日をたっぷり浴びて爽やかな目覚め、自然と人が集まる緑と光が心地良い家はこのような方におすすめです
・30代共働き夫婦、子ども1人/将来的にあと1人子ども希望
・趣味:映画館鑑賞、旅行、カフェ巡り
・家族や友人が集まるLDKにしたいので、明るく緑を感じる居心地の良い空間にしたい。
・朝日で目覚めたいので、それぞれの個室は東向きを希望。
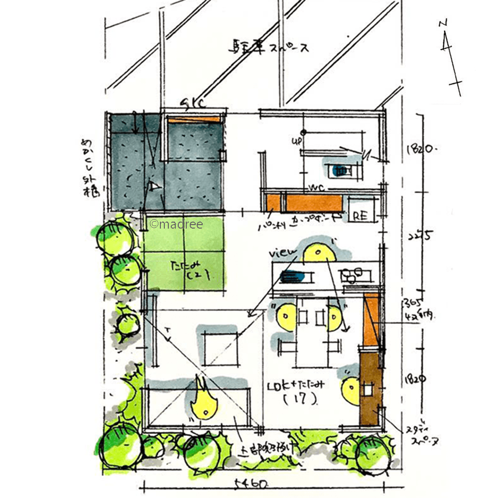
朝日をたっぷり浴びて爽やかな目覚め、自然と人が集まる緑と光が心地良い家の間取りアイデア
全国対応になりました
| 広さ | |
|---|---|
| 階数 | |
| 土地特徴 | |
| 部屋数 | |
| 家族人数 | |
| 特徴 | |
| 担当建築家・デザイナー |
建築家・デザイナー
からのコメント
【全体計画】
限られた敷地面積と法規制を最大限に生かし、無駄なく明るいお家となる様、心がけました。
【こだわりのポイント】
■1階
・SICは家族用動線と来客用動線をわけました。
・階段下のデッドスペースはトイレとして有効利用しました。
・南側にLD。リビング上部は吹抜とし、開放感のあるリビングにしました。
・キッチンから全体を見渡すことができます。
■2階&3階
・LDKを広くとった分、各個室は収納を設けたうえで、最低限の広さとしました。
・普段は家族がリビングに集まりやすい工夫としました。
・バルコニー前は上部アルコーブとして、雨に濡れにくい設計としています。
26坪 2LDK関連の間取り
マドリー開発の『住宅営業支援ツール』
madreeデータバンク
マドリーの人気間取り4,800プランを接客・提案に活用できる営業支援ツール
- 競合他社と差がつく、スピード提案
- トレンド間取りで、集客・受注数UP
- 建築家のアイデアを参考に、質の高い提案ができる









