[50坪 4LDK] ウッドデッキへ伸びやかにつながる、南向き大開口で明るく暖かい家の間取り
全国の建築家から間取りが集まるmadree(マドリー)で集まった50坪、4LDKの間取りです。外とつながるLDKやアウトドアリビングが特徴の注文住宅の間取りです。
ウッドデッキへ伸びやかにつながる、南向き大開口で明るく暖かい家はこのような方におすすめです
・20代夫婦、長女1歳 / あと2人子ども希望
・趣味:釣り、ゴルフ、漫画、ヨガ
・虫が苦手なので、室内干しスペースを充実させたい。
・子どもが気軽に外遊びができるよう、ワイドなウッドデッキが欲しい。
ウッドデッキへ伸びやかにつながる、南向き大開口で明るく暖かい家の間取りアイデア
全国対応になりました
| 広さ | |
|---|---|
| 土地特徴 | |
| 階数 | |
| 部屋数 | |
| 家族人数 | |
| 特徴 | |
| 担当建築家・デザイナー |
建築家・デザイナー
からのコメント
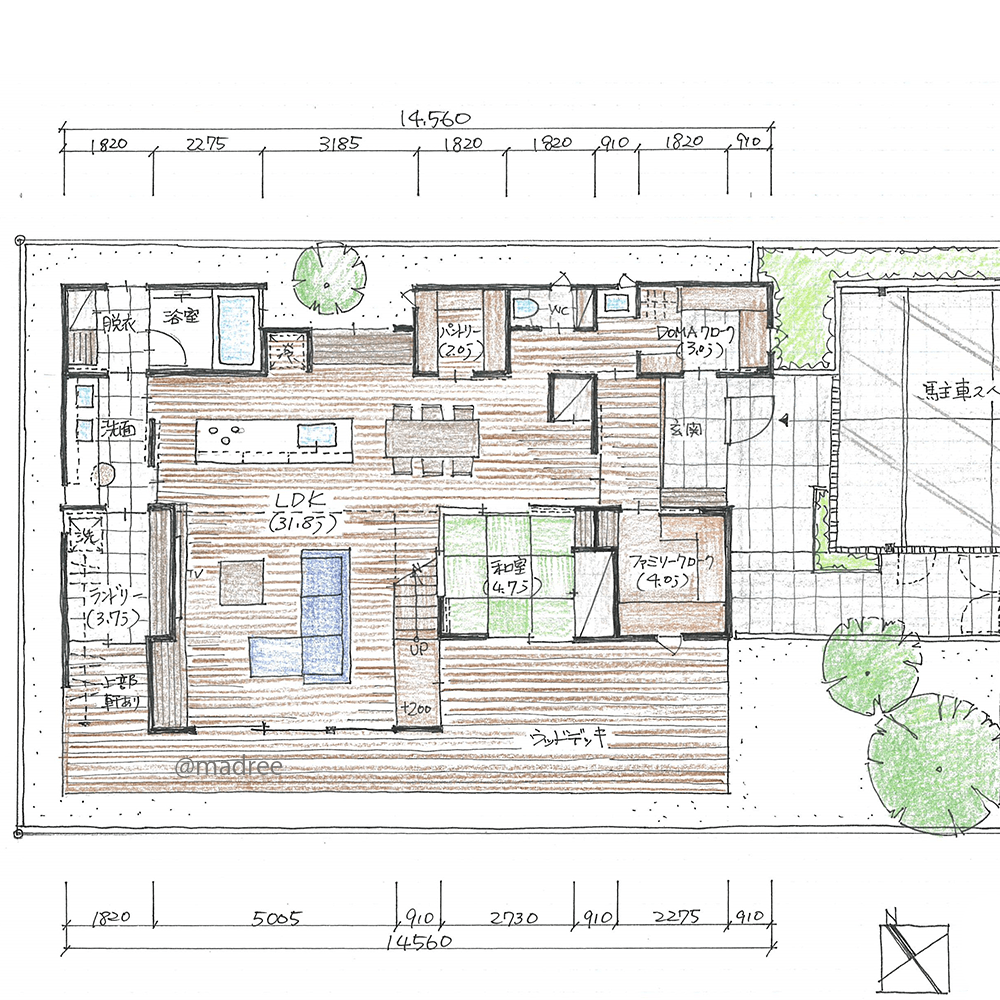
【全体のコンセプト】
「ひろーいLDKとスムーズ家事動線の家」
家族が、明るくあたたかなLDKを中心に仲良く快適に暮らせるプランを提案しました。
【各階のポイント】
■1階
・南側になるべく広く庭を取り、LDKがウッドデッキと庭と一体となり、明るく開放的な空間となるようにしました。
・玄関から土間収納を通ってLDKへつながる裏動線をつくり、その動線上に手洗いコーナーを設けました。
・アイランドキッチンと並んでダイニングを配し、キッチンからは スムーズに洗面、脱衣やランドリーへ行ける家事動線を用意しました。
・ファミリークロークは玄関脇に配置しましたが、和室からの動線に変更することも可能です。
・リビング階段はストリップ階段のイメージで、リビングと和室とのつながりや光を遮らないように考えています。
・描き忘れましたが、キッチンの勝手口はパントリーに設置することも可能です。
■2階
・各個室をLDKの吹抜のまわりに配置し、個室にいても、LDKにいてもお互いに気配を感じながら過ごせます。
・子ども室2は、将来的に収納か壁で分けられるように考えました。
・主寝室には、書斎コーナーとウォークインクローゼットを設けました。書斎コーナーにはドアを設置することも可能です。
50坪 4LDK関連の間取り
マドリー開発の『住宅営業支援ツール』
madreeデータバンク
マドリーの人気間取り4,800プランを接客・提案に活用できる営業支援ツール
- 競合他社と差がつく、スピード提案
- トレンド間取りで、集客・受注数UP
- 建築家のアイデアを参考に、質の高い提案ができる









