[33坪~36坪 3LDK] 子ども達がのびのび遊んで学べる、キッチンから暮らしを見渡す家の間取り
全国の建築家から間取りが集まるmadree(マドリー)で集まった33坪~36坪、3LDKの間取りです。オープンキッチンやペニンシュラキッチンが特徴の注文住宅の間取りです。
子ども達がのびのび遊んで学べる、キッチンから暮らしを見渡す家はこのような方におすすめです
・家族構成:20代夫婦、子ども3人(5歳、2歳、0歳)
・趣味:家族でのんびり過ごすこと
子ども達がのびのび遊んで学べる、キッチンから暮らしを見渡す家の間取りアイデア
全国対応になりました
| 階数 | |
|---|---|
| 部屋数 | |
| 家族人数 | |
| 土地特徴 | |
| 特徴 | |
| 広さ | |
| 担当建築家・デザイナー |
建築家・デザイナー
からのコメント
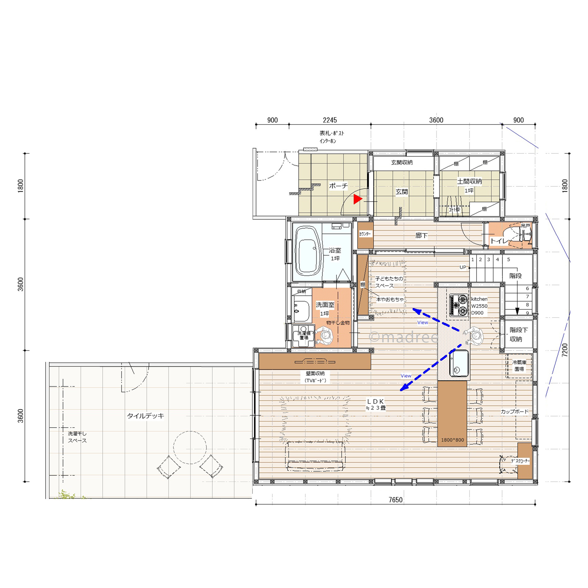
【全体のコンセプト】
『タイルデッキのある家』
・日当たりのよい南側をにタイルデッキを配置し、リビングとアウトリビングがつながるように レイアウトしています。
・できるだけ廊下範囲を狭めて、リビングが広くとれるようにしています。
【こだわりのポイント】
・玄関からリビングへの建具は2枚分の開口がとれる建具を使用。
・キッチンからは子供たちがあそべる、天井までの棚のあるスペースと、 タイルデッキとつながるソファリビングの両方を見ることができます。
・子供部屋はそれぞれの収納スペースをもうけいます。
・寝室には1坪のWIC、廊下には1坪の納戸もあり収納は充実しています。
33坪~36坪 3LDK関連の間取り
マドリー開発の『住宅営業支援ツール』
madreeデータバンク
マドリーの人気間取り4,800プランを接客・提案に活用できる営業支援ツール
- 競合他社と差がつく、スピード提案
- トレンド間取りで、集客・受注数UP
- 建築家のアイデアを参考に、質の高い提案ができる









