[42坪~45坪 4LDK] ペットと共に快適に過ごせる仕掛けが色々!家事ラク動線でゆとりの持てる間取りの間取り
全国の建築家から間取りが集まるmadree(マドリー)で集まった42坪~45坪、4LDKの間取りです。オープンキッチンや子ども見守れるキッチンが特徴の注文住宅の間取りです。
ペットと共に快適に過ごせる仕掛けが色々!家事ラク動線でゆとりの持てる間取りはこのような方におすすめです
夫40代妻30代共働き、子供3人(中学生1人、小学生2人)、ペット犬猫各1匹
趣味夫は大型バイクに乗っています。夫婦揃ってスノーボードが趣味です。ビルトインガレージ希望でバイクも置けると、なお可
LDどちらかにに薪ストーブが欲しい
ペットと共に快適に過ごせる仕掛けが色々!家事ラク動線でゆとりの持てる間取りの間取りアイデア
全国対応になりました
| 階数 | |
|---|---|
| 部屋数 | |
| 家族人数 | |
| 土地特徴 | |
| 特徴 | |
| 広さ | |
| 担当建築家・デザイナー |
建築家・デザイナー
からのコメント
【こだわりのポイント】
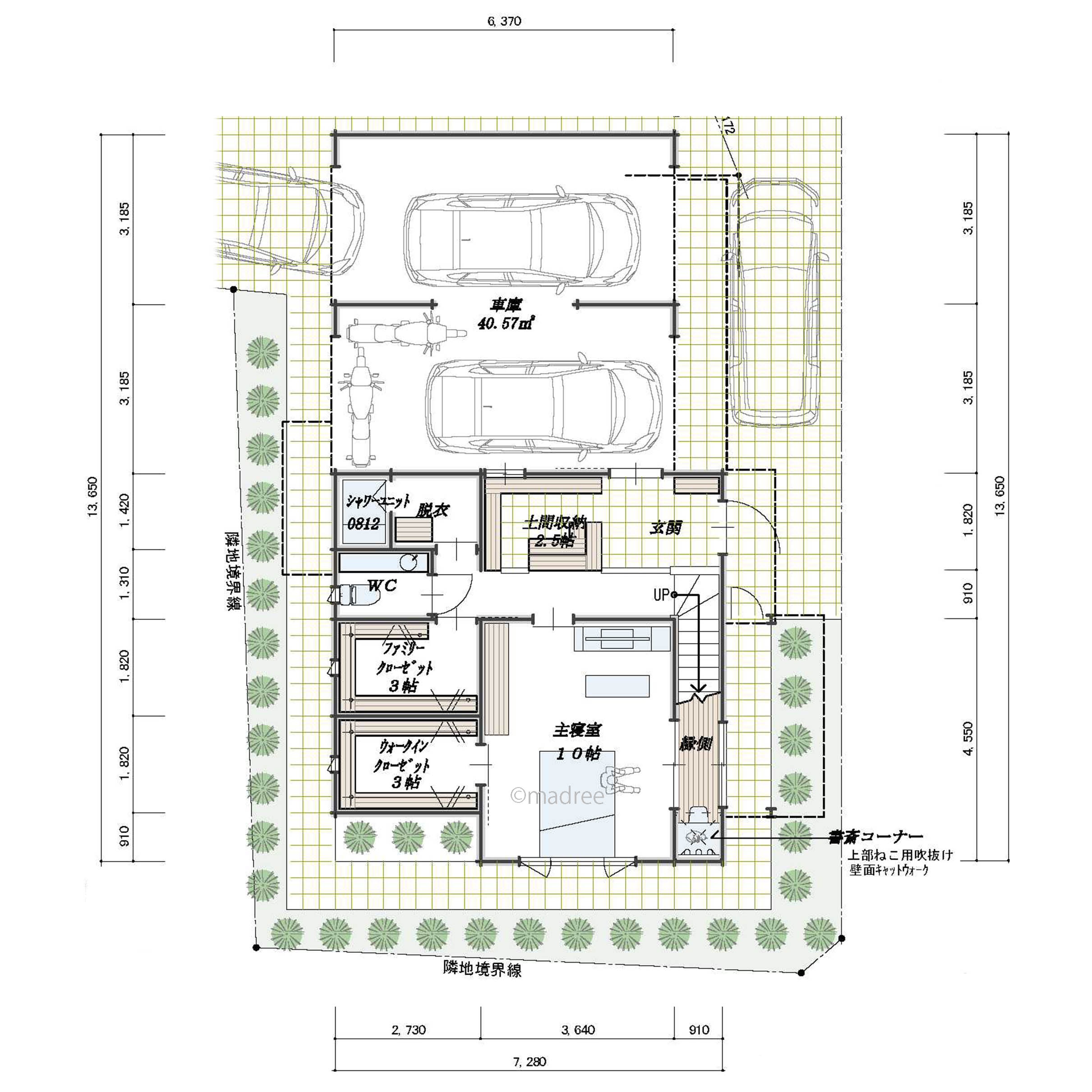
■1階
・車庫
北側に配置している車庫については、西面を開放できるようにすることによって、北西のクボ地を追加の車庫として利用しています。
車庫出入口を道路から3mほどセットバックさせることにより、大型車を停めることが可能です。
2台の車庫ですが、ゆったり合計4台停めることが可能です。
構造については、鉄骨造とした方が、2台分一体の車庫が可能ですので、今後計画を進められる際には、混構造とした方がよいと思います。
■2階
・バルコニー
サニタリーにはサービスバルコニーを設置し、スムーズに物干しができます。
大きい干しものは東面のバルコニーを使用ください。
東面バルコニーの窓をフルオープンに開放することによって、1階廊下も換気されます。
・リビングの吹抜
1階主寝室の縁側に書斎コーナーを設けており、上部にはリビングが位置しています。
吹抜けにより、壁面のキャットウォークを伝って、 にゃんこが書斎コーナーと2階リビングを行ったり来たりできるようにしています。
リビングのTV台の上部を高窓としておりますので、昼寝には最適となっています。
1階の縁側で昼寝→キャットウォークで遊ぶ→2階の高窓際で昼寝、という導線を作っています。
書斎コーナーで本を読んだり、パソコン作業をされるときの、ねこハラ対策も兼ねております。
42坪~45坪 4LDK関連の間取り
マドリー開発の『住宅営業支援ツール』
madreeデータバンク
マドリーの人気間取り4,800プランを接客・提案に活用できる営業支援ツール
- 競合他社と差がつく、スピード提案
- トレンド間取りで、集客・受注数UP
- 建築家のアイデアを参考に、質の高い提案ができる









