[30坪~33坪 2LDK] 自分らしい暮らしを実現!通り土間で光を取り込む開放感ある間取りの間取り
全国の建築家から間取りが集まるmadree(マドリー)で集まった30坪~33坪、2LDKの間取りです。オープンキッチンやL字型キッチンが特徴の注文住宅の間取りです。
自分らしい暮らしを実現!通り土間で光を取り込む開放感ある間取りはこのような方におすすめです
本人65、妻54
趣味:サーフィン、ヨット、園芸
自分らしい暮らしを実現!通り土間で光を取り込む開放感ある間取りの間取りアイデア
全国対応になりました
| 階数 | |
|---|---|
| 部屋数 | |
| 家族人数 | |
| 土地特徴 | |
| 特徴 | |
| 広さ | |
| 担当建築家・デザイナー |
建築家・デザイナー
からのコメント
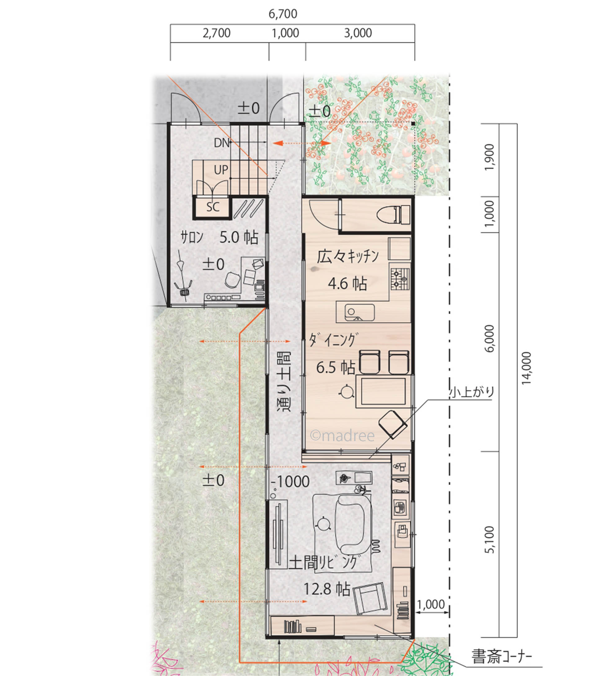
【全体のコンセプト】
・通り土間が部屋を明るくし、坂を利用したスキップフロアが各階へ行きやすくする家を計画しました。
・日当たりを最大限確保できるよう、L字型の配置としました。
・そして町屋でよくみられる通り土間を設け(上部は吹き抜け)外部の光や風、さらに1階と2階が吹き抜けでつながることで、家全体を明るく開放的で広々と使うことができます。
・前面道路は西から東にかけて2mの高低差があることから、北西側にエントランスを設けて1階を1m掘り下げることで2階へ上がる階段を通常の2/3以下の高さに抑え、各階へ行く際の負担を軽減できるようにしました。
【こだわりのポイント】
■1階
・1m掘り込んだ通り土間
各階に明るさと開放感を届けるだけでなく、1m掘り込むことで目線と同じ高さに家庭菜園や庭を見ることができ、緑との距離が近づき室内に潤いを与えます。
直接窓から野菜を摘んだり犬に触ることができるので、腰を屈める必要がないよう使い勝手も配慮いたしました。
・サロン(趣味室)
玄関に入ってすぐのサロンでは、サーフボードなどの長尺物などの搬入を容易にする収納の要素だけでなく趣味に没頭できる趣味室としての要素もあります。
1階とも2階とも異なる高さにあるこの部屋は自分だけの時間を過ごすにはうってつけです。
・土間リビングと小上がりダイニング
通り土間と連続してリビングを設けて家の中にいながら家の外にいるような半屋外の部屋をつくります。
ダイニングとの間には縁側のような小上がりがあり、そこに腰掛けつつリビングのテレビを見たり、来客時には間仕切りで仕切ることでダイニングとリビングを分離することもできます。
30坪~33坪 2LDK関連の間取り
マドリー開発の『住宅営業支援ツール』
madreeデータバンク
マドリーの人気間取り4,800プランを接客・提案に活用できる営業支援ツール
- 競合他社と差がつく、スピード提案
- トレンド間取りで、集客・受注数UP
- 建築家のアイデアを参考に、質の高い提案ができる









