[33坪 4LDK] 庭から吹き抜ける風と光で心地良く過ごせるシンプルで暮らしやすい間取りの間取り
全国の建築家から間取りが集まるmadree(マドリー)で集まった33坪、4LDKの間取りです。オープンキッチンやアイランドキッチンが特徴の注文住宅の間取りです。
庭から吹き抜ける風と光で心地良く過ごせるシンプルで暮らしやすい間取りはこのような方におすすめです
夫:47歳(会社員)、妻:40歳(会社員)、子供2人(未就学児)、犬1匹。
妻側の祖母:92歳、母:70歳、猫1匹も同居予定。
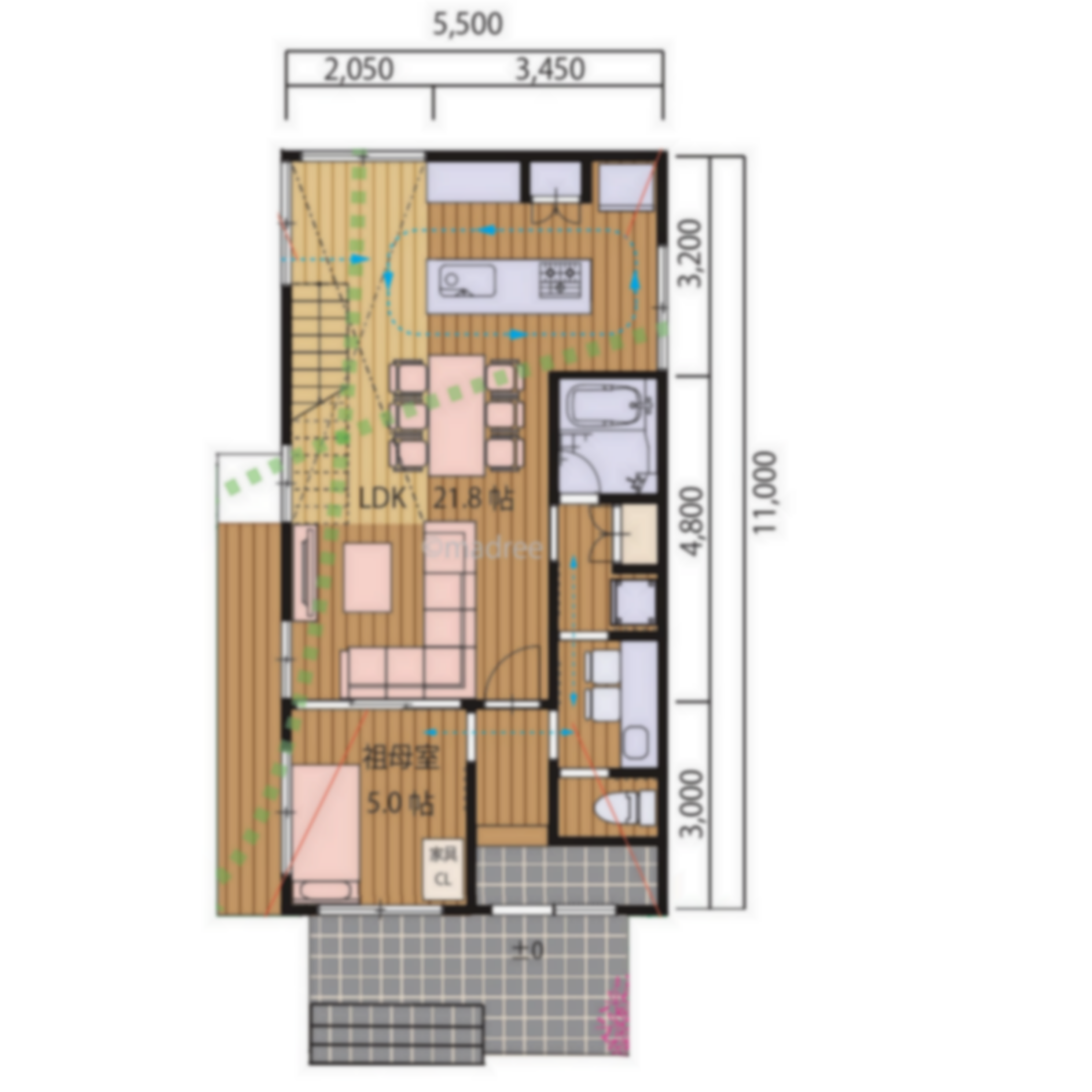
庭から吹き抜ける風と光で心地良く過ごせるシンプルで暮らしやすい間取りの間取りアイデア
全国対応になりました
| 階数 | |
|---|---|
| 部屋数 | |
| 家族人数 | |
| 土地特徴 | |
| 特徴 | |
| 広さ | |
| 担当建築家・デザイナー |
建築家・デザイナー
からのコメント
【全体のコンセプト】
・吹き抜ける風と光の家 庭を最大限確保しつつ、駐車場も2台分配置するために南北に細長いシンプルな外観としました。
・LDK上部には階段を利用した吹き抜けは、たくさんの日光と風の通り道となり、暗くなりがちな水回りを明るく照らします。
・可動間仕切りや家具クローゼットを多用することで将来対応にも柔軟に対応できるようにしました。
・庭から風が入ってくることで家の中には庭の花の香りがほのかにする、明るく過ごしやすい家を計画しました。
33坪 4LDK関連の間取り
マドリー開発の『住宅営業支援ツール』
madreeデータバンク
マドリーの人気間取り4,800プランを接客・提案に活用できる営業支援ツール
- 競合他社と差がつく、スピード提案
- トレンド間取りで、集客・受注数UP
- 建築家のアイデアを参考に、質の高い提案ができる









