[30坪~33坪 4LDK] 充実の家事動線とプライベート空間を確保した心地良く暮らせる家の間取り
全国の建築家から間取りが集まるmadree(マドリー)で集まった30坪~33坪、4LDKの間取りです。オープンキッチンやペニンシュラキッチンが特徴の注文住宅の間取りです。
充実の家事動線とプライベート空間を確保した心地良く暮らせる家はこのような方におすすめです
共働き30代夫婦、子ども2人(4歳、1歳) 犬1匹
趣味:バスケットボール、テレビで映画を見たり、犬の散歩、料理
充実の家事動線とプライベート空間を確保した心地良く暮らせる家の間取りアイデア
全国対応になりました
| 階数 | |
|---|---|
| 部屋数 | |
| 家族人数 | |
| 土地特徴 | |
| 特徴 | |
| 広さ | |
| 担当建築家・デザイナー |
建築家・デザイナー
からのコメント
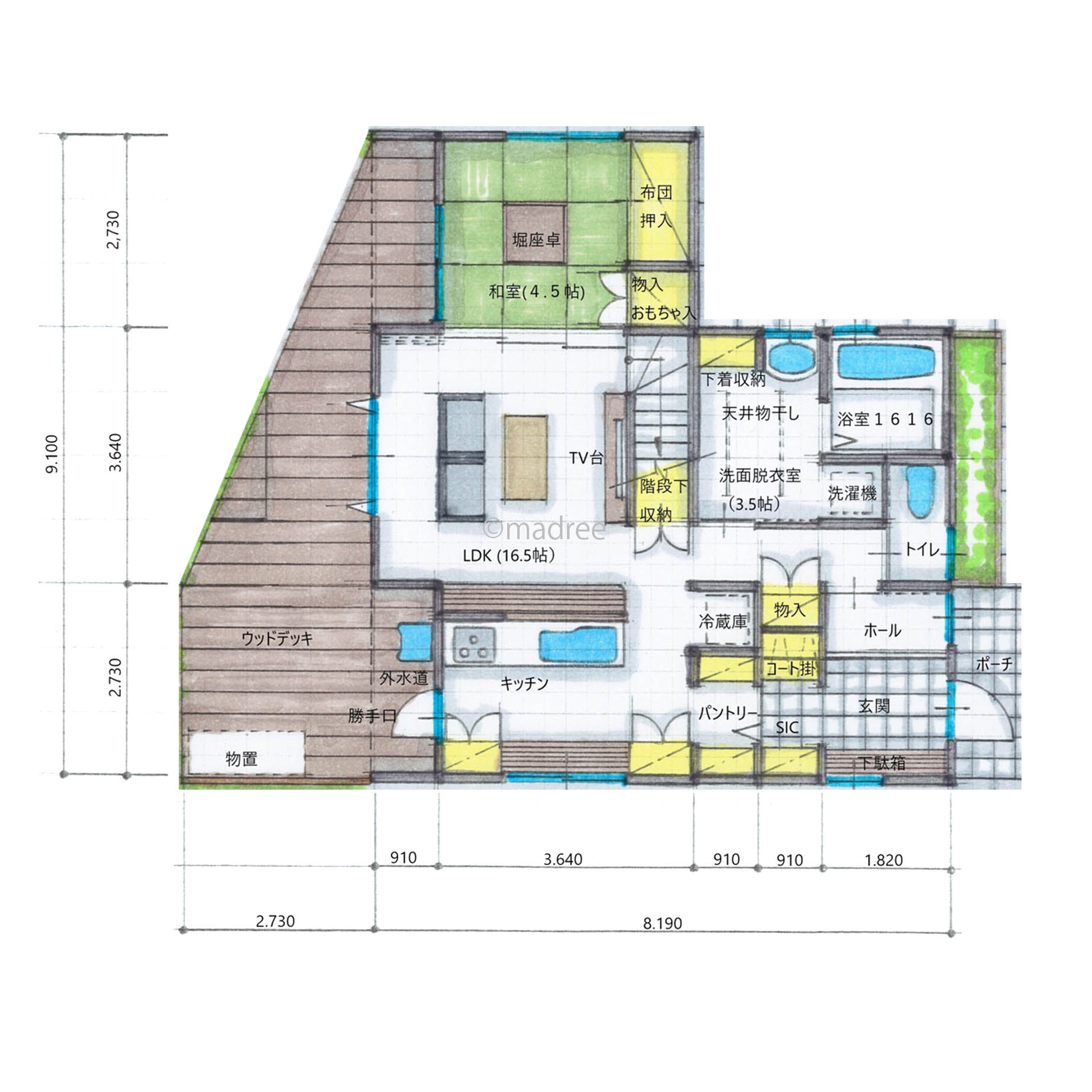
【全体のコンセプト】
・分譲地の一番奥のためプライベート空間を意識してプラン作成しました。
・南東側にアパートがあり人の出入りが多いと思い見られないように居室は少なく、窓も小さく意識しました。
・ウッドデッキも南東側は柵を高くし見られないようにしました。
・駐車場3台分確保し通常2台との事なので普段は自転車置き場としてポーチ前は考えてます。
・南西側はウッドデッキはバーベキューやワンチャンが遊べるように広くし庭も植栽できるプライベート空間ができるスペースを確保しました。
【こだわりのポイント】
■1階
・LDKと和室を繋げ3枚の引き戸で仕切っていますが、天井までの高い引き戸にし左の壁に3枚移動できますので全体で21帖の広さになります。
・お子さんが小さい内は和室で寝られるという事ですので、4.5帖は必要だと思い、おもちゃなど収納できる物入もつくりました。
・洗面は室内干できるよう広くし、天井物干しも2本設置できるようにしました。
・玄関からパントリーへ直接行けるようにしましたので、荷物も楽に仕舞えると思います。
・玄関横にコート収納を設けましたので家族分のアウターは掛けられます。
■2階
・主寝室にWICを、子ども室にも洋服入れを設けました。
・納戸も3帖ありますのでストック品や季節物など収納できます。
・階段上がったところは部屋に囲まれているので日当たりと風通しを考えトップライトを設けました。
30坪~33坪 4LDK関連の間取り
マドリー開発の『住宅営業支援ツール』
madreeデータバンク
マドリーの人気間取り4,800プランを接客・提案に活用できる営業支援ツール
- 競合他社と差がつく、スピード提案
- トレンド間取りで、集客・受注数UP
- 建築家のアイデアを参考に、質の高い提案ができる









